


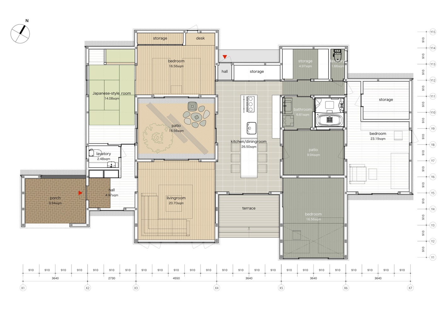
为了方便进入,业主希望建造一栋单层的住宅。因此,如何将自然光与风引入房屋中心位置成为建筑师需要考虑的问题。

建筑师将整栋住宅分成几个小体块。每个部分都有各自独立的功能。这些小体块像是“1+2+1+2+1”的跳房子游戏一样布局。通过这种方式,建筑师主导了以下设计方案:

1.这些分开的体块相互咬合。依照这种体块关系,建筑师将室内空间分为“躯干”(即空间的交汇处)和“四肢”(即具有各自独立的使用功能)两种。这样的空间布局让使用者在“躯干”内穿梭时体验到一种耳目一新的空间的节奏感。同时,在使用“四肢”部分的功能时可以放松身心享受私人空间,与其他家庭成员的生活互不干扰。

2.在跳格子式布局的“2”的位置,两块体量相互分离。这两块分离体量之间的空间是内部庭院,可以将自然光线和徐徐清风引入进房屋中心区域。

3.分离体量之间的内部庭院还可以作为连接各单元的走廊使用。庭院空间的设计可以减少专为走廊开辟的面积从而节约空间,还可以为家庭成员之间建立亲密关系提供契机。对于曾经各自分离而今居住在同一屋檐下的家庭来说,这样的空间有利于重新思考和定位生活中与他人的距离感和亲密度。






















TAG标签关键词:Hiramoto Design 住宅 家 建筑 别墅











































































