

该项目(Hikari House)的字面意思就是“光带住宅”(Hikari是日语的“光”的意思),其设计理念是要提供给住户自然光线和时间与建筑互动的特殊体验。射入该住宅的自然光不仅每天都在改变,而且会根据太阳在一年四季中不同的照射角度而产生持续的变化。与自然光照相对应的是该设计采取了自然通风。住宅前后贯通,由室外庭院和起居室流入的空气将自然地通向内部的餐厅和室内庭院。

室内设计与建筑整体相得益彰,所有的元素都被贯穿于整栋住宅中。建筑手法、自然光、人工照明、家具、细部装饰、以及造景等元素在该住宅的各个部分相互照应,构成一个有机的整体。




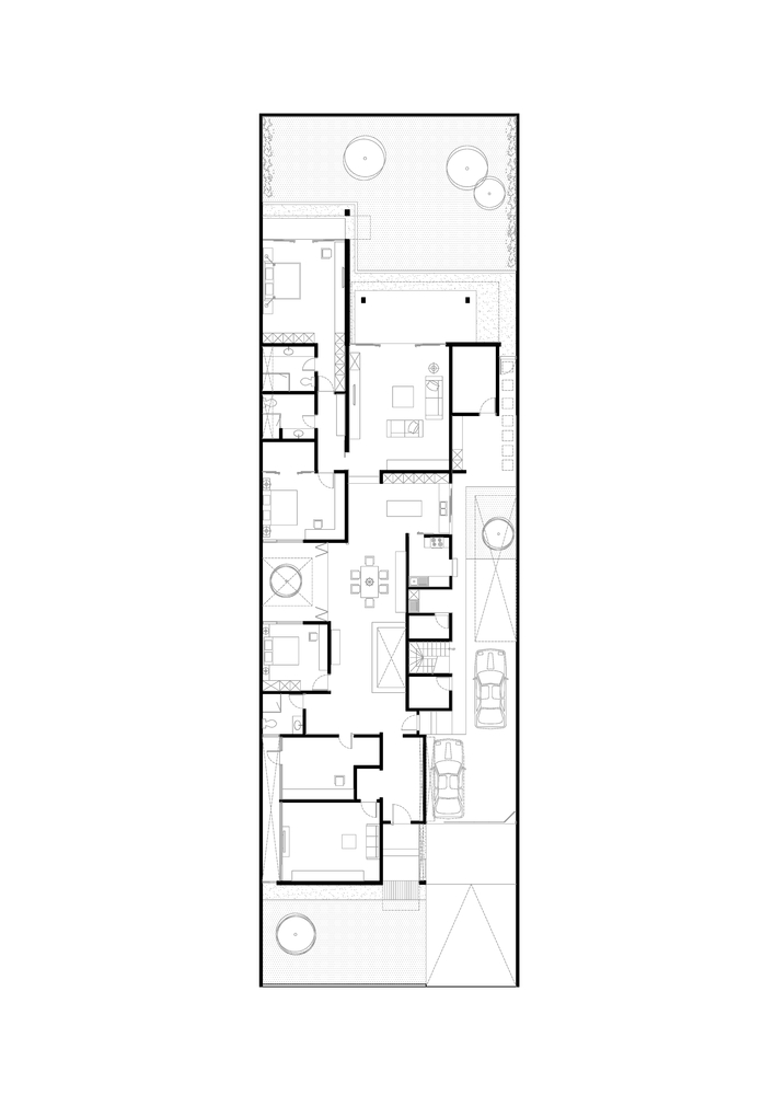
运用花园住宅的理念建造的“光带住宅”,室内与室外交叉并融合在一起。为了突出室内与室外的连接,后院的草地特别设计成与坐在起居室的人的视线同一水平,由此将室内与室外的元素紧密联系起来了。在餐厅里还特别设计了一处仙人掌台地,从而将自然元素引入室内。另外,在餐厅边上还有露天的中庭,只要将用于分隔的玻璃门打开,就可以让餐厅空间变得更宽敞。





该住宅的正立面西向,建筑师将此部分设计成封闭的,一方面是保证住户的私密性,另一方面也用于遮挡午后的日照。建筑的形式和材料的选择也突出了该设计降低住宅维护成本的理念。此外,由清水混泥土、铁樟木和钢材构成的外立面使该热带住宅极具现代感。













TAG标签关键词:Pranala Associates 别墅 房屋 住宅 家 建筑





























































































