

所有利益相关者都认为周围大范围的改造区域(Amstel III)存在问题。场地功能主要为办公区,不足以吸引人。医院是该地区的主要利益相关者之一。社会安全也是一个值得关注的问题。现在许多办公区都是独立的孤岛,由水系和绿化围绕的建筑组成。与此同时,一些积极的展望正在进行中,例如一些创业计划。目前最大的问题是:如何将这片分离的区域连接起来,使之成为一个整体?在OurDomain园区的规划中,这种连接即将实现,作为该地区深入发展转变的第一步。
此次社区的选择十分特别,因为这是人们首次得以生活在阿姆斯特丹的这一区域。建造社区的想法与阿姆斯特丹当前的住房问题密切相关――学生和年轻人的住房严重短缺。为了实现居住功能,阿姆斯特丹政府在2011年修订了区域规划,允许居住单元建设以适应市场需求。2014年,OZ Architects与顾问Fakton、开发商 Blauwhoed、房地产所有者 LSI和投资方Greystar一起研究了引入大量公寓的可能性。随即开展研究调查,在医院旁边为年轻人建造的新园区是否满足大多数年轻人对住房的需求。结果是积极的,这促成了区域导向发展的基本计划的产生。最终,Greystar对项目的浓厚兴趣促成了此项决定。当时,这位美国投资者已经在阿姆斯特丹东南区域完成一个园区概念构思,他也看到了这个新园区的可能性。于是,阿姆斯特丹市政府同意实施这个计划。
在OurDomain原有的场地上,空置的办公楼和停车场很难找到新的租户,而且治安不良。由于上述原因,这些建筑被拆除。另外,该地区被许多杂乱的围栏覆盖,公共空间也没有得到足够的维护,显得荒凉和难以接近。学生也对此地表示倍感不安。

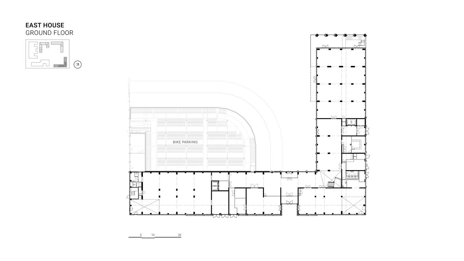
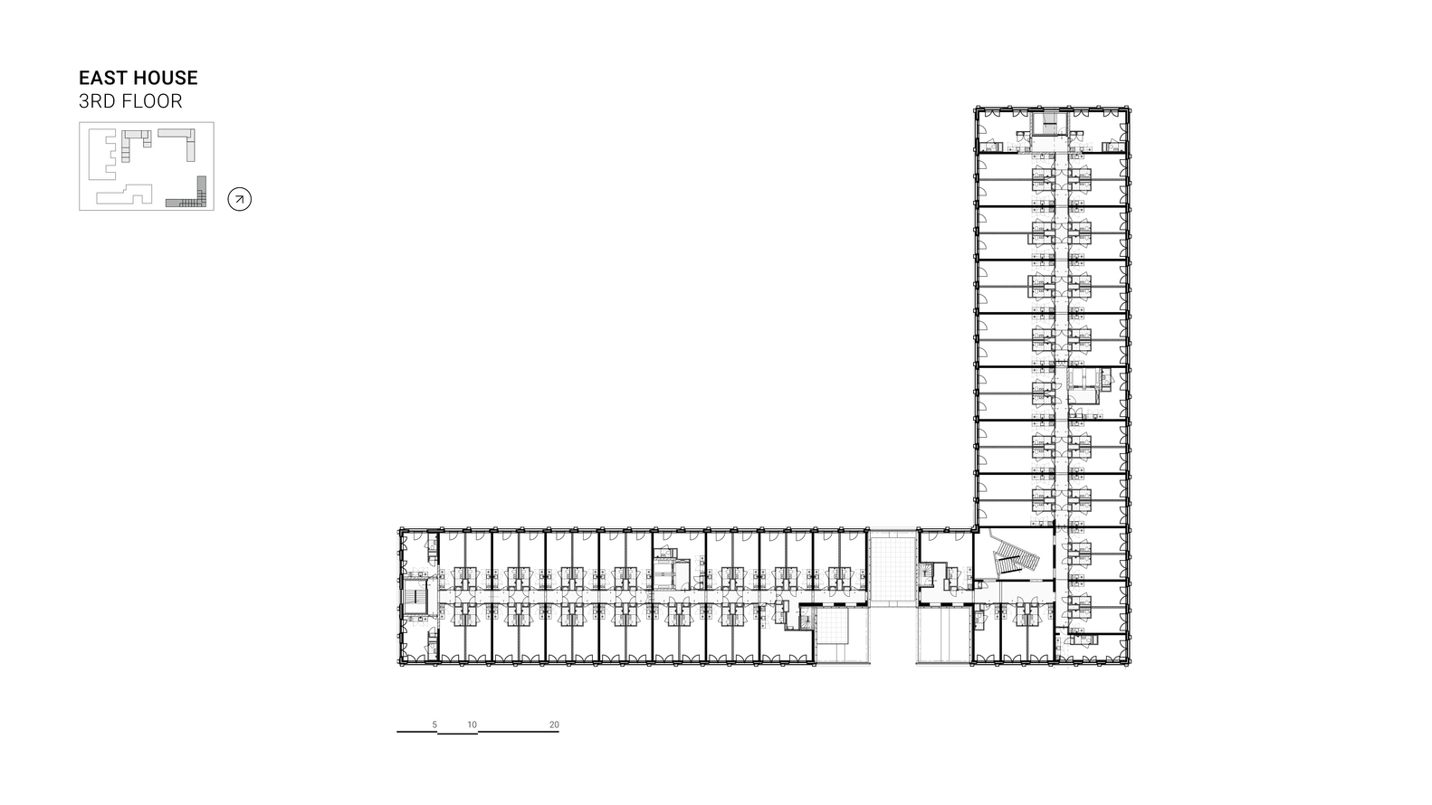
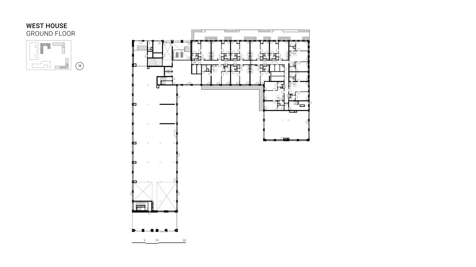
该地区的主要城市发展目标是连接园区的功能、交通和周围环境。公共空间,最初是一个没有吸引力的因素,是园区规划的基础。公共空间的布局确保了规划区、居住区和医学区的整体凝聚力。考虑到社区的居住功能,一些高质量的公共空间是必不可少的。这三座园区建筑的独特个性反映了该地区独立办公建筑的不同特点。OZ Architects选择了三个不同的合伙人负责每个建筑单体设计。
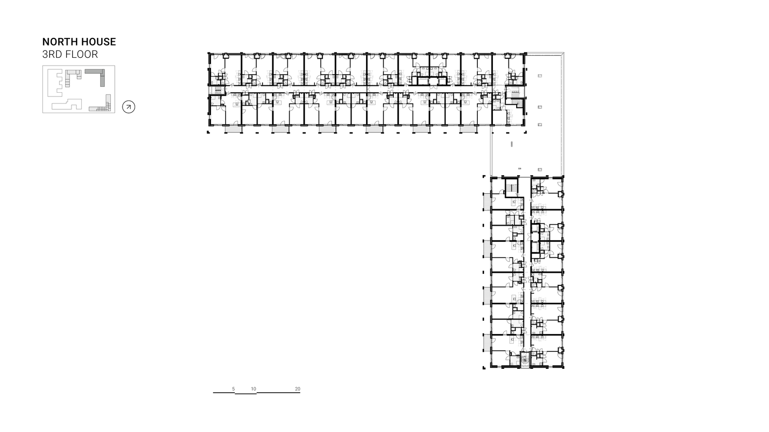
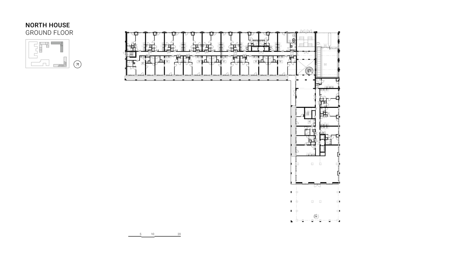
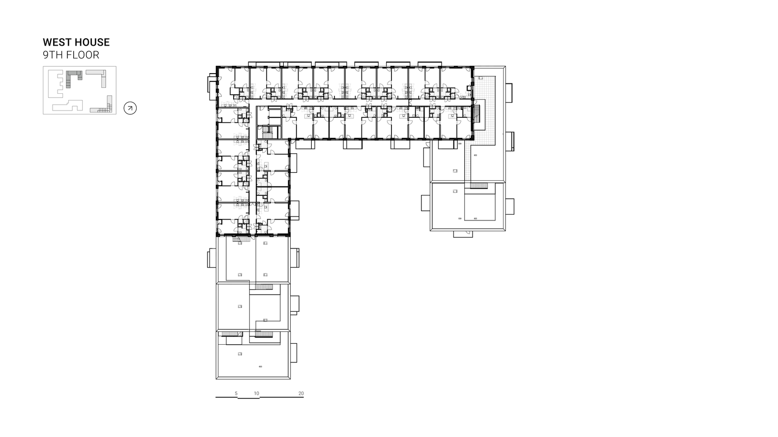
建筑强调与公共空间的联系。三幢建筑的室外空间与地面的连接对于创建一个社区而言非常重要。开放性是贯穿整个园区的关键词。水系和绿化不再作为分隔元素,而是转化为连接作用。用于骑行和跑步的路线也比以前更加完整。连续的道路将园区与地铁站、医院和周围的其他建筑连接起来。园区道路与具有多功能活动的广场相连。居民们聚集于此,可组织进行锻炼、烧烤等多样的活动。位于底层的公共功能是为社区居民特意设计。



TAG标签关键词:OZ Architects Marcel van der Burg 学生公寓 教学楼 教学大楼 建筑大楼 建筑




























































































