通过颠覆性地用根据需求而变化的教学空间来取代传统学校所有的空间是必要的;由于在该学校的教学计划中鼓励集体创造,所以为学生提供教室以外的空间也是必要的。由于建筑学院的课程本质上都是既有外向性又有内向性的,因此学院内的空间应满足使用者对不同使用功能的需求。理想的学校应该允许开放式课程。我们的建筑学院通过一种非常规的空间布局,为使用者提供了多种居住和使用的选择。
由于分配给建筑学院的大型项目的场地有限,将地平面扩展到建筑内部成为当务之急。我们通过设计一个大型公共广场并沿着校园中保留深林边缘的一个开放的挑高区域将大学校园的肌理延伸学院内,从而避开设计有限制的入口,将建筑与地面连接的开放性最大化。其中一个通道可以通过多种方式到达,其中之一为一个通往一楼的开放但是阴凉的通道。与其通过直接将地平面抬高的方式获得一个庭院,在这,庭院是通过对不同高度进行叠加从而形成的交错,重叠的庭院。
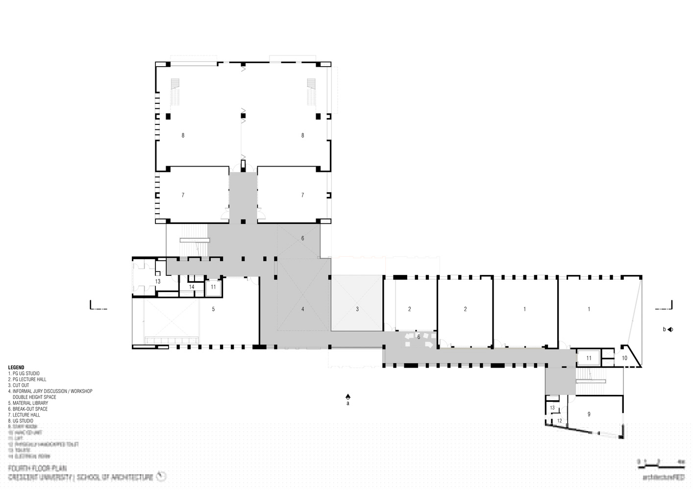
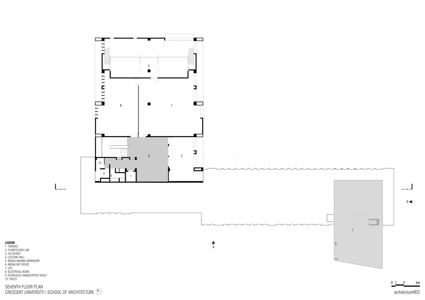
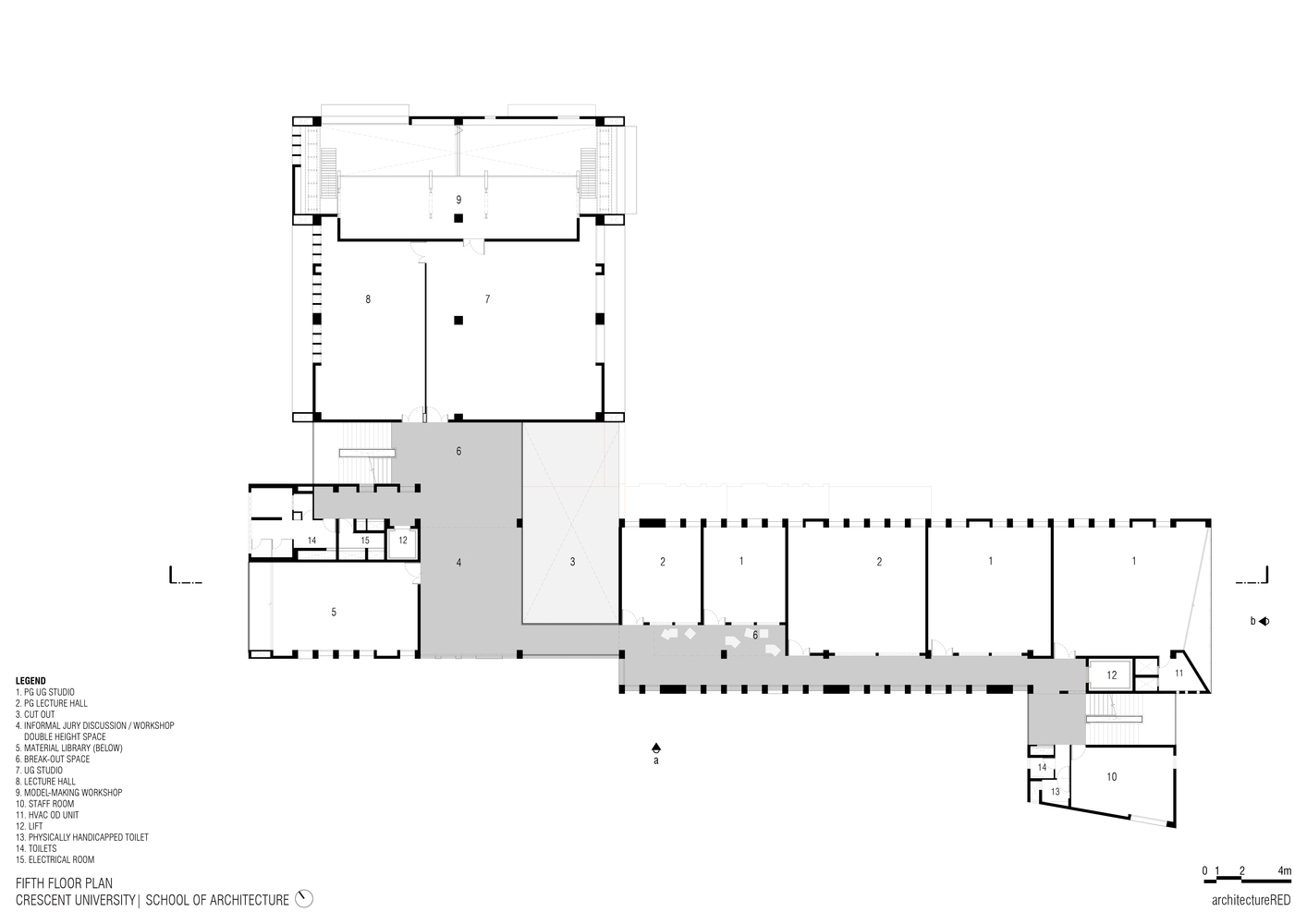
因此,在建筑的每一层都设计了一个额外的“新地面”,它将广场和开放的墙基向上延伸到建筑空间内。这个连续的、阶梯式的空间形成了一个对角庭院,这阶梯状的景观形体不但成为了学校重要集会和社交空间,还为人们提供了优美的景色。建筑中的中空部分,除了使建筑质量更轻外,也扮演着将建筑打造为有着室外体验角色,比如拂过的微风,白天洒落在空间中的阳光,让人感觉与校园相接(建筑形式和城市边缘)的遮荫空间,以及在保留林和校园西侧,向东和向南看的景色。
每个设计室都对着相邻的两倍于层高的阳台 (由上方悬挑遮荫)通过一组大型滑动折叠门打开,这样的空间为开放性设计室/工作室(和/或)开放展览和审查空间提供了可能性。些空间在“开放日” 或者日常评审的时候会全部打开。到时,这些空间将在视线上被连接起来。设计室被被排布为相互相邻的形式,相邻的设计室可以合并为一个更大的空间,在这新的空间下,不同班级之间能共用同一个空间,相互学习,避免了班级之间被完全分隔开来。每个设计室中还设有一个夹层,为各自的讲堂提供了空间。
克雷森特建筑学院希望通过用一种空间方法论,去说明通过创新的基础设施和空间排布,建筑中不同功能之间可以相互适应的可能性。基地上的开放空间为剧烈活动、聚会和社交提供了可能性,同时也加强了建筑学院建筑与整体大学校园之间的联系。该设计,希望通过这样的建筑与其它事物的联系,孕育出新的由用户自行负责,管理,并能更具他们实时的需求和目的而重新布置空间的系统。因此像这样的建筑设计,是一个能适应时代并且是可持续发展的教学建筑













TAG标签关键词:architectureRED 教学学院 学院 教学楼 建筑楼 大学建筑 学校建筑群 学校建筑 建筑


























































































