

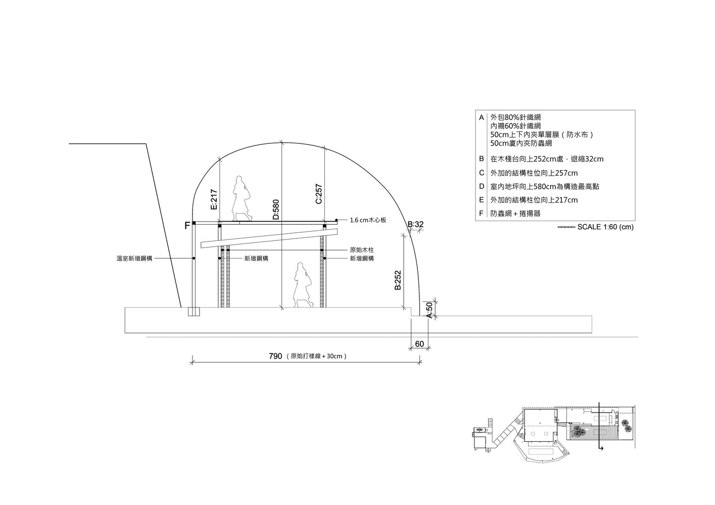
网室系统是台湾常见的简易农务设施,是调节天然环境与农作物的平衡机制。亚热带气候的光线透过森林的树荫和遮光网以80%及60%间距合形成的微光照和透风性,形成适当的工作生活微气候状态。

网室空间形成了山间的阈空间,在此可以享受完全独立的私密空间,也可以地将自己完全暴露在环境中。人与建筑之间的关系变得不再单一,脱离了任何形式束缚

所有东西都取决于此时此刻个人的感受,如此不切实际的短暂、完全无法对应日常文明生活所需、不求永续但却可能直接感觉。这些与生俱来的情感实际上就是当代人对于特定自然关系的一种产生的治愈力。这种治愈力将以未知的适于灵长类动物的方式继续发展下去。



























































