

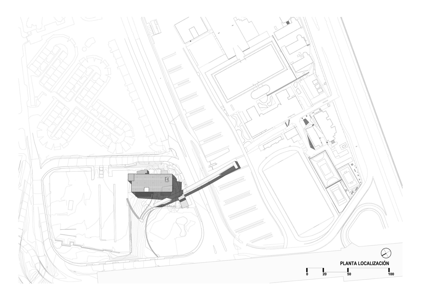
第一座建筑主体巧妙地借助了地形条件并与之融为一体,建筑的设计中有艺术家爱德华多・齐利达(Eduardo Chillida)画作的痕迹。我们想要构建的是拥有实体外立面的大型建筑

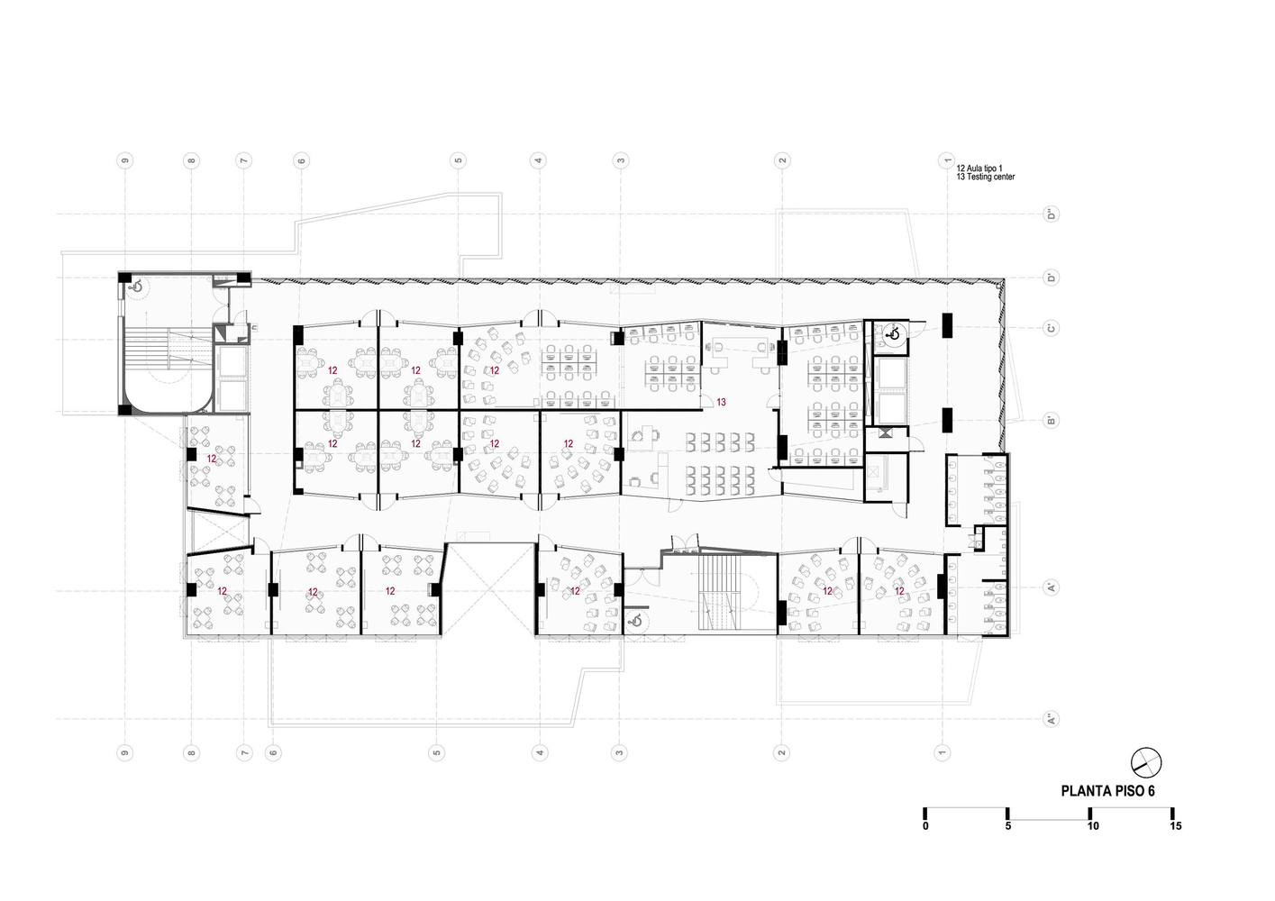
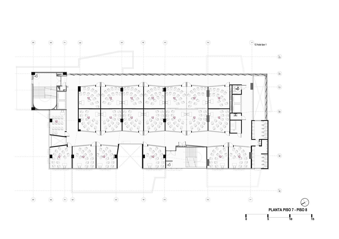
第二座建筑主体跟第一个从设计概念上来说具有较大差异,以表述两座建筑各自的独特性。语言培训中心的课程都将在这一建筑内进行。其主要建筑特色在于南侧外立面的构造,外立面由481块穿孔GRC混凝土板构成,既保证内部空气交换又能够遮挡西方的阳光。





















TAG标签关键词:JUMPArquitectos 教学大楼 教学楼 教室 建筑






























































