

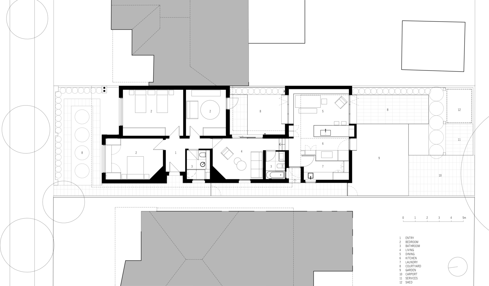
最终实现的扩建部分乍看之下十分简洁,其实隐藏了考虑到建筑场地和周围环境的方方面面后得出的高度复杂性和多功能性。Crosshatch事务所所做的最成功的工作是将45平方米的面积高效利用,并将一个新厨房、餐厅和洗衣房适宜地安放到新增的建筑面积上。

扩建部分看起来比它实际的体积要大得多,这是因为采用了不延伸到室内的极简风格的手法。即使光线穿透到室内并与保持室外的强烈联系,扩建部分仍没有延展到室内。将室外空间引入内部这个想法,无论是对客户还是Crosshatch创始人Diaz-Berrio和Mark Allan来说都是重要的,通过在餐厅设置展示室内深处的大面积开窗和开向中庭的折叠玻璃门实现了这个意图。这个生动的绿植空间连接了新旧建筑并将生活区延展到它们的界限之外,营造出一种空间感。扩建部分的设计也令各空间之间的视线联系变得可能,所以当孩子们在卧室、休息室、庭院甚至后院中玩耍时,父母总能从厨房中清楚的看到他们。

新扩建部分的风格被设计成类似俄罗斯方块的形式,在平面、立面和剖面上都有体现。这些相连的体块将新旧建筑的形式和功能统一在一起。这一“俄罗斯方块”设计概念也在定制的橱柜、厨房门把手等室内细节上重复强调。

最引人注目的4.5米高的窗户使得建筑外观线条分明,同时成为观赏房子后方的高大的橡树的取景框,在房屋周围的城郊环境中用一种感性的方式将扩建部分和原有房屋联系在一起,并且通过使用回收利用的红砖来保持与房屋原有材料色调一致,同时呼应本区建筑的历史风貌。

























TAG标签关键词:Crosshatch 住宅 家 建筑

























































