
汉森代尔厅戏剧性地悬在了下面的公园之上,形成了第四个外部表演空间。这里是音乐学院围墙外的一个表演场所,可以是即兴的,也可以是有组织的,可以是无剧本的,也可以是有剧本的。它将音乐带入了公共空间之中,创造一个属于学生的社交空间。传统的音乐教育需要学生进行长时间的高强度练习,来学习成为音乐家所需的复杂技能和知识。每一个排练室之间所需的隔声效果可以加强音乐家与周围世界的距离感。然而,通过鼓励学生进行同学之间的互动,通过相互的讨论,辩论与学习,学生们对于学习本身的体验会得到加强。这座建筑是为了鼓励排练和联系――它是墨尔本艺术区的“绿色房间”。表演将在建筑内进行,但这座建筑本身并非是一个音乐厅。内部的工作室是经过精心设计的,设计本身可支持音乐学院的日常生活――是粗犷的,是日常的,更是有趣的。

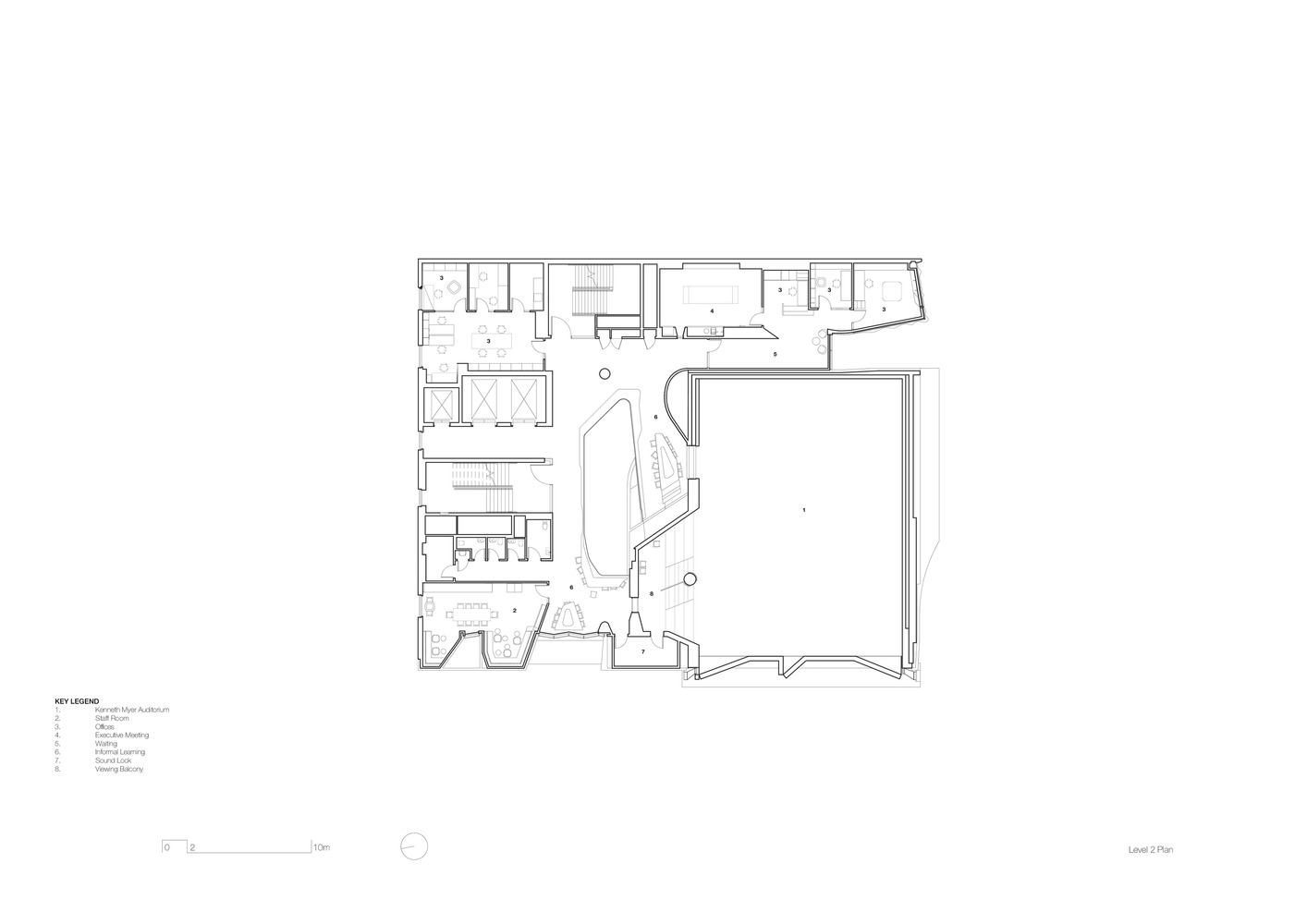
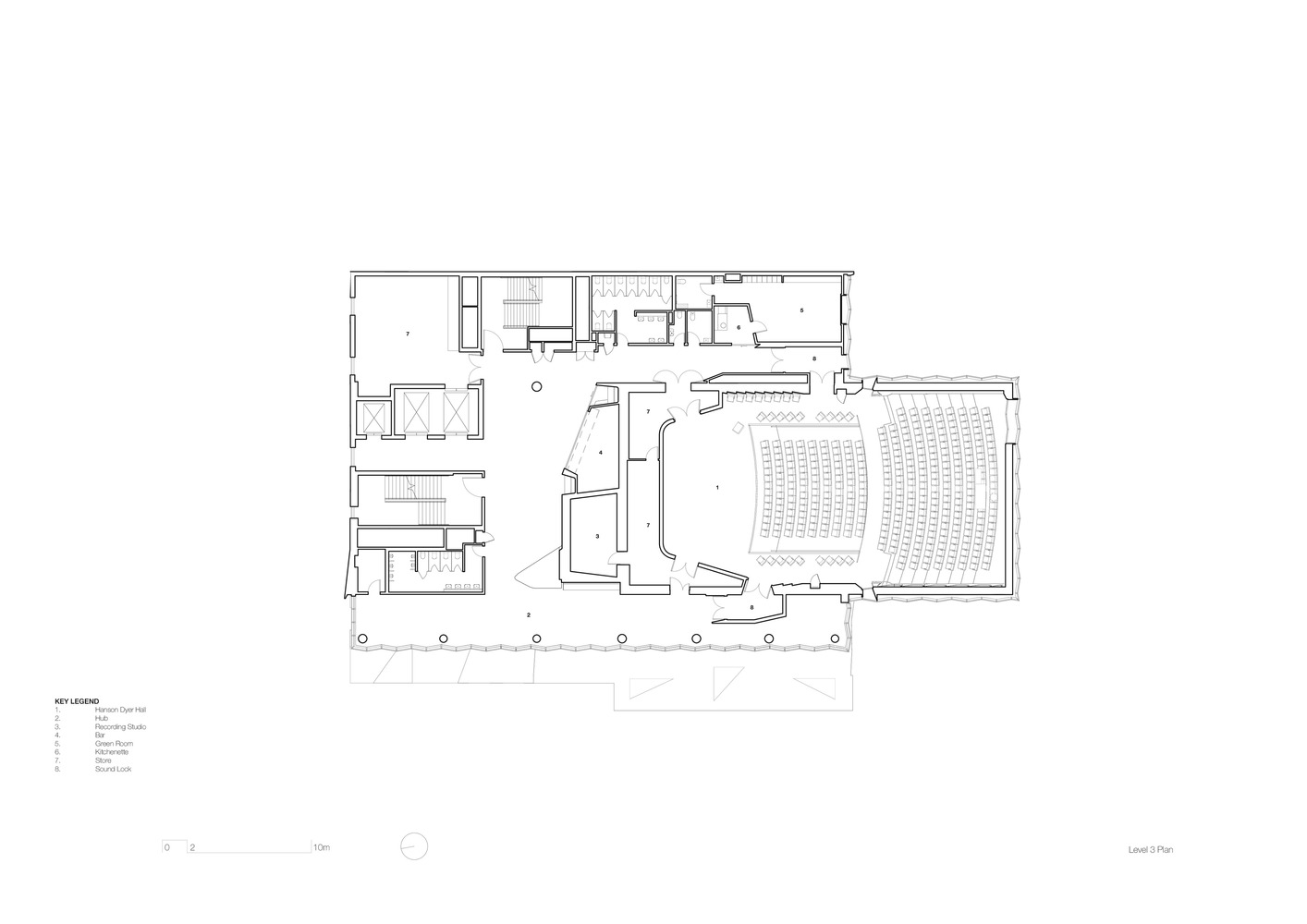
该建筑内包括三个主要的垂直堆叠的场地。其中包括了肯尼斯迈尔大礼堂(KennethMyer Auditorium),这是一个可容纳120人的管弦乐队排练,有者200个可伸缩的座位,可用于演出、独奏和客座讲座的空间。它是一个平面的场地,可用于大型合奏团、管弦乐排练、合唱排练、与管弦乐队合唱、室内乐独奏会、客座演讲和公开独奏会。还有汉森・代尔音乐厅(HansonDyer Hall),这是一个正式的演奏厅,可以容纳40名音乐家同时在台上,或是容纳60人的合唱台,倾斜的座位可以容纳400名观众。它的设计体现出了空间内部的亲密感,希望这个感觉传达到其中的每一个人之中,不论是一个演员还是一小群观众,更或者是整个剧院。最后这个主要的场地是普律登丝迈尔工作室(Prudence MyerStudio),这是一个灵活的平面的用于表演和排练的场地,最多可容纳135人。这个空间主要用于表演课,研讨会,合奏课和学术教学,考试,或者是独奏及小型音乐会。





TAG标签关键词:John Wardle 教学楼 学院 大学 建筑















































































