

在中国的一至三线城市的边缘地区,政府总体规划定位了一些工业用地,原本是用于建造服务于城市的工业厂房。然而在快速发展的城市化进程中,政策上对环境污染的控制和经济上的产业升级,促使制造型的大型厂房要搬离主要城市,城市边上这些工业性质用地也随之开始面临新的业态的注入。
工业用地的性质来自政府对城市总体规划定位,很难改变,于是与工业制造业相关的研发办公类产业成为这些用地的主要内容和功能。我们的甲方经过市场分析测算,从政府手里拿到地,与建筑师合作研发出适合市场需求的办公建筑产品,建造成一个以办公建筑为主的,带有小部分商业配套的科技研发企业园区。这便是设计开始的前提。企业园区建成后的销售或租赁对象是中型和小型私营企业。这些企业在发展的过程中需要从四五线城市进阶到更大的城市,而城市中心区昂贵的办公租金并非合适的选择,于是这些企业会在大城市的外围地区购买一个价格相对便宜的专属自己的企业独栋办公楼
另外那些搬离城市周边的大型工业制造企业仍需要将自己的展厅或结算中心留在原地,以便与大城市保持密切联系。这种市场需求成为企业办公园区运营的经济支撑。新型企业的入驻,给当地政府带来远高于从前的税收。政府因此会很愿意以便宜的地价将土地出让给有合理策划案的开发商,使得企业园区建成后的售价和租金都不高,在私营企业负担得起的范围内。这样的开发模式使得地方政府、开发商、入驻的私营企业都获益,形成市场机制下的良性循环。
天筠办公组团是在北京落成的一个基本组团,是我们与甲方合作研发的办公建筑产品的成果展示,同时用作市场测试。以期未来在别的城市更大规模的实施应用。

我们的设计采用模块化的概念,从研究办公的基本单元开始。每个办公单元的室内平面尺度是一个或者两个8.4米乘8.4米结构框架单位加上周边3.3米的悬挑,并配有一个功能核,其中有一部楼梯、一部电梯和一个卫生间。这样的大小单位组合在一起可以形成几个基本的形体:I形、T形、L型、以及十字形,以便组合成更丰富的建筑组团和室外空间。几个基本组合的功能核设计既需要解决办公单元之间的衔接,又需要使交通面积最精简,以得到最大化的有效办公空间。楼的高度可以是5层到7层。
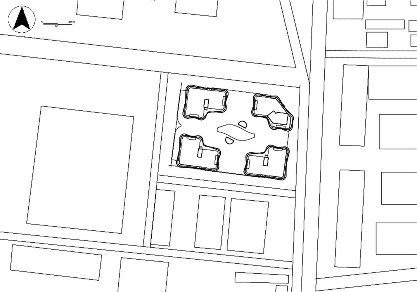
天筠组团源于基地的特征,选用四个L型将基地围合出一个中心广场。每个L型由一大一小两个办公单元组成,地上七层楼高度。大的单元总建筑面积是2600┫,小的是1900┫。 外形设计上同样强调模块化。设计中做了五种曲线边界在垂直方向渐变的研究,最终选择了最简洁的两种边界曲线的交替重复,舍去了更多形式上的变化。这种选择的意义在于:如果考虑高频率重复,则办公单元越简洁,模块越少,越有利于复制和减少工程造价。两种曲线边界的交替,已经能够给阳台和室内空间带来更充分的阳光,并且使人在阳台上感受更丰富的空间变化。曲线阳台围绕建筑一周,栽有绿植,创造出人在工作之余休憩的流动空间。 办公单元的每层室内空间都有一个紧凑的功能核,三面通透的玻璃和室外载有绿植的阳台,为入驻企业自行装修室内空间提供了最大的灵活度。地下层设置了停车和餐厅。广场上的玻璃屋顶为地下室餐厅带来天光。

天筠组团建成后,甲方收到很好的市场测试结果。目前我们正在进行下一步的设计,与甲方合作将这个产品作为主要建筑类型,规划设计到大约200亩的一个城市地块中






TAG标签关键词:第一实践建筑设计 工业园 工业区 住宅楼 塔楼 高楼 大厦 公寓 建筑






































































































































