


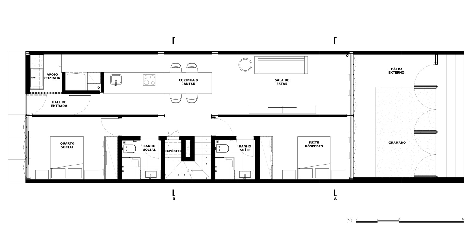
711H House的项目的业主是一个有宝宝的年轻三口之家,还有两只小狗。这使得现状、现实的限制更加明确,项目意在恢复建筑旁边绿化带的活力。具体的建议有,开放前院,把其变成直接与公共绿化带相连的空间,也允许服务街巷直接穿过房子本身




随着时间的推移,伴随着商业区的衰落和居住区功能的混乱,促成了一种景象:大多数的房子超过最高限制高度,私搭乱建,侵占公共空间。因此,房屋前的宽阔的绿色公共空间现在被遗弃,给行人带来安全隐患。

711H House的项目的业主是一个有宝宝的年轻三口之家,还有两只小狗。这使得现状、现实的限制更加明确,项目意在恢复建筑旁边绿化带的活力。具体的建议有,开放前院,把其变成直接与公共绿化带相连的空间,也允许服务街巷直接穿过房子本身











TAG标签关键词:Bloco Arquitetos 住宅 家 建筑



























































