














TAG标签关键词:Tatsuyuki Takagi 房屋 木屋 房子
10 张 希腊optometrist透明眼镜商店看起来像一个画廊,房屋整体采用白色混合漆,表达保鲜功能主题。里面的座椅设计看起来像是雕塑,惟妙惟肖 : 950997
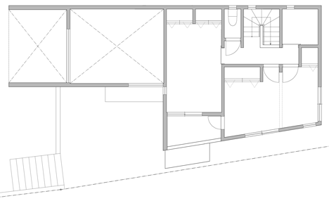
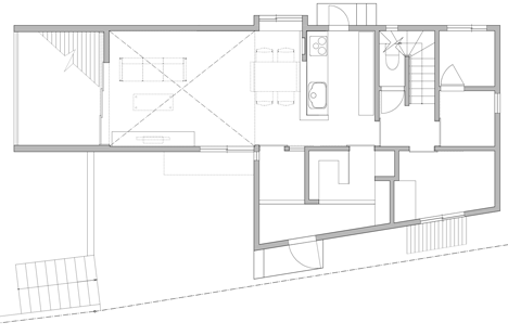
13 张 微型木材舱黑色别墅-倾斜的外墙。挪威工作室Jarmund/Vigsnæs建筑师作品。坐落在挪威首都郊区,只有15平米的结构。是一个安静的工作休息场所 : 948524
8 张 橡树公馆-魁北克市郊区的一所当代住宅,有一个方方正正的黑色车库和一个玻璃休息室,房子的大部分是用温暖色调的木板装饰,当代的审美与更传统的邻居家庭形成对比。 : 959836