

在过去的三年里,我们致力于重新设计,建造并且测试不同类型的 Ark-shelter。我们希望创造一个地方能够在自然的中心带给人舒适感和提供完美的心灵排毒。从这个角度入手,我们创造了一种新类型的“Shelter”:“进入野外小屋”。我们希望通过五个开口创造对周边自然的视觉焦点。每个开口都带来了另一种自然的氛围。

巨大的可打开的墙面和前面的大玻璃会让你觉得置身室外。浴室的磨砂玻璃窗提供你所需的全天然的光线。我们已经制作了一个特别的组件,将它安装在屋顶上,并且带有一个大窗户使你能够睡在布满繁星的天空下。“Shelter”的低技术表皮旨在与自然融为一体,同时改善其复杂而精巧的系统,使之能够自动与空间和光线协同工作。

由于全自动系统,加热,制冷和遮阳系统都能够预先设置。双人床能够自动升到天花板上,床下设有隐藏式按摩浴缸,营造出新的放松区域。The Shelter 可以通过完全离网式的太阳能板,电池和雨水收集器工作。

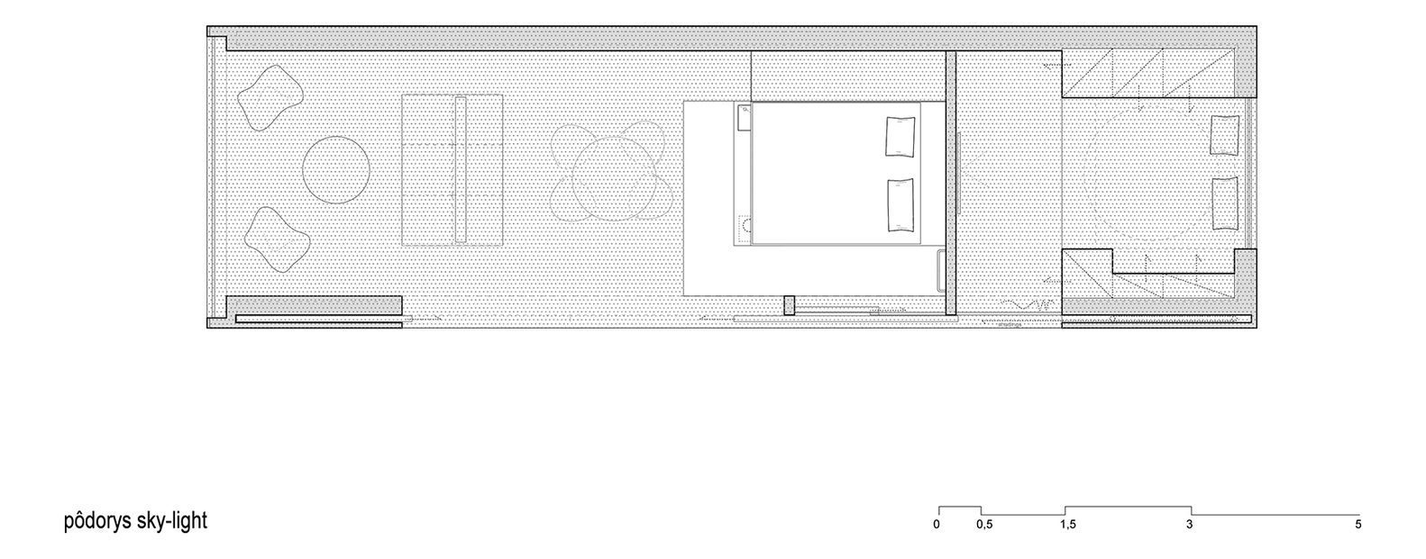
这个40平米的房子有一个中心的黑匣子,从而创造了五个不同的区域,每一面都是 Shelter 独特的部分。角落的滑门创造出更多的空间,每个不同的区域都可以完全地分开。























屋顶上方的组件将更多的阳光引入室内。黑匣子的左边部分用作厨房和休息区,背后是淋浴间和窗边的洗手台。浴室旁边是大床和按摩浴缸。上方的组件也是另一个卧室,可以轻易地变成放松区域。

TAG标签关键词:Ark-shelter 小木屋 木屋 玻璃房 住宅 家 建筑















































































































