当前位置:网站首页 - 图库素材 - 家居建筑 - 建筑
  • 越南277平米以公共区为核心的顺化Q住宅公寓设计图片
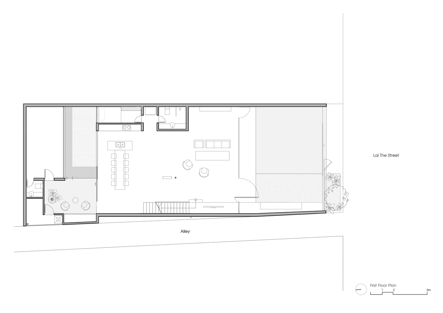
  • 项目位于越南顺化市,面积277平方米,是一个典型的越南两代居住宅,越南中部地区多发极端天气,为了应对恶劣的天气状况,该住宅主要采用钢筋混凝土框架结构。建筑内部,二层到三层多使用木构件。木构件和橡木色的使用营造出温暖放松的氛围,削弱了混凝土的沉重感。当地工匠经手的的装配木结构,也展现出高超的木工工艺。我们不仅在建筑中组织划分生活空间,还将游泳池、树木和花园组成缓冲带,充分利用对流和通风,并将自然光引入住宅。
  • 越南277平米以公共区为核心的顺化Q住宅公寓设计---酷图编号1
  • 越南277平米以公共区为核心的顺化Q住宅公寓设计---酷图编号2
  • 作为一个住宅项目,除了满足业主的精神和物质需求外,设计还旨在重塑现代的生活方式,他们总是在外面忙碌,几乎忘却了如何在家中享受宁静

  • 作为一个住宅项目,除了满足业主的精神和物质需求外,设计还旨在重塑现代的生活方式,他们总是在外面忙碌,几乎忘却了如何在家中享受宁静
  • 我们希望促进家人间的沟通,公共空间布置在一层中心,在一层他们就可以与楼上的卧室产生互动,从而营造出这样的场景:客厅里的朋友们聚会畅谈,同时协助厨房中做饭的母亲,孩子们则在中间嬉戏

  • 我们希望促进家人间的沟通,公共空间布置在一层中心,在一层他们就可以与楼上的卧室产生互动,从而营造出这样的场景:客厅里的朋友们聚会畅谈,同时协助厨房中做饭的母亲,孩子们则在中间嬉戏
  • 室内材料主要选取木材以营造出一个舒适的氛围,天花板使用混凝土,地板采用了当地的一种黑色石材。此外,在房间中穿插绿化和花园,有助于增进人与自然的互动。

  • 室内材料主要选取木材以营造出一个舒适的氛围,天花板使用混凝土,地板采用了当地的一种黑色石材。此外,在房间中穿插绿化和花园,有助于增进人与自然的互动。
  • 越南277平米以公共区为核心的顺化Q住宅公寓设计---酷图编号6
  • 越南277平米以公共区为核心的顺化Q住宅公寓设计---酷图编号7
  • 越南277平米以公共区为核心的顺化Q住宅公寓设计---酷图编号8
  • 越南277平米以公共区为核心的顺化Q住宅公寓设计---酷图编号9
  • 越南277平米以公共区为核心的顺化Q住宅公寓设计---酷图编号10
  • 越南277平米以公共区为核心的顺化Q住宅公寓设计---酷图编号11
  • 越南277平米以公共区为核心的顺化Q住宅公寓设计---酷图编号12
  • 越南277平米以公共区为核心的顺化Q住宅公寓设计---酷图编号13
  • 越南277平米以公共区为核心的顺化Q住宅公寓设计---酷图编号14
  • 越南277平米以公共区为核心的顺化Q住宅公寓设计---酷图编号15
  • 越南277平米以公共区为核心的顺化Q住宅公寓设计---酷图编号16
  • 越南277平米以公共区为核心的顺化Q住宅公寓设计---酷图编号17
  • 越南277平米以公共区为核心的顺化Q住宅公寓设计---酷图编号18
  • 越南277平米以公共区为核心的顺化Q住宅公寓设计---酷图编号19
  • 越南277平米以公共区为核心的顺化Q住宅公寓设计---酷图编号20
  • 越南277平米以公共区为核心的顺化Q住宅公寓设计---酷图编号21
  • 越南277平米以公共区为核心的顺化Q住宅公寓设计---酷图编号22
  • 越南277平米以公共区为核心的顺化Q住宅公寓设计---酷图编号23
  • 越南277平米以公共区为核心的顺化Q住宅公寓设计---酷图编号24
  • 越南277平米以公共区为核心的顺化Q住宅公寓设计---酷图编号25
  • 越南277平米以公共区为核心的顺化Q住宅公寓设计---酷图编号26
  • 越南277平米以公共区为核心的顺化Q住宅公寓设计---酷图编号27
  • 越南277平米以公共区为核心的顺化Q住宅公寓设计---酷图编号28
  • 越南277平米以公共区为核心的顺化Q住宅公寓设计---酷图编号29
  • 越南277平米以公共区为核心的顺化Q住宅公寓设计---酷图编号30
  • 越南277平米以公共区为核心的顺化Q住宅公寓设计---酷图编号31
  • 越南277平米以公共区为核心的顺化Q住宅公寓设计---酷图编号32
  • 越南277平米以公共区为核心的顺化Q住宅公寓设计---酷图编号33
  • 越南277平米以公共区为核心的顺化Q住宅公寓设计---酷图编号34
  • 越南277平米以公共区为核心的顺化Q住宅公寓设计---酷图编号35
  • 越南277平米以公共区为核心的顺化Q住宅公寓设计---酷图编号36
  • 越南277平米以公共区为核心的顺化Q住宅公寓设计---酷图编号37
  • 越南277平米以公共区为核心的顺化Q住宅公寓设计---酷图编号38
  • 越南277平米以公共区为核心的顺化Q住宅公寓设计---酷图编号39
  • 越南277平米以公共区为核心的顺化Q住宅公寓设计---酷图编号40
  • 越南277平米以公共区为核心的顺化Q住宅公寓设计---酷图编号41
  • 越南277平米以公共区为核心的顺化Q住宅公寓设计---酷图编号42
  • 越南277平米以公共区为核心的顺化Q住宅公寓设计---酷图编号43
  • 越南277平米以公共区为核心的顺化Q住宅公寓设计---酷图编号44
  • 越南277平米以公共区为核心的顺化Q住宅公寓设计---酷图编号45
  • 越南277平米以公共区为核心的顺化Q住宅公寓设计---酷图编号46
  • 越南277平米以公共区为核心的顺化Q住宅公寓设计---酷图编号47
  • 图片信息简介:越南277平米以公共区为核心的顺化Q住宅公寓设计·图片编号为994599,BHA是此图片的作者,上传时间为2021-02-27 21:20:55,格式为JPG,颜色模式为RGB,分辨率为72 Dpi。
    特别提醒:本站所有作品收集于网络,版权均属各自所有者,本站素材仅提供学习参考,请勿商用,如有侵权请联系我们邮箱(200894114#qq.com,把#换成@)删除,要购买全部版权商用请自行联系作者,谢谢!
    相关标签搜索:
  • 相关系列图片/素材作品
  • 以下仅展现近期部分相关系列的图片素材,要看全部相关作品,请逐个查看右上角的相关标签搜索
  • 10 张   Mani Bhatia的造型和创意方向

       2023-08-28

    15 张   概念乒乓球拍设计

       2023-05-19

    7 张   BRABHAM BT62-绿色豪车

       2021-01-22

    5 张   Dustpan簸箕设计

       2020-12-04

    34 张   Ridhima Bhasin Festive-姐妹行

       2020-03-29

    1 张   印度阿莉雅?布哈特歌手

       2020-01-13

    18 张   EXEED-星途-敢超越

       2019-08-06

    4 张   P A S T E L-蓝眉女王

       2017-07-21

    7 张   Grazia印度-牛仔布姐妹人像

       2017-06-13

    4 张   Get Wet Vol. - II-水珠蓝眼

       2017-05-17

    43 张   挪威奥斯陆的极简主义公寓

       2024-06-23

    10 张   Grey House-现代简约风室内设计

       2023-06-09

    8 张   兰德林公寓 2.0

       2022-03-18

    59 张   超柔和单色现代照明灵感装饰

       2022-03-10

    7 张   宁波戴宅-黑白时尚公寓设计

       2022-03-03

    10 张   叙利亚风公寓室内设计

       2022-03-01

    7 张   兰德林公寓

       2022-02-13

    10 张   SU HOUSE室内装修设计

       2021-12-15

    7 张   比利时BOSLAAN公寓室内设计

       2021-12-09

    11 张   Abaco Bahamas-别墅室内设计

       2023-02-21

    11 张   3dor Concepts的Ayoob之家

       2022-03-16

    29 张   日本119平米木质檐屋建筑

       2021-01-25

    61 张   越南192平米的浮巢独立住宅

       2020-12-21

    12 张   乌克兰第聂伯罗公寓室内设计

       2020-12-17

    42 张   橙色和蓝色装饰的俏皮公寓

       2020-12-04

    39 张   俄罗斯自由塔抛光城市公寓

       2020-12-04

    19 张   多伦多狭窄房屋

       2020-10-22

    14 张   Scoopify Gelato-空间建筑设计

       2025-07-16

    1 张   红色螺旋楼梯建筑独特景观

       2025-07-16

    14 张   Coffee Lab-咖啡实验室室内设计

       2025-06-20

    19 张   IBM纽约旗舰店

       2025-05-16

    13 张   Office N-01-办公室设计

       2025-03-20

    15 张   Hram-奢华酒吧静吧室内设计

       2024-07-18

    27 张   墨色芙蓉现代酒店大堂设计

       2024-06-28

    3 张   翻修的曼联室内休息训练场

       2024-06-24

    16 张   小型现代乡村工作室室内设计

       2024-06-16

    30 张   温哥华使用悬臂的住宅

       2024-05-31

    30 张   WOJR完成俯瞰硅谷的角屋

       2025-09-28

    6 张   UTAMED-生态融合建筑设计全景

       2025-07-16

    38 张   被烧焦的橙色环绕墙壁建筑

       2025-06-04

    10 张   波纹反射天花板的餐厅

       2025-03-05

    20 张   Architecture-建筑家居设计

       2024-10-21

    1 张   黑白几何感建筑立面

       2025-09-25

    1 张   黑白调建筑结构特写

       2025-09-16

    1 张   教堂拱形花窗的光影之美

       2025-09-08

    1 张   伦敦大本钟-暮色下的时间地标

       2025-08-15

    1 张   建筑光影-黄昏下的都市立面

       2025-08-02

    14 张   现代建筑-自然融合的空间美学

       2025-07-25

    1 张   夜幕下的都市璀璨天际线

       2025-07-17

    1 张   星空下的天文台夜景

       2025-07-16

    5 张   加拿大岛屿生活天堂度假胜地

       2025-07-14

  • 查看更多家居建筑类型素材图库