当前位置:网站首页 - 图库素材 - 家居建筑 - 建筑
  • 越南192平米的浮巢独立住宅图片
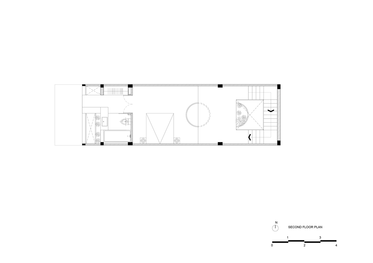
  • 浮巢住宅(Floating Nest)位于越南首都胡志明市,是当地典型的长条形住宅。场地位于拥挤的都市之中,形状为4 x 12米的长条矩形,其中三面都有相邻的建筑物,只有西面朝向开放的街道。户主希望能拥有一栋可以让自己完全放松的住宅,在一天忙碌的工作之后,可以在家里种种花草,修养身心。
  • 为了克服场地的局限性,让住宅能有充足的自然光照和通风,我们决定不在内部设置隔墙,而是使用“绿植”及“虚空间”来分隔各个功能空间。我们为住宅配置了三个较大的虚空间,分别是住宅前侧的入口庭院,住宅后侧的楼梯天井,以及贯通四层和五层的中央天井。两侧的庭院可以将住宅与街道区隔开,有效地降低噪音的影响;中央天井则无形地将办公区和休憩空间有效地区隔开,让住宅成为动静相宜的空间。

  • 为了克服场地的局限性,让住宅能有充足的自然光照和通风,我们决定不在内部设置隔墙,而是使用“绿植”及“虚空间”来分隔各个功能空间。我们为住宅配置了三个较大的虚空间,分别是住宅前侧的入口庭院,住宅后侧的楼梯天井,以及贯通四层和五层的中央天井。两侧的庭院可以将住宅与街道区隔开,有效地降低噪音的影响;中央天井则无形地将办公区和休憩空间有效地区隔开,让住宅成为动静相宜的空间。
  • 我们还设置了几个微型庭院,用于分隔室内和室外、卫生间和卧室,以及卧室和楼梯。这样的设计策略能让各个功能空间形成良好的过渡,同时也使各个空间能与自然连接在一起

  • 我们还设置了几个微型庭院,用于分隔室内和室外、卫生间和卧室,以及卧室和楼梯。这样的设计策略能让各个功能空间形成良好的过渡,同时也使各个空间能与自然连接在一起
  • 我们将传统材料与现代建材融合在了一起,包括竹子,木头,玻璃和钢材,来构建这栋形似传统越南“农舍”的住宅。竹子是当地的一种天然材料,既环保又经济。住宅的立面即是用竹子建构的幕墙,类似于越南传统乡村建筑中的“藤制墙”,既能够满足遮阳的需求,也可以保证住宅的私密性。我们还将竹幕延伸至屋面,为屋顶的半户外空间提供遮蔽。此外,编织的竹子幕墙还有助于住宅的自然通风。

  • 我们将传统材料与现代建材融合在了一起,包括竹子,木头,玻璃和钢材,来构建这栋形似传统越南“农舍”的住宅。竹子是当地的一种天然材料,既环保又经济。住宅的立面即是用竹子建构的幕墙,类似于越南传统乡村建筑中的“藤制墙”,既能够满足遮阳的需求,也可以保证住宅的私密性。我们还将竹幕延伸至屋面,为屋顶的半户外空间提供遮蔽。此外,编织的竹子幕墙还有助于住宅的自然通风。
  • 我们为该住宅特别定制了铁质的镂空板作为隔断,镂空的叶纹,是对越南传统屏风的现代诠释。这些屏风使用数控机床(CNC)进行精密加工,能够起到透光和通风的效果,同时也作为阳台和入口大门的遮阳板。屏风的使用,让整个空间显得开放,各个部分也相互连接和贯通。住宅后侧的竹制天花采用了类似风铃的设计,我们使用垂直的竹段作为风铃,既与竹构的立面相互呼应,也能起到透光和遮阳的效果。

  • 我们为该住宅特别定制了铁质的镂空板作为隔断,镂空的叶纹,是对越南传统屏风的现代诠释。这些屏风使用数控机床(CNC)进行精密加工,能够起到透光和通风的效果,同时也作为阳台和入口大门的遮阳板。屏风的使用,让整个空间显得开放,各个部分也相互连接和贯通。住宅后侧的竹制天花采用了类似风铃的设计,我们使用垂直的竹段作为风铃,既与竹构的立面相互呼应,也能起到透光和遮阳的效果。
  • 我们使用薄铁来替代混凝土,建造了楼梯,花盆,阳台和遮阳篷,以减轻结构重量。另外,在越南家庭中最重要的神龛空间,我们使用镂空板作为背景墙,让该空间可以成为诗意的冥想空间。

  • 我们使用薄铁来替代混凝土,建造了楼梯,花盆,阳台和遮阳篷,以减轻结构重量。另外,在越南家庭中最重要的神龛空间,我们使用镂空板作为背景墙,让该空间可以成为诗意的冥想空间。
  • 所有的这些设计策略使整个住宅显得宽敞明亮,充盈着光和影,就似漂浮绿树之上鸟巢。日落时分,住宅内部的光线透过竹幕和屏风照射出来,整个建筑摇身一变成为璀璨夺目的灯笼

  • 所有的这些设计策略使整个住宅显得宽敞明亮,充盈着光和影,就似漂浮绿树之上鸟巢。日落时分,住宅内部的光线透过竹幕和屏风照射出来,整个建筑摇身一变成为璀璨夺目的灯笼
  • 越南192平米的浮巢独立住宅---酷图编号7
  • 越南192平米的浮巢独立住宅---酷图编号8
  • 越南192平米的浮巢独立住宅---酷图编号9
  • 越南192平米的浮巢独立住宅---酷图编号10
  • 越南192平米的浮巢独立住宅---酷图编号11
  • 越南192平米的浮巢独立住宅---酷图编号12
  • 越南192平米的浮巢独立住宅---酷图编号13
  • 越南192平米的浮巢独立住宅---酷图编号14
  • 越南192平米的浮巢独立住宅---酷图编号15
  • 越南192平米的浮巢独立住宅---酷图编号16
  • 越南192平米的浮巢独立住宅---酷图编号17
  • 越南192平米的浮巢独立住宅---酷图编号18
  • 越南192平米的浮巢独立住宅---酷图编号19
  • 越南192平米的浮巢独立住宅---酷图编号20
  • 越南192平米的浮巢独立住宅---酷图编号21
  • 越南192平米的浮巢独立住宅---酷图编号22
  • 越南192平米的浮巢独立住宅---酷图编号23
  • 越南192平米的浮巢独立住宅---酷图编号24
  • 越南192平米的浮巢独立住宅---酷图编号25
  • 越南192平米的浮巢独立住宅---酷图编号26
  • 越南192平米的浮巢独立住宅---酷图编号27
  • 越南192平米的浮巢独立住宅---酷图编号28
  • 越南192平米的浮巢独立住宅---酷图编号29
  • 越南192平米的浮巢独立住宅---酷图编号30
  • 越南192平米的浮巢独立住宅---酷图编号31
  • 越南192平米的浮巢独立住宅---酷图编号32
  • 越南192平米的浮巢独立住宅---酷图编号33
  • 越南192平米的浮巢独立住宅---酷图编号34
  • 越南192平米的浮巢独立住宅---酷图编号35
  • 越南192平米的浮巢独立住宅---酷图编号36
  • 越南192平米的浮巢独立住宅---酷图编号37
  • 越南192平米的浮巢独立住宅---酷图编号38
  • 越南192平米的浮巢独立住宅---酷图编号39
  • 越南192平米的浮巢独立住宅---酷图编号40
  • 越南192平米的浮巢独立住宅---酷图编号41
  • 越南192平米的浮巢独立住宅---酷图编号42
  • 越南192平米的浮巢独立住宅---酷图编号43
  • 越南192平米的浮巢独立住宅---酷图编号44
  • 越南192平米的浮巢独立住宅---酷图编号45
  • 越南192平米的浮巢独立住宅---酷图编号46
  • 越南192平米的浮巢独立住宅---酷图编号47
  • 越南192平米的浮巢独立住宅---酷图编号48
  • 越南192平米的浮巢独立住宅---酷图编号49
  • 越南192平米的浮巢独立住宅---酷图编号50
  • 越南192平米的浮巢独立住宅---酷图编号51
  • 越南192平米的浮巢独立住宅---酷图编号52
  • 越南192平米的浮巢独立住宅---酷图编号53
  • 越南192平米的浮巢独立住宅---酷图编号54
  • 越南192平米的浮巢独立住宅---酷图编号55
  • 越南192平米的浮巢独立住宅---酷图编号56
  • 越南192平米的浮巢独立住宅---酷图编号57
  • 越南192平米的浮巢独立住宅---酷图编号58
  • 越南192平米的浮巢独立住宅---酷图编号59
  • 越南192平米的浮巢独立住宅---酷图编号60
  • 图片信息简介:越南192平米的浮巢独立住宅·图片编号为992968,atelier NgNg是此图片的作者,上传时间为2020-12-21 13:38:20,格式为JPG,颜色模式为RGB,分辨率为72 Dpi。
    特别提醒:本站所有作品收集于网络,版权均属各自所有者,本站素材仅提供学习参考,请勿商用,如有侵权请联系我们邮箱(200894114#qq.com,把#换成@)删除,要购买全部版权商用请自行联系作者,谢谢!
    相关标签搜索:
  • 相关系列图片/素材作品
  • 以下仅展现近期部分相关系列的图片素材,要看全部相关作品,请逐个查看右上角的相关标签搜索
  • 61 张   越南192平米的浮巢独立住宅

       2020-12-21

    27 张   韩国145平米的独立住宅

       2021-08-14

    38 张   西班牙264平米的住宅建筑

       2020-12-21

    35 张   墨西哥200平米的Zicatela独立住宅

       2020-12-18

    19 张   美国2000平米的板条独立住宅

       2020-10-18

    39 张   中国台湾36平米的H住宅

       2020-06-16

    22 张   日本80平米的木质独立住宅

       2020-01-29

    19 张   法国生物材质街区独立住宅

       2019-07-23

    38 张   被烧焦的橙色环绕墙壁建筑

       2025-06-04

    13 张   Office N-01-办公室设计

       2025-03-20

    28 张   北卡罗来纳州的房子

       2025-01-07

    31 张   北欧乡村风格的现代室内设计

       2023-09-23

    16 张   两个明亮奢华的生活空间

       2023-09-10

    19 张   休斯顿的房子设计

       2023-08-27

    9 张   Eefremova Street 26 的住宅楼

       2022-08-22

    10 张   Winnetonka-白色房屋设计

       2022-07-25

    11 张   Abaco Bahamas-别墅室内设计

       2023-02-21

    11 张   3dor Concepts的Ayoob之家

       2022-03-16

    29 张   日本119平米木质檐屋建筑

       2021-01-25

    12 张   乌克兰第聂伯罗公寓室内设计

       2020-12-17

    42 张   橙色和蓝色装饰的俏皮公寓

       2020-12-04

    39 张   俄罗斯自由塔抛光城市公寓

       2020-12-04

    19 张   多伦多狭窄房屋

       2020-10-22

    30 张   WOJR完成俯瞰硅谷的角屋

       2025-09-28

    14 张   Scoopify Gelato-空间建筑设计

       2025-07-16

    6 张   UTAMED-生态融合建筑设计全景

       2025-07-16

    19 张   IBM纽约旗舰店

       2025-05-16

    10 张   波纹反射天花板的餐厅

       2025-03-05

    20 张   Architecture-建筑家居设计

       2024-10-21

    1 张   黑白几何感建筑立面

       2025-09-25

    1 张   黑白调建筑结构特写

       2025-09-16

    1 张   教堂拱形花窗的光影之美

       2025-09-08

    1 张   伦敦大本钟-暮色下的时间地标

       2025-08-15

    1 张   建筑光影-黄昏下的都市立面

       2025-08-02

    14 张   现代建筑-自然融合的空间美学

       2025-07-25

    1 张   夜幕下的都市璀璨天际线

       2025-07-17

    1 张   红色螺旋楼梯建筑独特景观

       2025-07-16

    1 张   星空下的天文台夜景

       2025-07-16

    5 张   加拿大岛屿生活天堂度假胜地

       2025-07-14

  • 查看更多家居建筑类型素材图库