红岭实验小学及其周边城市的所在地原本是福田区西北部的一座名为安托山的小山。这座小山在城市中广为人知是因为它供给了大量用于城市填海扩张的花岗岩土石方,以至于山体被基本削平,仅剩在小学西侧的一座孤独的小山包。其余场地在采石行动逐步退出后被平整为城市开发用地
红岭实验小学的建设用地约100米见方,原规划24班小学,后因学位缺口巨大而增容至36班。现建筑面积约为原规划的两倍,建筑容积率超过3.0。加上用地东南角基础对地铁线路的避让、道路退缩以及规范上对日照间距(虽然这在亚热带气候的南方常被质疑,但到目前为止仍是强制性的要求)的规定,使得建筑设计面临诸多空间上的挑战
因此,校园垂直向度的策略变得至关重要。超过24米的高层校舍在深圳小学建筑中已经被广泛采用,但相应的副作用是垂直方向的交通过多以及楼梯间需要被封闭和增加前室而阻隔了小学生们的交往。建筑师在红岭实验小学的设计中努力把建筑总高控制在24米以下,以创造水平交往和在建筑/景观空间上回应对儿童的身体和心理特点
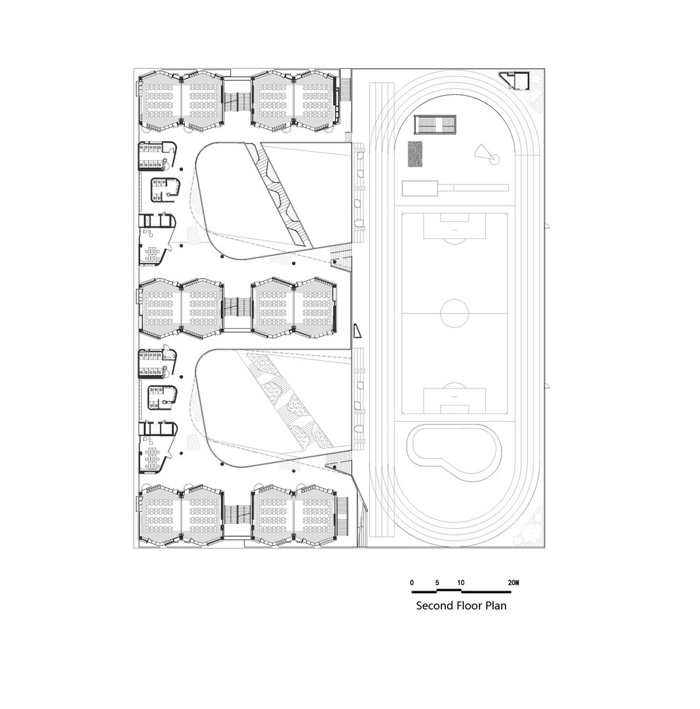
教学建筑几乎满铺可以建设的用地,建筑分为东西高度不同的两个半区,平面上以两个镜像的E字形连接。西半区利用学习单元之间所必须的间距创造出两个曲线形边界的“山谷”庭院。庭院下沉至地下一层,结合由道路退缩距离中取得的边坡绿化,为地下一层的文体设施和餐厅空间争取充足的采光和自然通风

下沉庭院通过缓坡和露天阶梯剧场与架空且自然起伏的首层地面连接成为一个整体的地景儿童乐园。200米环形跑道和运动场被置于建筑东半区三层屋面,与西侧主教学建筑的三层平面相连,便于在二、三、四楼上课的小学生们课间到运动区域活动






“山谷”庭院、上下错动的水平层板、疏松的细胞组织以及有机的绿化植入系统均是项目中回应高密度和亚热带的南方气候的建造策略。而更为重要的是,建筑师希望通过红岭实验小学的建造过程和结果进一步探索高速发展之后的高密度城市里公共性设施的全新空间范式


运动场下方中部是可容纳300人的小礼堂,悬挂于镶嵌在地景乐园中的半户外泳池。主教学建筑的四、五层分别为课外教室和教师办公室,而天面屋顶是学校的园艺农场
学习单元――传统上称为课室,是小学生们学习和交往基本空间细胞单元。建筑师针对深圳所在的亚热带气候在水平的E字形板式楼层平面上构想了成对组合的鼓形平面的教学单元,避免课室过长的连排阻隔自然通风。每层12间课室分3列共6对布置。每个单元对组合可以通过开闭连接部的灵活隔断以满足合班和分班等不同空间需要

鼓形平面展现出比传统矩形学习单元更大的灵活性与自由度,更有利于单元课室里面的多样化的教学模式。课室经过连接后产生的富有韵律的折曲线与各层楼板在内庭院一侧的自由曲线间形成的线性活动场地,为小朋友们课间提供了一个富有活力的半户外活动场地

建筑师利用了场地北高南低的条件让每层的三排课室从南往北各有一米的高差,在E形平板上产生了爬升的地景式行进体验。最终,两个“山谷”庭院中各有两道连接庭院两侧不同楼层的阶梯式花园廊桥,在“山谷”的上空悬置了一份独特的观赏和游戏体验








特别提醒:本站所有作品收集于网络,版权均属各自所有者,本站素材仅提供学习参考,请勿商用,如有侵权请联系我们邮箱(200894114#qq.com,把#换成@)删除,要购买全部版权商用请自行联系作者,谢谢!
相关标签搜索:


