当前位置:网站首页 - 图库素材 - 家居建筑 - 建筑
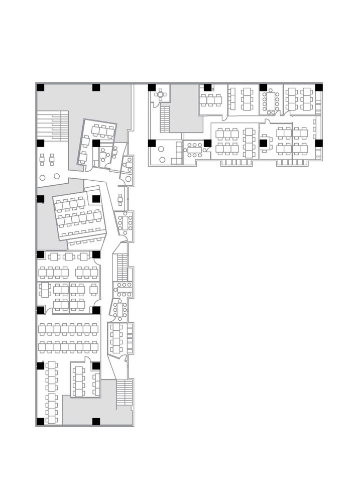
  • 原始的商业空间5米层高,在原建筑基础上,建筑师进行局部搭建,增加了LOFT空间组团。同时将一些短时间使用的空间,如会议室、 茶水间、设备间等功能性空间放到整个空间北侧,靠走廊这一侧不采光的区域。另外把采光面最好的南侧部分留给了长期办公停留的工区,并在每隔一段距离放置一个通高公共空间,活动场所,咖啡厅,把最好的视线与阳光分享给集体
  • 彩色盒子办公室空间坐落于望京CBD一座商业楼,北京政府实行转型城市政策后,进行新的功能植入,其原有商场区域修改为写字楼功能,Woo Space作为运营方, 让新式办公空间里融合不同的团队在一个空间里,共享会议活动场所,路演区,餐饮区以及休息区。

  • 原始的商业空间5米层高,在原建筑基础上,建筑师进行局部搭建,增加了LOFT空间组团。同时将一些短时间使用的空间,如会议室、 茶水间、设备间等功能性空间放到整个空间北侧,靠走廊这一侧不采光的区域。另外把采光面最好的南侧部分留给了长期办公停留的工区,并在每隔一段距离放置一个通高公共空间,活动场所,咖啡厅,把最好的视线与阳光分享给集体
  • 建筑师分别在建筑的两端增加了两组廊道,呈现立体的室内空间模型,并形成竖向交通。由此,上下流动问题成为空间中的首要问题。在交通空间的设计上,除了解决基本的快速通过功能外,赋予新的使用可能,如入口集合广场的阶梯是活动座椅本身,也是通往二层新搭建的平台。放大路径的丰富性增加了行走中的空间体验,也加强了空间体积感。廊道角落里放置一些休憩设施,让每个人找到一个属于自我的天地。

  • 建筑师分别在建筑的两端增加了两组廊道,呈现立体的室内空间模型,并形成竖向交通。由此,上下流动问题成为空间中的首要问题。在交通空间的设计上,除了解决基本的快速通过功能外,赋予新的使用可能,如入口集合广场的阶梯是活动座椅本身,也是通往二层新搭建的平台。放大路径的丰富性增加了行走中的空间体验,也加强了空间体积感。廊道角落里放置一些休憩设施,让每个人找到一个属于自我的天地。
  • 建筑师对室内空间进行梳理,在于把原本相对均质的格局变得交错有致。建筑师通过不同的建筑材料构建塑造不同性格的盒子,如 PC阳光板,穿孔网,金属平面,地面采用不同色彩的地胶。并希望通过空间尺度和视线通透变化,结合自然光、人工光以及室内材质界面的透明性因素,形成一个不断交替的空间节奏韵律。二层桥梁将一个个工作区域串接起来,犹如独立的盒子散落在一个开放平面中,有开放的,半围合的,根据团队的需求选取功能盒子。通过对路径的设计来改变人的行为方式将行走的体验和日常单调的工作模式结合,在这里,不同企业员工通过不同盒子,遇到不同的人,碰撞不同的思想火花,打破原有封闭办公模式的格局,激发场地内部活力,

  • 建筑师对室内空间进行梳理,在于把原本相对均质的格局变得交错有致。建筑师通过不同的建筑材料构建塑造不同性格的盒子,如 PC阳光板,穿孔网,金属平面,地面采用不同色彩的地胶。并希望通过空间尺度和视线通透变化,结合自然光、人工光以及室内材质界面的透明性因素,形成一个不断交替的空间节奏韵律。二层桥梁将一个个工作区域串接起来,犹如独立的盒子散落在一个开放平面中,有开放的,半围合的,根据团队的需求选取功能盒子。通过对路径的设计来改变人的行为方式将行走的体验和日常单调的工作模式结合,在这里,不同企业员工通过不同盒子,遇到不同的人,碰撞不同的思想火花,打破原有封闭办公模式的格局,激发场地内部活力,
  • 北京望京国际商业中心3000平方米的彩色盒子办公空间---酷图编号4
  • 北京望京国际商业中心3000平方米的彩色盒子办公空间---酷图编号5
  • 北京望京国际商业中心3000平方米的彩色盒子办公空间---酷图编号6
  • 北京望京国际商业中心3000平方米的彩色盒子办公空间---酷图编号7
  • 北京望京国际商业中心3000平方米的彩色盒子办公空间---酷图编号8
  • 北京望京国际商业中心3000平方米的彩色盒子办公空间---酷图编号9
  • 北京望京国际商业中心3000平方米的彩色盒子办公空间---酷图编号10
  • 北京望京国际商业中心3000平方米的彩色盒子办公空间---酷图编号11
  • 北京望京国际商业中心3000平方米的彩色盒子办公空间---酷图编号12
  • 北京望京国际商业中心3000平方米的彩色盒子办公空间---酷图编号13
  • 北京望京国际商业中心3000平方米的彩色盒子办公空间---酷图编号14
  • 北京望京国际商业中心3000平方米的彩色盒子办公空间---酷图编号15
  • 北京望京国际商业中心3000平方米的彩色盒子办公空间---酷图编号16
  • 北京望京国际商业中心3000平方米的彩色盒子办公空间---酷图编号17
  • 北京望京国际商业中心3000平方米的彩色盒子办公空间---酷图编号18
  • 北京望京国际商业中心3000平方米的彩色盒子办公空间---酷图编号19
  • 北京望京国际商业中心3000平方米的彩色盒子办公空间---酷图编号20
  • 图片信息简介:北京望京国际商业中心3000平方米的彩色盒子办公空间·图片编号为971674,hyperSity是此图片的作者,上传时间为2019-05-08 20:09:43,格式为JPG,颜色模式为RGB,分辨率为72 Dpi。
    特别提醒:本站所有作品收集于网络,版权均属各自所有者,本站素材仅提供学习参考,请勿商用,如有侵权请联系我们邮箱(200894114#qq.com,把#换成@)删除,要购买全部版权商用请自行联系作者,谢谢!
    相关标签搜索:
  • 相关系列图片/素材作品
  • 以下仅展现近期部分相关系列的图片素材,要看全部相关作品,请逐个查看右上角的相关标签搜索
  • 17 张   北京凡普金科办公空间设计

       2018-11-21

    31 张   150平米北京大栅栏V宅

       2018-06-16

    55 张   MOVA BEER空间设计

       2023-05-10

    10 张   CRAFTON-彩色抽象画布的办公空间

       2022-04-28

    8 张   宝地共享办公空间

       2020-12-24

    1 张   会议室办公空间素材下载中

       2020-12-24

    8 张   宝地共享办公空间

       2020-12-16

    1 张   时尚的卡通IT办公图

       2020-10-13

    36 张   Academy 2.0办公空间的内部照片

       2020-06-02

    7 张   使隔离工作空间安全时尚

       2020-05-27

    1 张   现代办公场所卡通素材图下载

       2020-03-05

    1 张   卡通漫画类办公素材

       2020-02-26

    1 张   敞开式办公区域卡通素材

       2020-02-21

    1 张   简约办公场景图片

       2025-07-11

    1 张   卡通电脑办公室素材

       2025-05-20

    13 张   Office N-01-办公室设计

       2025-03-20

    1 张   卡通商务办公室场景素材

       2024-11-03

    1 张   夜晚在办公室办公的女性白领

       2024-09-22

    5 张   德国汉堡MSH大学及办公楼

       2024-09-19

    1 张   卡通生物学习学校课堂

       2024-09-14

    3 张   MT Højgaard-丹麦哥本哈根办公楼

       2024-09-11

    1 张   在家办公的年轻男女

       2024-09-07

    1 张   蓝紫色的办公室

       2024-08-26

    1 张   卡通窗外狂风暴雨的办公室

       2024-08-26

    1 张   现代时尚的办公室素材

    VIP

       2024-08-05

    11 张   Abaco Bahamas-别墅室内设计

       2023-02-21

    11 张   3dor Concepts的Ayoob之家

       2022-03-16

    29 张   日本119平米木质檐屋建筑

       2021-01-25

    61 张   越南192平米的浮巢独立住宅

       2020-12-21

    12 张   乌克兰第聂伯罗公寓室内设计

       2020-12-17

    42 张   橙色和蓝色装饰的俏皮公寓

       2020-12-04

    39 张   俄罗斯自由塔抛光城市公寓

       2020-12-04

    19 张   多伦多狭窄房屋

       2020-10-22

    14 张   Scoopify Gelato-空间建筑设计

       2025-07-16

    14 张   Coffee Lab-咖啡实验室室内设计

       2025-06-20

    38 张   被烧焦的橙色环绕墙壁建筑

       2025-06-04

    20 张   Architecture-建筑家居设计

       2024-10-21

    9 张   japandi客厅室内设计

       2024-10-15

    10 张   Guest Bedroom-客房卧室设计图

       2024-10-13

    21 张   现代国外21款豪华卧室设计理念

       2024-09-07

    30 张   WOJR完成俯瞰硅谷的角屋

       2025-09-28

    1 张   黑白几何感建筑立面

       2025-09-25

    1 张   黑白调建筑结构特写

       2025-09-16

    1 张   教堂拱形花窗的光影之美

       2025-09-08

    1 张   伦敦大本钟-暮色下的时间地标

       2025-08-15

    1 张   建筑光影-黄昏下的都市立面

       2025-08-02

    14 张   现代建筑-自然融合的空间美学

       2025-07-25

    1 张   夜幕下的都市璀璨天际线

       2025-07-17

    6 张   UTAMED-生态融合建筑设计全景

       2025-07-16

    1 张   红色螺旋楼梯建筑独特景观

       2025-07-16

    1 张   星空下的天文台夜景

       2025-07-16

    5 张   加拿大岛屿生活天堂度假胜地

       2025-07-14

  • 查看更多家居建筑类型素材图库