




另外,这些木条构成的“围栏”也能有效阻挡孩子们的视野,这样他们就能更集中于室内的学习任务中,而不是望向室外。教学楼内部的空间被分割为多个小“房间”,用于不同的教学任务,这样小尺度的空间可以让学生们的注意力更加集中。这样的“小房间”将会比那些开放的大教室更适合学龄儿童的学习和成长。





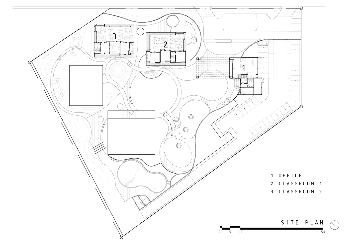
这个设计项目包括了两栋教学楼和一栋家长学习楼,我们用有顶棚的室外廊道将这些建筑连接在了一起。所有的建筑外立面使用灰色的涂层,并嵌以棕色的木条,整体环境给人以流畅和温暖的感觉。为了让孩子们能轻松理解整个校园的布局,我们采用了最简洁的设计方案。木条的使用可以过滤掉一部分的光线,但同时也让孩子们暴露在一定的自然光之中,这有利于他们视力的正常发育。

大自然是学龄儿童最好的学习和成长的环境。因此,Ratchut 学校的规划就是希望为学生们创造自然的学习环境。我们将室内与室外的空间、建筑与景观完全整合在一起,不但创造出丰富多样的学习与活动空间,还为孩子们提供了让他们去探索冒险的环境。我们在整个校园的规划中融合了四种“自然”元素,包括洞穴、沙石、土丘和树木,这些元素将有助于学龄儿童在自然中学习和成长。








特别提醒:本站所有作品收集于网络,版权均属各自所有者,本站素材仅提供学习参考,请勿商用,如有侵权请联系我们邮箱(200894114#qq.com,把#换成@)删除,要购买全部版权商用请自行联系作者,谢谢!
相关标签搜索:


