

一方面,工业预制件为串联结构技术提供了一系列优势,例如节约成本、缩短工期,从而控制住房建造成本的增加。与人们固有认识所不同,串联结构本身即暗示了住宅单元的标准化。与此同时,Wohnregal 项目还提供了各色各样的居住及办公空间,用以满足日益多样化的都市生活方式。

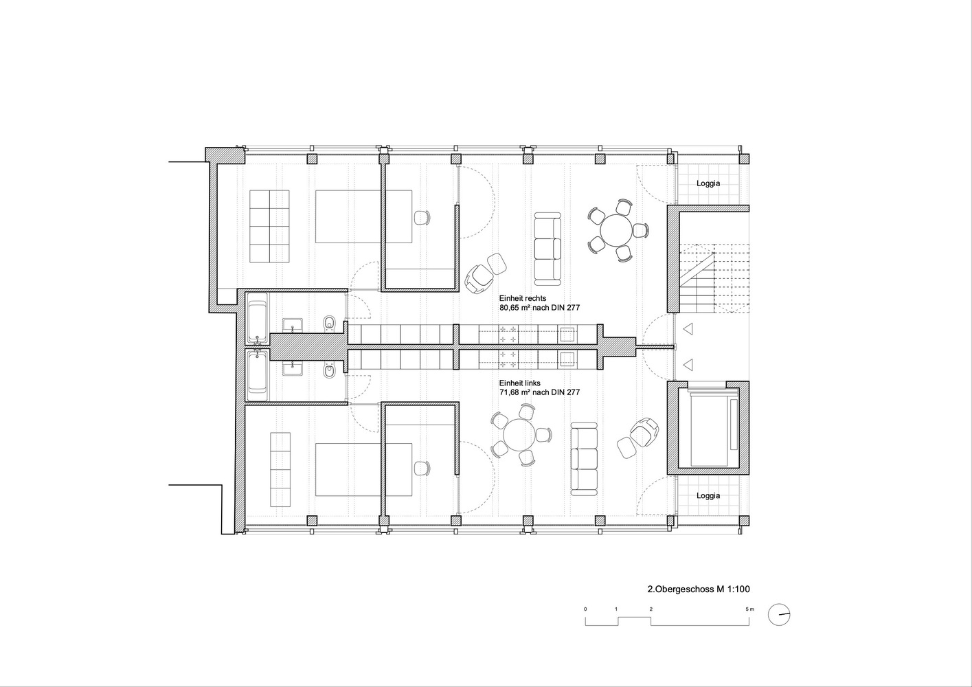
而预制混凝土构件及其大跨度TT式天花板则通过横跨建筑前后立面,并撤去室内结构墙体,从而满足了这种空间的多样性需求。

建筑立面的幕墙由大规格推拉门构成,方便室内在夏季面向外部环境开放,使得整个居住空间转变为凉廊。同时,立面的这道幕墙上在面向室内和室外的两个维度上,也最大程度采用了网格化预制混凝土构件。





















TAG标签关键词:FAR frohn&rojas 公寓住宅 住宅公寓 公寓 建筑

































































