

美术馆分为两层,一层的主要功能是门厅及多功能厅,二层是展厅和工作坊。美术馆外立面的钢板利用氟碳透明漆保留了天然的不匀称纹理,这种真实而自然的不匀称呼应了美术馆的艺术气质。徐步走进馆内,随着美术馆外立面界面由竖向隔栅转换成喇叭形的玻璃视窗,狭长的入口前厅从秩序空间过渡成观景空间。前厅过后便是两层通高的中庭空间,狭长空间与高挑空间的转换,让人感觉豁然开朗。

中庭空间的楼梯与坡道联系着一层与二层。行走在楼梯与坡道像是一段“艺术熏陶之旅”,让观众在观展之前,先感受与体验建筑空间的美学与趣味。楼梯与坡道这两种形式的更替使观众可以在行走中体验不同的节奏和速度。黑色的楼梯、白色的墙以及木纹肌理的混凝土墙面共同创造出素雅纯净的意境。与常规梁式楼梯不同,楼梯的踏步与侧板形成完整的钢板楼梯结构体系,楼梯的形式也因此呈现出结构美学。

中庭的二楼一侧利用大面积的落地玻璃将更多的自然光线引入通高空间,观展者在步行而上时空间会逐渐明亮。而当步行到二层时,回头一望,观展者便欣赏到窗外绿意悠悠的小叶榄仁景色。曲折的路径、丰富的材质、变化的光线,让中庭空间的行走变成一种有趣的游走体验,而这个过程中,人们不时地相望、凝视、跟随、打趣等也建立起人与人之间的联系。

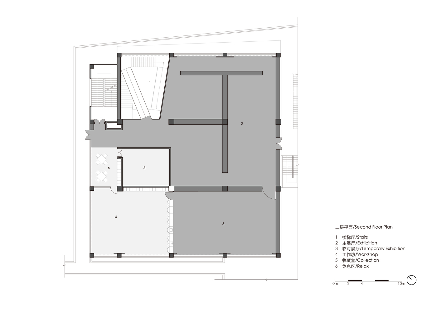
二层展厅根据柱子的位置和展览功能需求划分为几个大小尺寸不同的展厅。这些展厅并不全是封闭不透光的室内空间,一些靠外墙的展厅大胆地保留了玻璃幕墙,一方面我们可以通过遮光帘灵活地实现布展的各种暗房间的要求,另一方面除了让室外自然景色融进展览空间,艺术家也可利用自然光线进行空间布展,为观展者提供不一样的观展体验。











TAG标签关键词:墨照建筑设计事务所 曾冠生 美术馆 美术展 展厅 展馆

















































































