

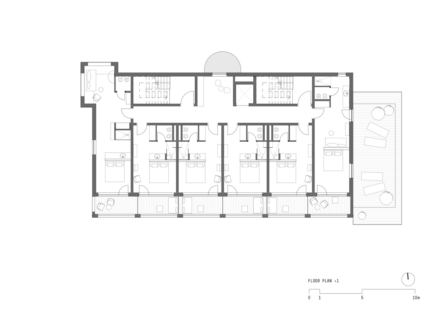
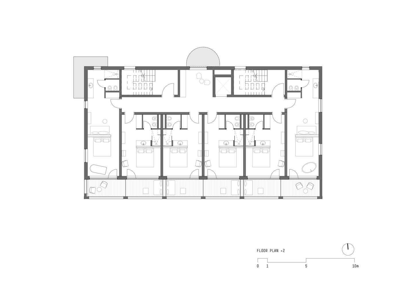
建筑师需要将当地流行元素融入到设计中,比如立面拱门或人字形屋顶,这些都可以回溯到 Oberbozen 村庄的悠久传统中。与此同时 Ritten 铁路沿线的多数房屋上常出现的装饰性菱形图案也包含在提取元素中。项目整体设计方法很明晰,即通过大量细节塑造贯穿整个项目的主旋律。一个比较有意思的地方是旅馆构成方式很流畅地顺应了地形条件。车库位于建筑最底层,其上是25间客房,停车场在此基础上进行扩建,七间花园套房及其附属私人庭院因此受益。庭院内是公共区域:接待室、大厅、餐厅以及附属平台。半圆形平台优雅地向外延伸,人们可以在此俯瞰庭院,眺望远方。设计图纸与建筑立面以一种亲密对话方式展开,从外部可用一种独特方式清晰地窥见内部,但同时也要避免对它过分揭露。

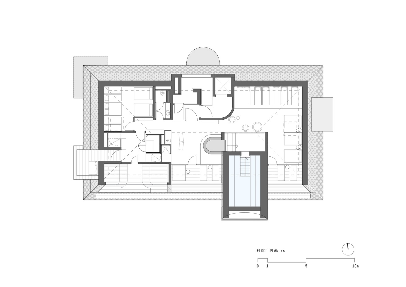
公共区域上方的客房分布在三层楼中,套房位于建筑两侧,可以很容易通过其方形飘窗辨认,飘窗使建筑立面语言得到强调。建筑外立面拱形在尺寸上发生了跳跃,由一层扁平双拱逐渐演变为上层简洁单拱。这种设计使外部空间的避暑特点更加具体可见。内与外在拱门后的空间内融为一体,凉廊在此作为连接元素,通过无框窗从远处看去房间像与栏杆衔在一起。反光黑玻璃折射出远处风景,作为阳台与房间的隔断在视觉上丰富了拱门景观。拥有人字形屋顶的健身区域设置在建筑顶层,它被清晰地划分出来,就其本身而言几乎可看做是独立的建筑。毫无疑问的是,青铜色壳体覆盖的拱元素在此又一次打断原有屋顶结构,并通过不对称布置确立一种肯定且独特生动的建筑语言。

Ritten 地区拥有的经典新艺术运动建筑风格可在建筑内部捕捉到,并以一种抽象方式呈现。同时它作为一种清晰,差异鲜明且连续的要素形成了流动的细部,可在整个建筑中追寻到它们的痕迹。同时拱主题也在内部体现出连续性,如房间内底部浑圆的镜子,环绕休息室壁炉轴心被拉伸的拱,或是水疗平台懒人椅靠背。室内家具多半随意放置,各自独立,优雅的素色衬垫进一步渲染了室内氛围。其中房内特色物件是从跳蚤市场所淘或是原宾馆的遗存。金色灯饰悬垂在天花板下,散布在整座建筑中

公共区域选用无缝树脂地板作为要素使房间呈现连续性流动。木地板在地面堆叠成“岛”,区分出休息室与餐厅的不同空间边界。这个概念也被沿用到顶楼水疗区。不仅在水疗和公共区域,特别是客房和套房的内部空间每个角落都受到设计师的热切关注。套房中飘窗是重中之重,它为休闲区提供了壁炉、独立浴缸或沙发景。空间由层层嵌套的壳体隔开,墙体、地板和天花板使用同样材料装饰。木材让空间显得更为均质、华贵且温暖,极具吸引力。

毫无疑问从远处就能够看到建筑的亮点所在:水疗区及其奢华的悬臂式泳池。在此宽敞的休闲区分别位于飘窗顶部或嵌入屋顶的一些私密露台中,人们可以在此休息呼吸新鲜空气。弧形圆筒作为一大亮点在建筑南面嵌入人字形屋顶,在北面则伸出成为倒置拱作为附属泳池。覆盖泳池的壳体采用与方形凸窗类似的青铜色铝板覆盖。它成为深褐色人字形屋顶上的休止符,谱写了一首迷人的回旋曲。在内部数个楼梯导向圆筒中心。滑门自动开启,一部分随着弧形壳体隐入水中,另一部在无边泳池中向地平线方向延伸而去。

泳池上近六米长的圆杆塑造的弧线、透明度与柔和倒影,创造出类似雕塑的形态漫入建筑中。人们从后方进入时,泳池覆盖着青铜色的圆形外壳,它逐渐消解为半圆形的杆结构,最后一直到天空下方;金属与水在此相互作用转化成为无限的自由。这种柔和的淡出方式消解了圆柱形外壳并让人们在眺望远景时产生漂浮感。这种几乎如雕塑般的杆结构实际上是对反复出现的拱及菱形图案的转译,通过近距离观察可以看见弯曲的圆杆在交叉时形成菱形图案。这或许是一段在进门前就可以预料的建筑漫游之旅的顶峰。










































TAG标签关键词:noa network of architecture 旅馆 酒店 住宅 家 建筑




























































































