

新的建筑体块就像是一个物件被插入历史建筑中,新体块包裹在已有表皮之中并稍稍位移,三十年代建筑的一些特征就显露出来。现代材料的光感、半透明性、模糊感以及光彩都与历史外壳的厚重感产生了有趣的对话。新老对比的同时互补互助。


展览空间被整合进各种空间类型中――书架处、墙壁上、走廊中、角落里乃至中心空间。新鲜的想法无处不在并总能环绕在人们周围。


如今的 TCDC 乔迁新址,位于历史悠久的邮政大楼的侧面和后面。在这个空间设计新楼旨在与老建筑产生对话的同时,遵循 TCDC 的理念,成为整个国家的创意孵化器。






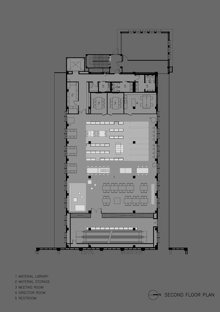
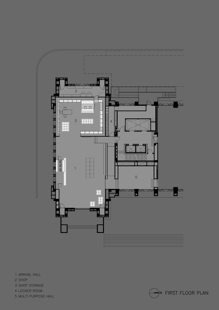
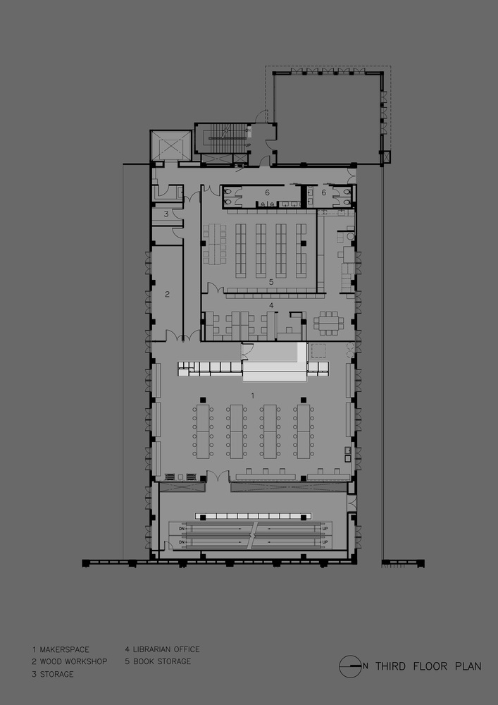
资源中心并不只是传统意义上安静的图书馆。相反,很大一部分空间的设计,如咖啡厅、共享办公区都鼓励人们积极交谈。这些工作空间与其他功能的空间混合在一起,散布在整栋建筑的各个角落。如此一来,工作与交流随时随地都能发生。开放的空间使人们聚集在一起,他们会自发地开始交谈与互动。空间中的主要流线贯穿建筑的整个截面,人们行走在不同区域时便能从他人的活动中获得启发。大多数空间是非常灵活的,可移动的家具和可调节的系统保证了创意活动的多样性和灵活性。





















这种半透明的建筑体系在包裹并贯穿整栋楼的同时,显示了 TCDC 的精神内涵――灵感与知识。整栋建筑的设计包罗万象,书籍、杂志、材料样本、数字媒体、迷你展览。头脑风暴板、公告栏等等一应俱全。灵感即是一切创意空间的主宰。




创意空间看上去并不是“创造性”的,然而它旨在激发人们的创造灵感,是一个人们可以一起互动、讨论并工作的场所。在这里,人们可以相互看到彼此的活动并相互激励;在这里,一切活动都是未知的、充满无限可能的;在这里,资源和知识取之不竭,书、数字媒体和展览都环绕在人们的身边



TAG标签关键词:Department of Architecture 房屋 图书馆 科技馆 展厅 建筑





























































































