
御窑博物馆的地域性实践融入了对场地的阅读,这种复杂的分析涉及到了城市学、考古学、人类学、气候等相关知识领域。景德镇“因窑而生,因瓷而盛”, 人们远道而来,依山而建、择水而居,终生的劳作就是建窑做瓷。瓷窑、作坊、居住三位一体构成了城市的基本单元,城市的雏形和结构也因此诞生。一条条狭窄的里弄连接着众千私家民窑沿东西向布置,径直走向昌江,几条城市的主街平行于昌江沿南北布置,将市场连在一起。这样的城市结构不仅反映了当地人的生活、生存方式,更是城市应对湿热气候的智慧反映。
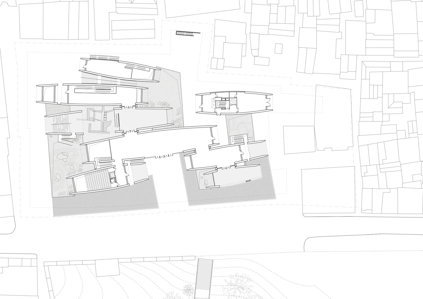
御窑博物馆由八个大小不一、体量各异的线状砖拱形结构组成,沿南北长向布置,它们若即若离,有实有虚,以谦逊的态度和恰当的尺度植入于复杂的地段之中。一方面,拱形结构的尺度不仅接近于周边的传统的柴窑, 也在大尺度厂房、住宅楼和传统民居之间做了良好的过渡。另一方面,长短不一、伸缩自由的拱体结构巧妙地和周边参差不齐的地段边界产生了有机的缝合。特别是应对复杂、多变、不可预测的历史街区内建造,这种化整为零的策略,就越发凸显它的前瞻性。开工不久,发现了新的遗址,通过拱体结构彼此之间的调整,将新发现的遗址巧妙地编织到博物馆的内部空间之中。

御窑博物馆建筑的形式源于当地传统柴窑的启发,与罗马时期的拱券截然不同,它不是简单的几何形,而是复杂的双曲面,具有强烈的东风拱券的特征。建造过程中不用脚手架,而是利用砖的收分错位,借助重力完成的。

砖窑不仅是景德镇城市的起源,更是人们赖以生存的生活与交往空间。它“保存着与这座城市的生命不可切割的记忆温度――旧时孩童在冬天上学途中,会从路过的瓷窑上捡一块滚热的压窑砖塞进书包抱在怀中,凭借这块砖带给他的温度,捱过半日寒冬”。

冬季,学校也常常会移至温暖的瓷窑旁;夏季,歇窑期间,砖窑所散发的湿冷空气更是孩童玩耍,年轻人交往、老人纳凉的好去处。这些断壁残垣的老窑遗址,这些薪火相传的不灭记忆,是御窑博物馆自然而然的源泉。瓷窑独特的东方拱券原型,窑砖的时间与温度的记忆,塑造出窑、瓷、人的血缘同构关系。

不仅窑炉作为建筑类型融入了城市的历史,修建窑炉的材料“砖”也是可知可感的 。在达到一定生命周期蓄热性能衰减后窑砖被从窑炉上替换下来,又可以成为修建居住建筑的材料。窑炉早已成为景德镇文化记忆和城市生命的重要组成部分,也顺理成章成为了御窑博物馆的空间类型。
博物馆建筑分为地上、地下两层,门厅位于地上层。这样的布置不仅仅会让人们在走向它时感到体量的亲和感、感受到它的尺度和城市中现存的建筑保持接近,更重要的是人们进入它的空间经验与过去工匠在此劳作烧瓷的经验十分类似。
当人们漫步御窑遗址公园,穿越在绿荫下,行走在沙沙作响的碎石地面上,跨越平静的水面之上、 缓步进入门厅。向左行,人们将穿越一系列尺度大小略有变化、时而室内时而室外的拱体结构空间,穿越明代的遗迹和丰富的下沉院落,开启了窑、瓷、人同源的博物馆经验之旅。
从门厅向右,书店、咖啡、茶室、最终来到半户外的供体下,阳光下水体的波纹映射在粗燥的窑拱的表面,低矮、水平的横缝诱使人们好奇的席地而坐,御窑遗址长长的水平地表扑面而来,意想不到的惊喜不期而遇。这与人们进入门厅之前走向报告厅空拱时,透过垂直切割的竖缝所看到御窑遗址中的玲珑阁的经历如此不同,惊喜又如此相似。
固定展览借助于一个密闭的水平上下环路完成,临时展厅可以任意并入环路,融入整体展览,也可独立存在,因为它有自己独立的出入口。博物馆另外一个特点是将古瓷修复过程融入展览,成为展览重要的组成部分。办公入口位于整体建筑的东南侧相对独立的拱的北端,安静、隐蔽。货车可以从该拱的南端倒入拱内,封闭、安全装卸货
博物馆建筑与自然之间形成很多灰空间,它们虚实相涵、内外相生,彼此缠绕,人们行走在博物馆内部的整体空间经验,反映出中国传统建筑特有的“藏、息、修、游”东方美学特质。
建筑拱体的结构近似三明治,内外两层砖中间为混凝土,混凝土拱为主体结构,以抵御地震时的侧推力,外部采用新老窑砖混合砌筑,映射当地传统建造方式。
整组建筑拱体沿南北长向布置,包含很多开放的拱体结构和下沉院落。地面上拱体的灰空间,不仅可以遮阳避雨,更可以捕捉夏季南北的主导风向,让凉风鱼贯而入,自然通风。多个大小不一、下沉的垂直院落,大多都种竹,不仅为地下空间营造了充满诗意、自然光线的环境,且具有很强江西意象。也塑造了烟囱效应,就像当地民居中的垂直院落一样,实现良好自然通风

特别提醒:本站所有作品收集于网络,版权均属各自所有者,本站素材仅提供学习参考,请勿商用,如有侵权请联系我们邮箱(200894114#qq.com,把#换成@)删除,要购买全部版权商用请自行联系作者,谢谢!
相关标签搜索:


