建筑的主要入口位于地面层,旁边设有公寓附属的多用途营业场所。营业区内部配备有一间大厅,大厅中心不设支撑柱,充分发挥了开敞空间的灵活性与动态性。

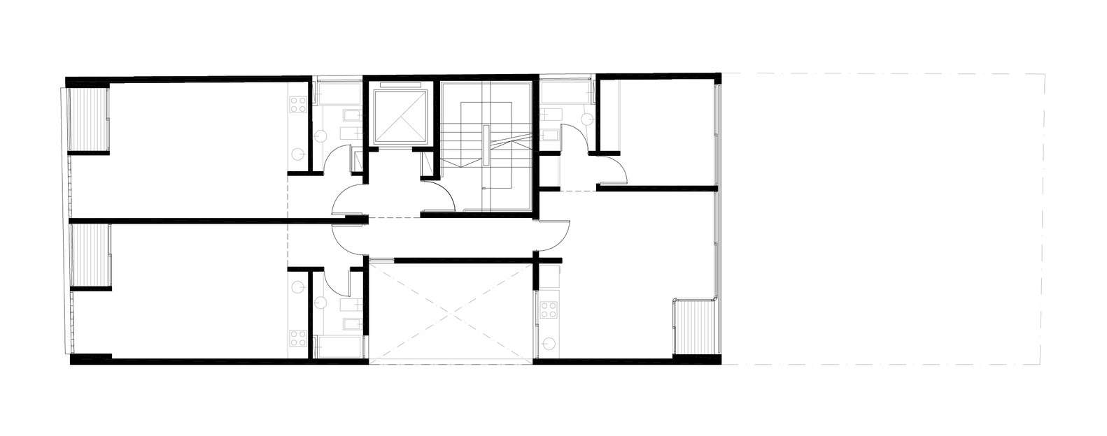
建筑各层的外立面一侧排布有两户起居室与卧室混用的单身公寓,向内一侧则设置了一户一居室公寓。这些住户由楼梯间、电梯以及一处采光中庭联系起来。除此之外,建筑顶层还在平面尽端配置了一处天台。

建筑立面由正空间和负空间两部分组成,这一套构成手法对应了各层的平面布局。从建筑前方观察可以发现,立面上正负空间的交错组织遵循了体积与纵深的网格原则。
夜幕降临后,根据各家各户的开灯情况,立面网格将展现出各种各样的表情。某种程度上来说,这一立面手法体现了一种随机性、不可预测性乃至动态性,有效地激活了整栋建筑,成为了建筑不可或缺的组成要素之一。


特别提醒:本站所有作品收集于网络,版权均属各自所有者,本站素材仅提供学习参考,请勿商用,如有侵权请联系我们邮箱(200894114#qq.com,把#换成@)删除,要购买全部版权商用请自行联系作者,谢谢!
相关标签搜索:


