

“江南院子”所在地接壤杭州主城区,邻近西湖景区、武林门等繁华区域,位于“都市半小时生活圈”,但经由全长约1100米的水岸线围合环绕,如同岛屿藏于周边绿带之中,业主枕水而居,大隐隐于市。

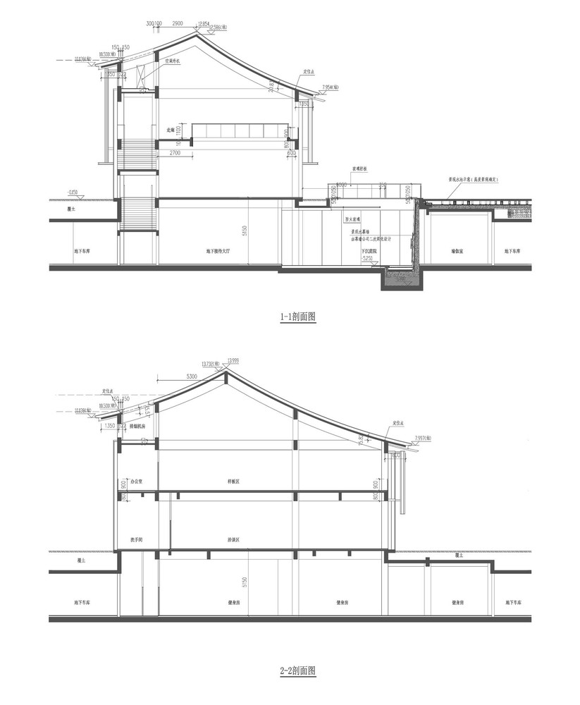
鸟瞰院子被水环绕隐于闹市,建筑呈山势,与入口、围廊和院内水景共成山水合院。入口风格简洁现代,点线面配以仿木格栅,渲染出东方文化的诗情和韵律。

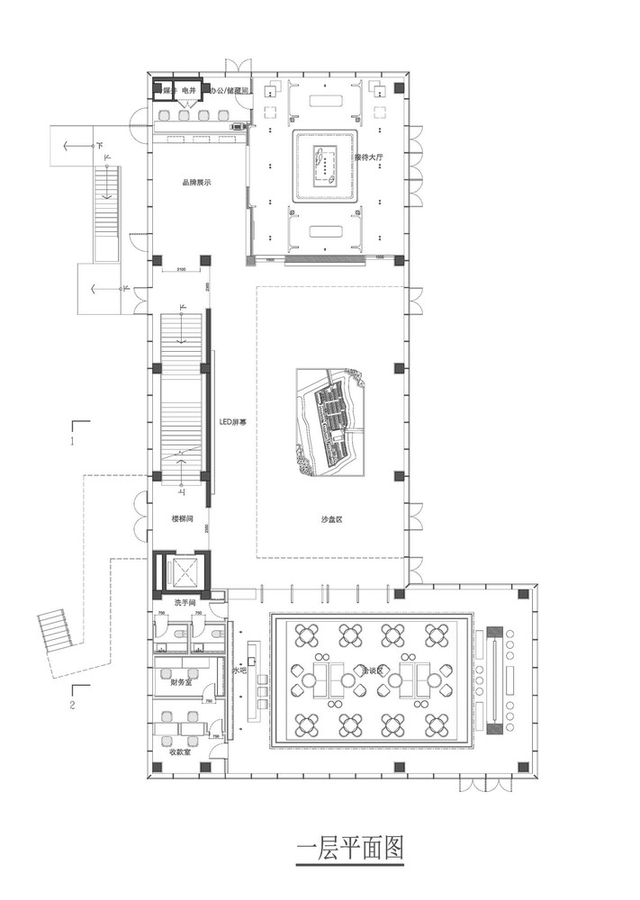
入口处用灰空间和格栅增强建筑内外之间的联系,格栅半透出院内水景与对面围廊,景在院先;院内空间随屋顶山势高低错落,抑扬顿挫,围廊一侧是轻透格栅,可倚廊观山品水,格栅与卷帘垂水而立倒映水中,富有江南风情。

玻璃幕墙与金属格栅带来简洁现代感,大面积镜面水景映衬着屋顶山势和垂坠帘幕,半隐半透娴静雅致,通透转折间也蕴含着东方的含蓄。步道以极简的几何水景串联出“曲水流觞”的东方诗意,以现代感的空间展现出传统东方庭院文化。

建筑取传统东方庭院之意境,借鉴西方现代主义手法,在空间上,我们将江南一带曲折回环的庭院空间处理的更加通达简洁,大气洒落;在细节之处,我们精雕细琢,对材料、构造进行细化研究。所谓“江南院子”不仅是“烟柳繁华地,温柔富贵乡”,更是有历史、有风光、有东方、有品味的静界之地。





















特别提醒:本站所有作品收集于网络,版权均属各自所有者,本站素材仅提供学习参考,请勿商用,如有侵权请联系我们邮箱(200894114#qq.com,把#换成@)删除,要购买全部版权商用请自行联系作者,谢谢!
相关标签搜索:


