

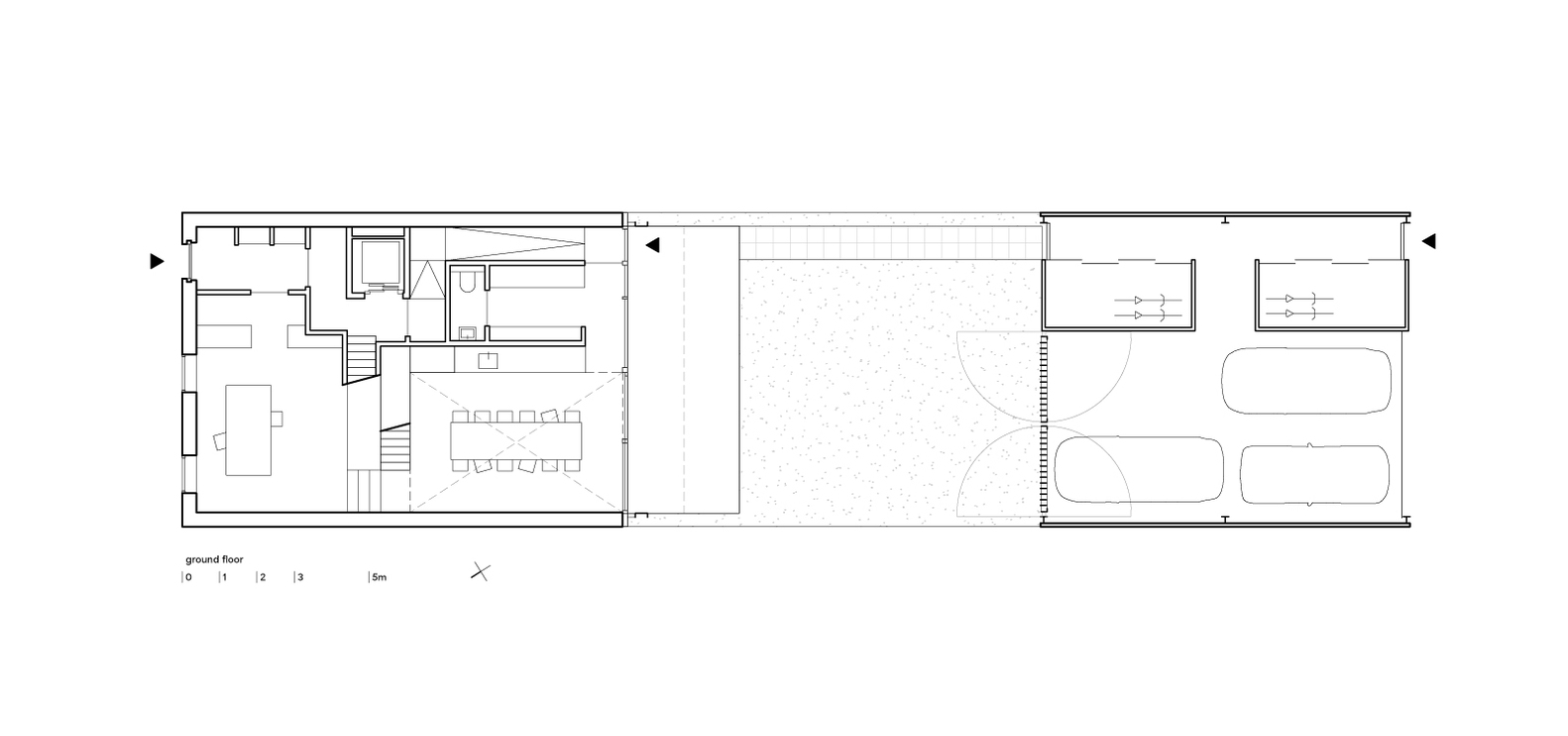
随着时间的推移。对于这个迷你公寓建筑,我们设计了一个能够适应随时间变化的空间需求的概念。这对老夫妇住在顶层公寓里,从那里可以俯瞰整个城市的美景。这套公寓有电梯和水平的楼层,非常适合老年人居住。底层的公寓有一间办公室,与花园直接相连,非常适合有小孩的工薪家庭。

它占据了建筑的中心,而不是减少垂直交通的必要性。作为底层公寓中无处不在的雕塑元素,该系统逐渐转化为建筑高层的一系列空隙。这个中央入口系统允许一个“多余的楼层”与任何一个公寓组合在一起。该空间最初用作最顶层公寓的客人空间,通过一些基本的技术修改,可以很容易地添加到低层公寓。

开放空间与封闭空间。如同一个滤光片,建筑平面的渐变强调在建筑的对比立面上。北立面大部分是封闭的,以减少热损失,减少繁忙街道上的声音暴露。向南,建筑完全开放,最大限度地利用被动太阳能,并与室外连接。在两个相反的立面之间,建筑的平面经历了一个渐进的转变,从北部的分隔,到南部的开放式和自由形式的元素。在这里,建筑以非正式的过滤式阳台层结束

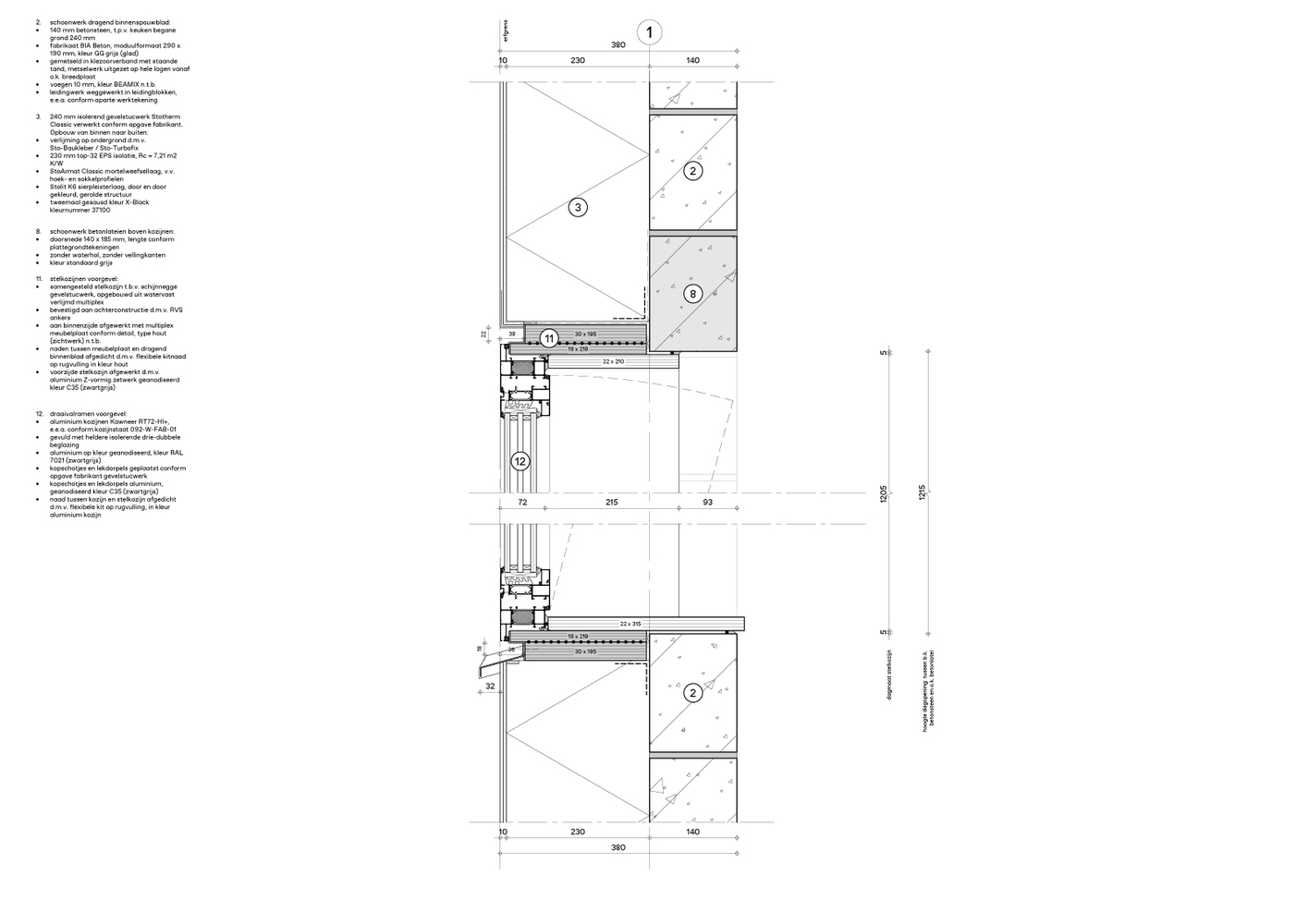
建筑材料和构成。在一个近乎基本的细节中,建筑传达了它的构成,材料传达了它们的目的。因此,南立面只覆盖了最小的三层玻璃窗框,以强调建筑与室外的关系。其余的结构墙由大型混凝土砌体组成,包裹着高级保温材料。在这些墙壁之间,裸露的混凝土板跨度8米,提供了一个清晰的平面,温暖的木材元素定义了空间。建筑向北封闭而裸露,向南轻盈而脆弱,是一个对比的组合。





















特别提醒:本站所有作品收集于网络,版权均属各自所有者,本站素材仅提供学习参考,请勿商用,如有侵权请联系我们邮箱(200894114#qq.com,把#换成@)删除,要购买全部版权商用请自行联系作者,谢谢!
相关标签搜索:


