

Designworkshop在两阶段的建筑竞赛中获得成功,分别进行了概念设计并产生了一个包括图书馆、教学和社交空间的校园生活功能和地理上的中心――学生资源中心。

我们探讨的关键问题是这种新兴的类型学在处于一个综合性全球化的南非的现实状况。

分享知识的古老图像是在公共环境中,人们围绕在长者,思想领袖和专家身边。取决于何时何地,这可能实在河边、树下、公共广场或者街边。这是社会设置里的学习和知识产生。在社会之中,它很不易察觉,学习来源于生活中经历的观察和实践,通常在传统文化实践的平台上

当信息被文字记录,象征学习的图像常常是张被书环绕的安静的学习桌。这是累积的知识的传播,最常通过直接经验记录,作为从特定文化背景中提取线性的单向传播,是中性的科学。

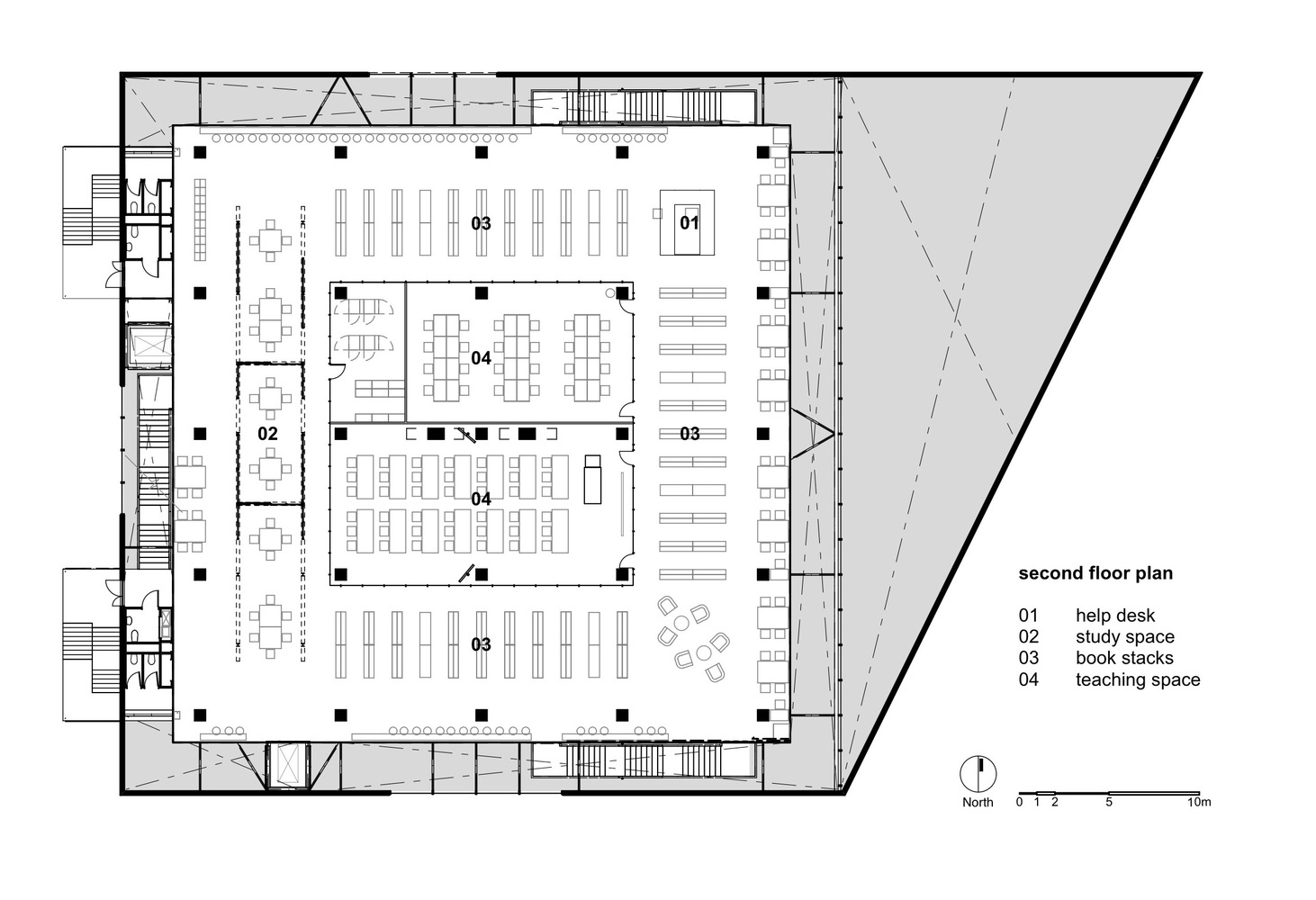
索尔・普拉特杰大学学生资源中心在同一时间融合了两种。它是一个人们可以在日常生活中获得广泛的偶然或者刻意安排的交流的社交场所,既可以是物理空间上的,也可以在网络上,有书本或者没有书本,集体的或者单独的,由导师或者自己指导































特别提醒:本站所有作品收集于网络,版权均属各自所有者,本站素材仅提供学习参考,请勿商用,如有侵权请联系我们邮箱(200894114#qq.com,把#换成@)删除,要购买全部版权商用请自行联系作者,谢谢!
相关标签搜索:


