

建筑围绕一个向一侧开放的方院,这为学生和社区成员提供了内部的视野和足够的隐私。这种配置创造了两个相邻但独立的庭院,满足了分离主要日间功能的客户需求

两个庭院中第一个更公共的庭院可以直接从街道进入,紧邻清真寺。这个庭院主要用作朝拜者进出清真寺的指向和集会空间。第二个庭院更大,更私密,可以穿过但与第一个庭院在物理上是分开的。

第二阶段清真寺行政大楼和社区教室位于第二庭院周围。第二个庭院也可以向清真寺开放,供大型宗教节日和活动使用。设计预留了灵活度,庭院之间的物理连接可以被拓宽,使整个校园可以用于宗教教学和其他课外社区活动。

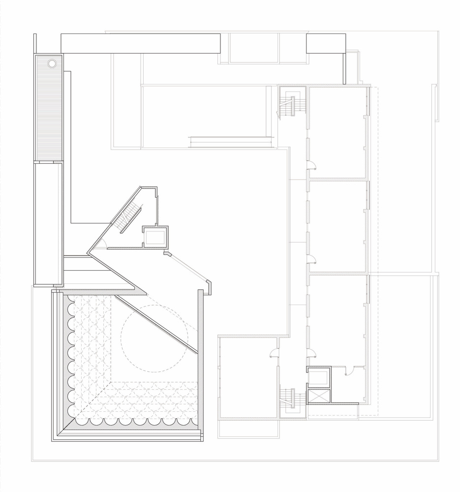
清真寺的建筑外观故意与未来社区建筑的其余部分分开并保持距离。进入清真寺要经过第一个庭院,男女朝拜者分开在祈祷前进行沐浴。男性朝拜者在接近清真寺时向右进入一层呈斜三角形的男性沐浴区,然后后退穿过通往主祈祷厅的入口天篷

女性朝拜者穿过塔,进入入口庭院的左侧女性沐浴区,然后继续穿过塔,进入清真寺1层和2层的祈祷廊。这些祈祷廊在木制圆顶和开孔下延伸到下面的主要祈祷空间,将女性礼拜者置于清真寺的中心。

雕塑般的不规则混凝土斜顶天花板通向清真寺主祈祷空间,参考了传统伊斯兰建筑中“m壁龛(muqarnas)”的装饰性拱顶,102个不规则混凝土壁龛的每个中心都有一个直径30毫米的洞。阳光通过壁龛被引入主祈祷空间,从黎明祈祷到中午和下午祈祷,再到日落和晚上祈祷,太阳移动时照亮了这个空间。











TAG标签关键词:Candalepas Associates 清真寺 寺庙 教堂 庙宇 建筑













































































