

当人们走近这处僻静之地,缥缈的云层叠加于玻璃幕墙之上,环抱整个空间,二维的景像在此折射成为三维空间。

一片玫瑰金色的天顶从云层升腾,为来往行人带来超现实的视觉体验,吸引你进入,享受如梦般的蜕变。

进入它,金色的河流从云层中升起,徐徐淌于天顶,又在某处顺流至地面。立面的云雾巧妙的成为了二维空间转向三维空间的介质,仿佛时空在这里倒转,一个超现实的空间就此诞生

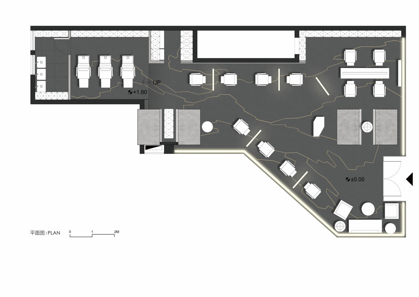
原始地基在空间上有着与众不同的特质:入口处宽,向内逐渐阶梯式收缩,四根支撑330米超高层建筑的方形混凝土结构呈V字形两两分布

由于地处大楼核心管井处,数根核心管道由此通过并纵向贯穿大楼,将屋顶切分成了复杂的层级。而这特殊的构造,使用面积仅百平米的不规则空间让刘昊威见状直呼过瘾,决定要把空间玩转一把。

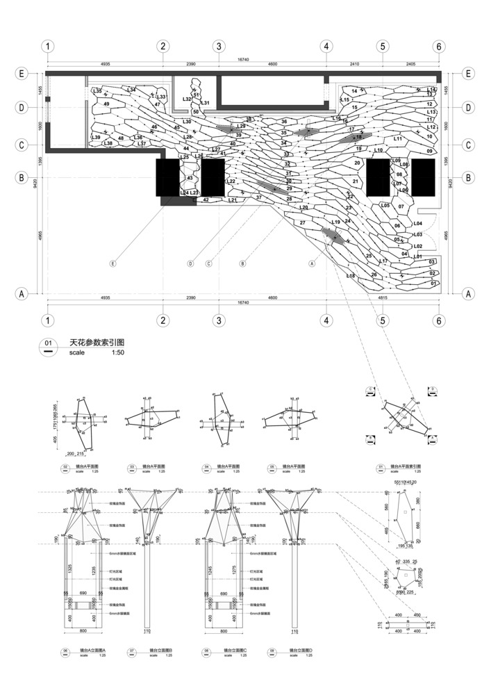
让特殊的顶部构造成为焦点,像河流般流淌于天际。独特的造型通过参数化设计实现,模拟出水流的抽象形态。

时而平缓流向远方,时而如瀑布般流淌地面,带有功能的镜面由此而生,浑然天成。为呈现出水波潋滟的视觉效果,顶部天花造型选用反射率极高的镜面不锈钢完成,CAA团队通过对材质与反射的反复的研究和验证, 使玫瑰金色的镜面所折射的光线变得更加温和。环绕立面玻璃的地灯将玻璃用光线由下至上洗刷,整个空间如同置身云中。

而这精彩的背后,是巨大的施工挑战。超过300个形态各异的的六边形金属几何折面,从放线到制作全部手工完成。

而镜面不锈钢对划痕的零容忍,焊接复杂的金属几何的方法无法被实施,安装手法不得不另寻他径。作品安装过程中无数次的探讨与细节推敲不断考验着设计师与工人的专业素养和追求卓越品质的精神,作品的呈现是各种匠人精神结晶。

身处喧嚣的商业核心区,这片流淌于云上的金色河流是CAA创造的一处超现实秘境,为这片繁华增添了一笔独特的未来都市印记。









































































