

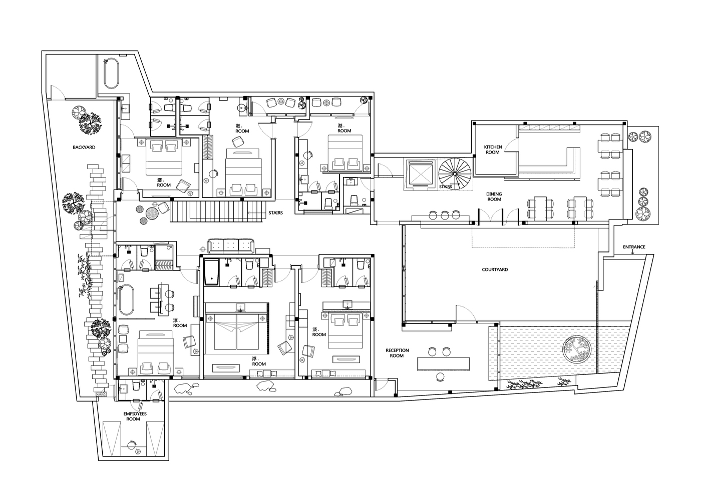
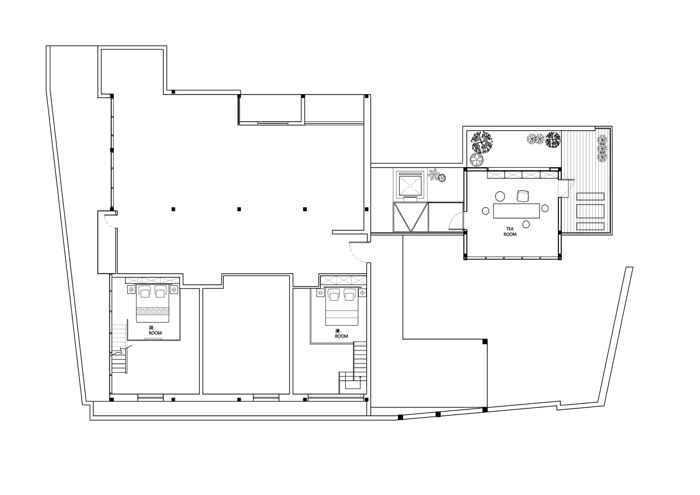
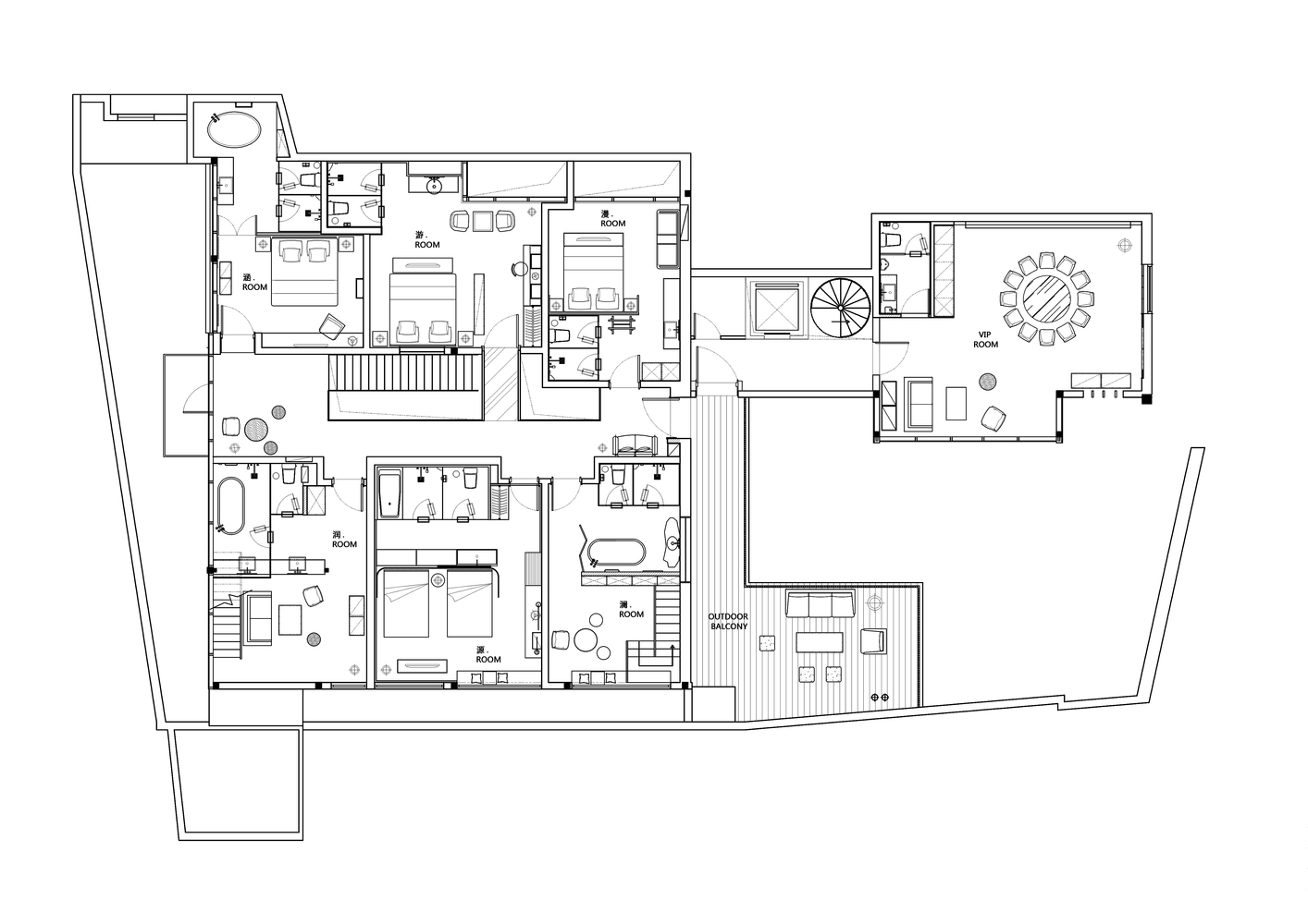
改造后的渝舍印象由两栋楼组成,设计过程从整合的角度梳理了文化、自然、建筑之间的关系。以入口处以折叠巡回的青砖引入,为空间的公共与私密提供了过渡。参考北方的四合院和上海小院的特点,设计师大刀阔斧,在寸土寸金的上海市中心辟出一处院落,解决了建筑间的孤立状态,使客房、前厅大堂和咖啡厅视觉上遥相呼应,院落的引入集中体现了传统建筑的造园思想

民宿客房在朝南的主楼,楼内空间功能分区布局巧妙,恰到好处。中庭,将楼道空间与露台以及后院全部打通,达到视线与空间的最大程度的开放。玻璃天窗保证了客房公共区域的采光需求,一改老旧房屋的昏暗,铜质和实木相结合的楼梯承上启下。阳光照进天窗,辗转映射在二楼白墙,透过挑空的中庭玻璃栈道照射到一楼水磨石地面,整个空间一气呵成,显得更加充沛明亮

设计师认为民宿出彩于细节,也就是人们所说的见微知著,渝舍印象的美学就体现于用心极其考究。设计师有一套完整独立的美学理念,即便是小摆设都是设计师亲自挑选的,一花一世界,一叶一菩提,只有富有诗意的设计师才会为十二间房都配上独一无二的名字:淳、源、澜、润、游、涵、淡、潺、浮、?、漫、滋,每个房间都有自己的风格和故事,欲将意义消解在文字里,一种温柔而坚韧的东方美感魅力,人们一旦被触动,就很难自拔。

渝舍印象共打造了两个loft大跃层房间,以作为城市民宿的刚需与亮点,分别取名“润”“澜”。房间面积55平方米,利用高处做二层,一层则有足够的空间做配套设施:开放式洗浴空间、休闲会客区等。楼上是休息区域,将工作休闲与休息区分开,保证了客人的私密性

房间“淳”主基调是新中式风格,因其质朴敦厚而得名“淳”,房间里大大的玻璃落地窗,让你安静地看这个绿色的小世界,不去打扰那院中的生灵,毗邻闹市却又大隐于市。

在新中式风格设计过程中,采用简化的手法来体现中国传统文化内涵,古代“镜”原以铜或铁铸,现代设计师喜欢采用未经过度加工的铜料与圆形镜面组合,要勾勒生活品质,一个足以。简约梳妆台遇见陶瓷大浴缸,木艺遇见铁艺,厚重的铜镜遇到琉璃玻璃窗,现代化设施遇到别出心裁的设计,这就是渝舍印象。






















TAG标签关键词:上海本哲建筑设计 酒店 酒馆 酒吧 建筑











































































