

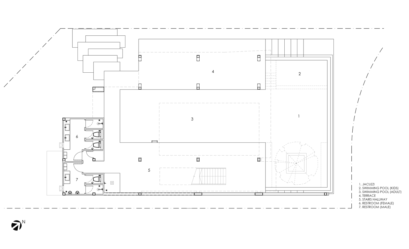
底层包括一个平台,围绕着大树的按摩浴缸以及供大人小孩亲密交流的游泳池。在这里家人可以聚集在一起进行交流。上方的庭院露出了天空,倒映在游泳池中。柱子隐藏在镜子后面,创造出流动的无止境的空间并且反射周围的绿色植被。所以人们能在这个空间感受到与自然毫无隔阂


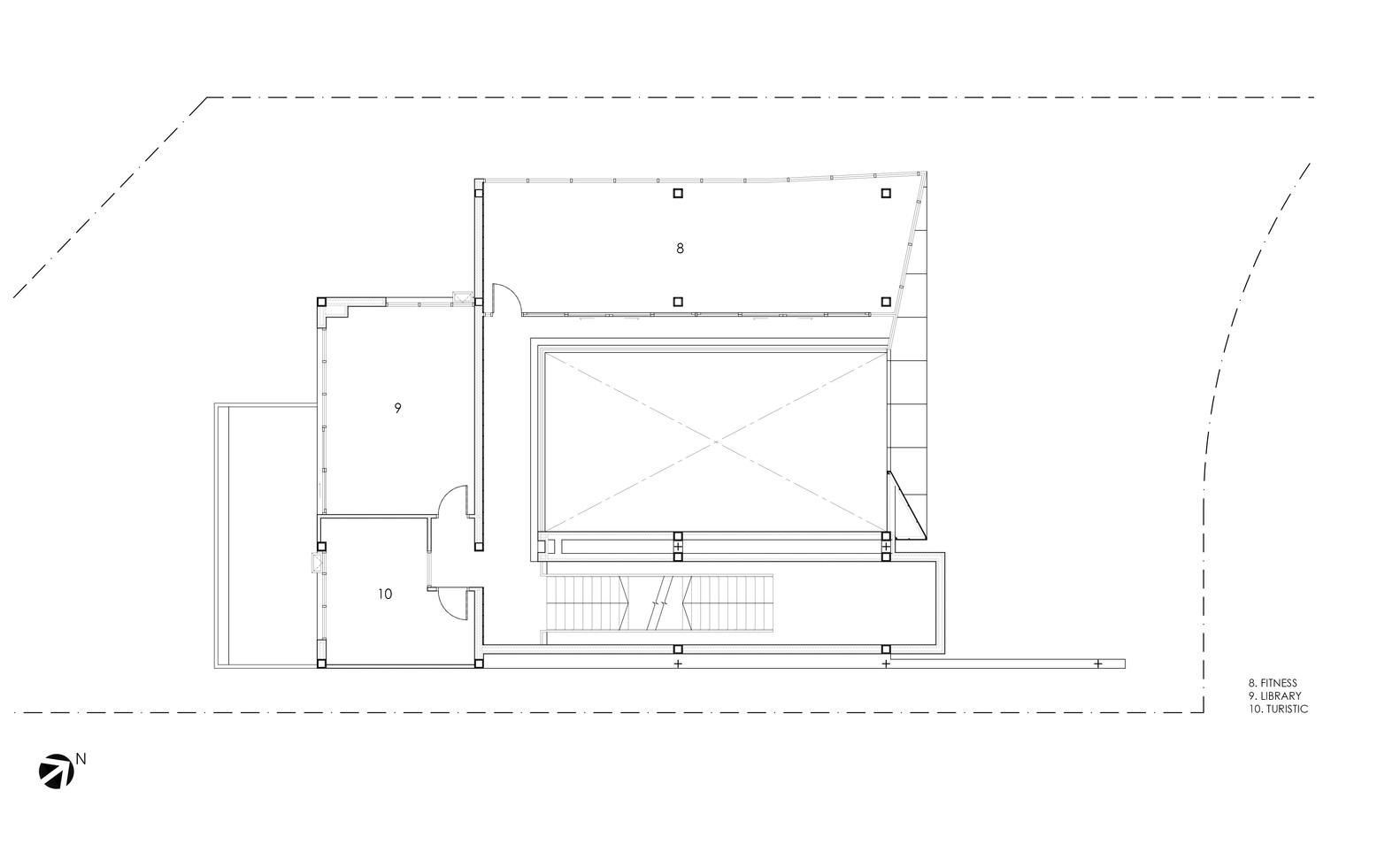
楼梯上方的玻璃屋顶引入自然的光线,以减少人工照明达到建筑节能的目的。健身房用透明的玻璃作为外墙向室外开敞,因此可以在上方的空间看到绿色的大自然和河流。我们在曼谷的市区创造了一个功能结构相结合的自然环境。






















10 张 奥地利萨尔茨堡市旧萨尔斯堡坦克车站阁楼公寓的雕塑混凝土楼梯-占地350平方米,带一个玻璃淋浴间,悬臂悬挂在生活空间上,该建筑物已经转变为一个多功能场所,设有市场大厅,餐厅,水疗设施和两个合间。 : 955703