

该住宅位于街角的位置使得房屋内外可以有着独特的关系;绝大部分的起居空间可以设计在暴露在自然光下的开口处。面向街道的立面设计避免了极端封闭或者极端开放,而采用了多孔的处理方式。为了达到这个目的,我们安装了窗帘作为临时隔断,让业主来决定多大程度上希望室内空间可以从外部看到

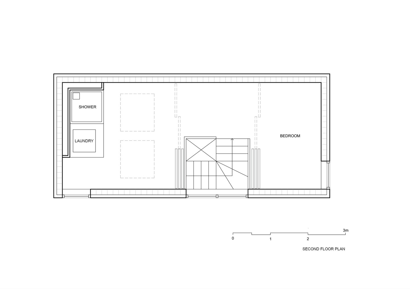
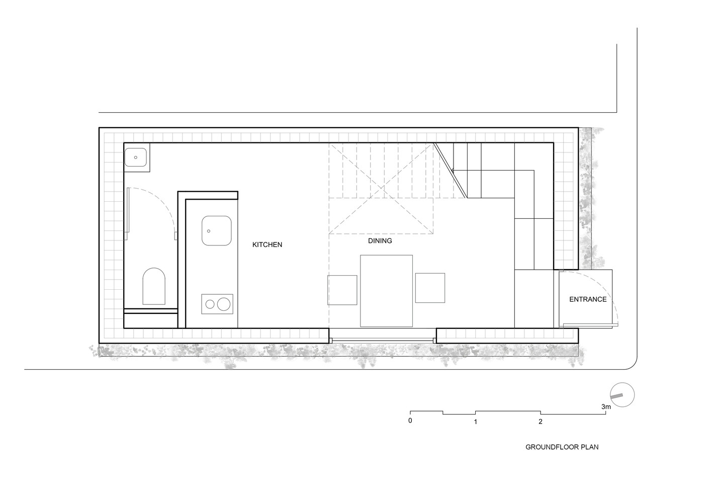
通过一楼的厨房和三楼的淋浴间等固定元素,我们看到了空间功能的垂直层次:随着层数增高,功能逐渐由公共转向私密。我们想创造一个跳出传统生活方式的空间,为业主定制,并可以随着他们的需求而发展。这个概念有助于将这块生活区融入城市环境,而不是将它们作为单独的实体分离开来

结构墙和地板由预制雪松木板构成。该木板是由15x15cm的方木制成,之间用金属螺栓水平连接,不需要用到胶水。这一特质使得建材可以全部回收,同时也使得整座住宅可以被拆卸并在新的场地被重新组装起来

由于这种材料符合日本城市消防法规的高标准,我们甚至可以完全不需要涂层和遮盖,使结构裸露在外。此外,当保温层和雪松木板被用作立面时,房屋热性能会提高。在日本的城市,这是第一座用这种建造方式建成的三层住宅。与日本传统的木屋建造方法相比,这种方法使用的木材是后者的两倍。它成为日本储存二氧化碳、振兴林业的有效途径。










特别提醒:本站所有作品收集于网络,版权均属各自所有者,本站素材仅提供学习参考,请勿商用,如有侵权请联系我们邮箱(200894114#qq.com,把#换成@)删除,要购买全部版权商用请自行联系作者,谢谢!
相关标签搜索:


