
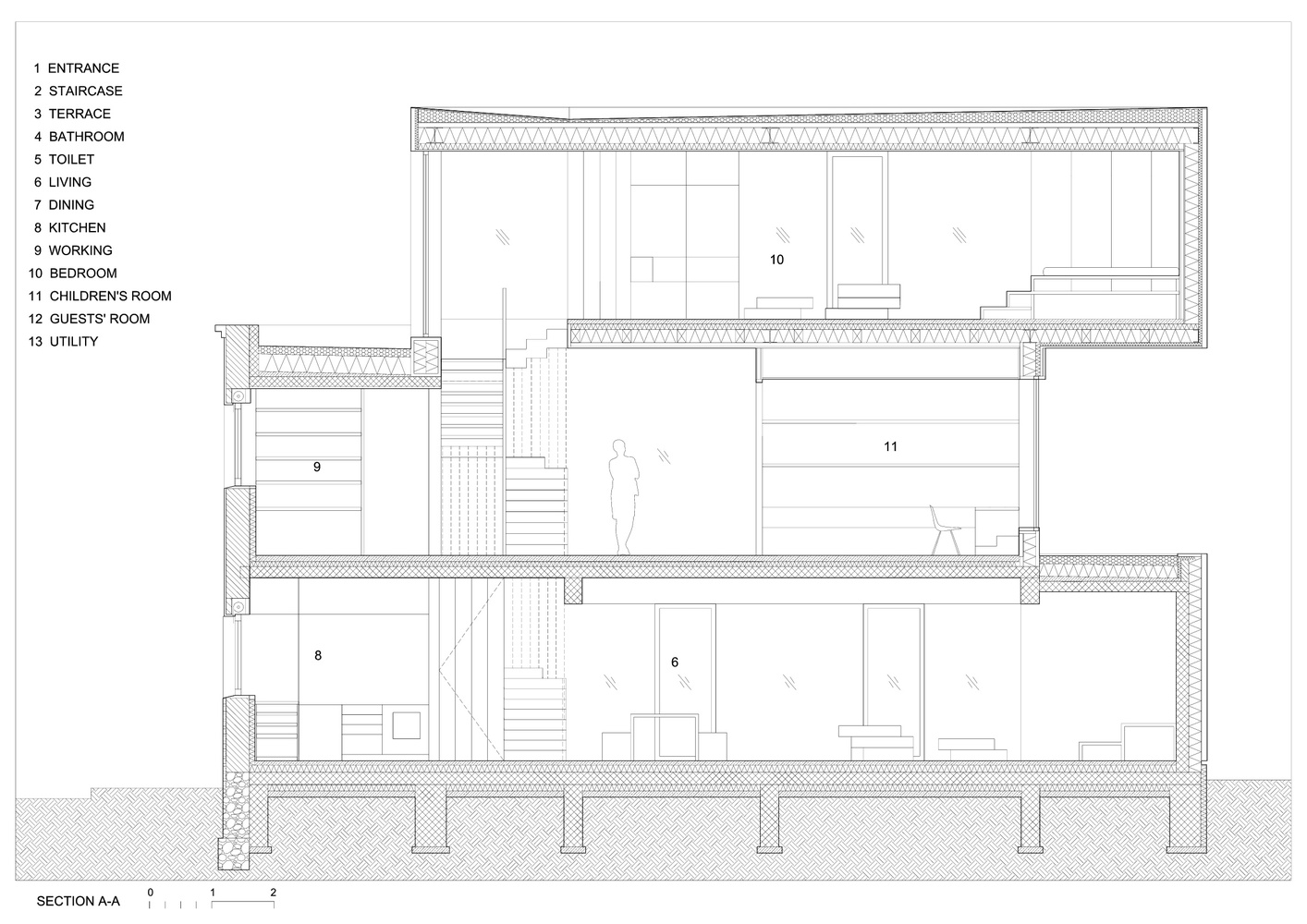
老房子被简单地装修,并保留了原有纹理和材料。老房子的内部和新的拓展部分以不同的方式连接起来 - 新的拓展部分穿过旧墙创造了设施之间的关联:一楼作客厅,二楼作儿童房和客卧,顶楼作主卧和客厅

新的设计在新建筑和老建筑每一楼层之间创造了不同的互动。它由三个长方体组成,每一个的比例都如同老房子的楼层平面图一样,像个鞋盒。三个盒子分别以90度错开,叠在一起,制造出悬挑和阳台。这三个体块用排列整齐的垂直栅格状深色木板为外墙板,融合于这条街上的建筑环境中。结构由混凝土地基,金属框架和木制次结构组成。新建部分内部形态大多跟随外墙,制成整体性的衣柜和内墙。
房子的核心 ? 新旧建筑之间的交集是一个依附于一堵垂直混凝土墙的楼梯。灵感源自Adolf Loos 的室内设计,创造了抬高的平台、壁龛、衣柜、小的座位区域,并且一部分延伸至旧房子,在每一层都创造出私密的居住空间



















特别提醒:本站所有作品收集于网络,版权均属各自所有者,本站素材仅提供学习参考,请勿商用,如有侵权请联系我们邮箱(200894114#qq.com,把#换成@)删除,要购买全部版权商用请自行联系作者,谢谢!
相关标签搜索:


