通常剧院在剧目上演的傍晚之前都不会对公众开放,但是我们的空间设计将剧院变成了一个全天候开放的城市公共空间。剧院入口向周边的城市道路开放,让过路的行人和附近的居民都能在此驻足停留,感受艺术与生活的亲密融合。
剧院外立面采用金黄色的穿孔金属板材,利用连续的转折面形成具有视觉冲击力的造型,一方面与当地“黄金海岸,青蟹之乡”的文化相契合,另一方面也为城市营造了一处开放的艺术展示空间
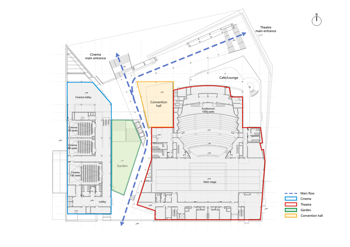
除了剧院的造型这一设计重点之外,人流导向和交通梳理也是本设计的考虑方面。不同于以往的公共空间设计,本项目强调了展演空间的流动与自由性,为观众的体验和参与创造了条件。根据三门剧院多功能的定位,我们将不同的区域独立规划,且布局各自分明,互相连通但各不干扰
东西两侧分别是拥有两个放映厅的迷你电影院和可容纳1000人的剧院,中间通过庭院相连接。展厅在南侧与庭院相接,二三层则为展览空间。但同时,所有的功能又被包裹在同一屋檐下,组成一个完整的建筑体量
三门剧院的设计秉承了三门县塑造美好公共生活的一贯宗旨,生动地描绘了城市艺术生活的美丽之处。









特别提醒:本站所有作品收集于网络,版权均属各自所有者,本站素材仅提供学习参考,请勿商用,如有侵权请联系我们邮箱(200894114#qq.com,把#换成@)删除,要购买全部版权商用请自行联系作者,谢谢!
相关标签搜索:


