

初期概念设计由KPF设计执行总监及创始合伙人,William Pedersen负责。“在伦敦,城市建筑群实际上组成了某种都市戏剧。其中每个参与者都是与众不同的,但集合在一起后,他们又产生了一种建筑对话。The Scalpel向后倾斜,确保不影响圣保罗大教堂景观廊道,并与Leadenhall大厦共同营造出一种相对应但又互为镜像的姿态,从而形成戏剧性的城市对话。”

“外形设计的最初设想就是创作出一个折叠的折纸工艺般的建筑。随着建筑不断上升,形制回折,最终停留在空中的某个点。一如既往地,我们希望我们设计的高层建筑能与周边环境相融合。之前我们从不曾有机会能在如此丰富和戏剧性的环境里添上一栋我们的建筑。”

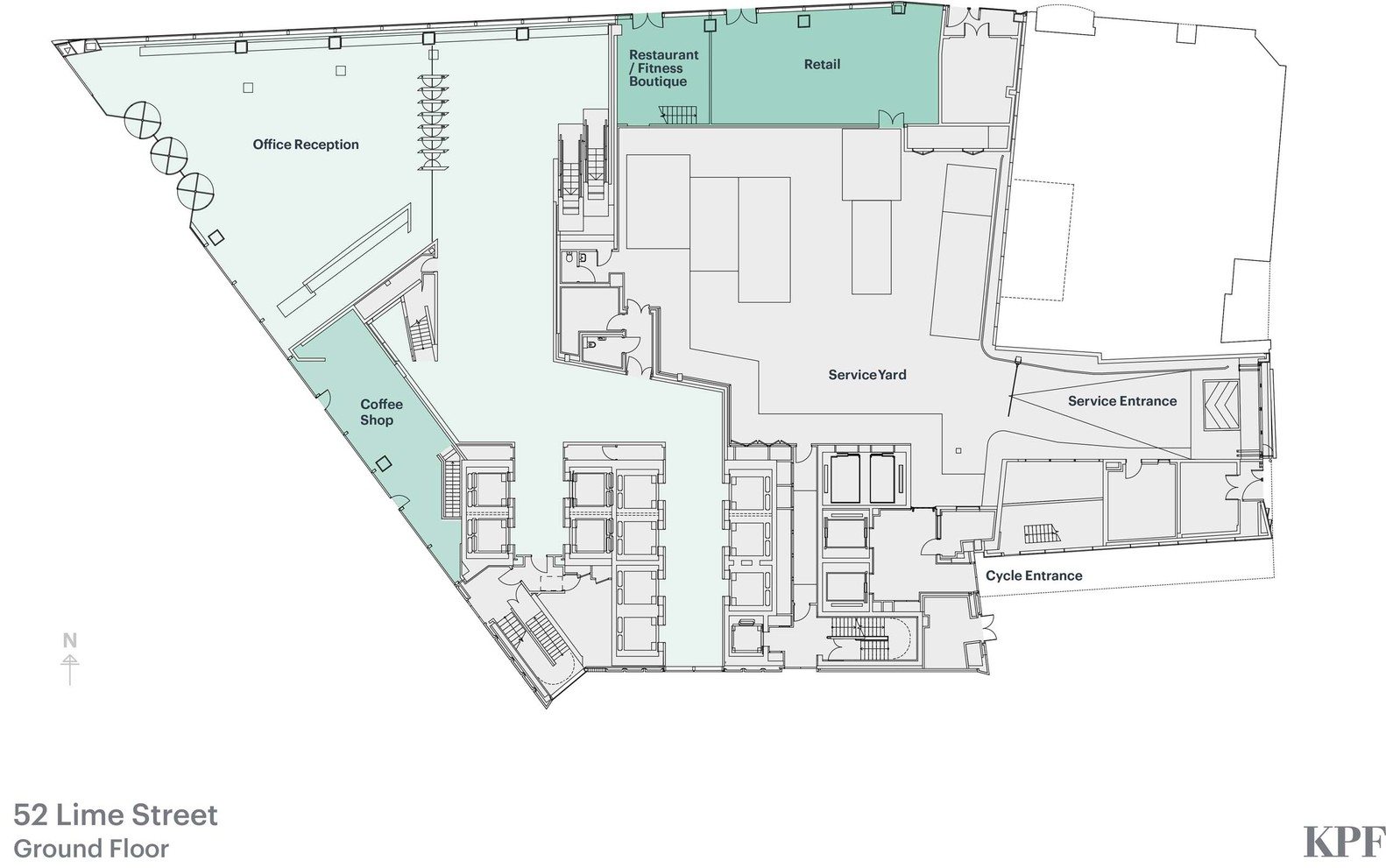
在项目刚开始时,城市建筑群仍处于起步阶段。KPF与城市规划部门合作,证明了一栋高层建筑是完全可以维持街道界面,留存受保护的圣保罗大教堂景观,并提升公共空间。

为了保护圣保罗大教堂的景观,建筑需从关键点位后退或向大教堂的穹顶后方倾斜。倾斜的外立面形成沉静的轮廓,同时丰富了平面类型,提升了效率。在地面层,整洁的雕塑造型强化了较正式的城市规划干预措施,同时塑造了邻近周边建筑的外部空间,打造Leadenhall街建筑沿街界面。建筑体量也与周边历史保护建筑形成对比,包括一级保护建筑 St Andrew‘s Undershaft教堂。


偏心核心筒可提供开阔的无柱空间,提升平面使用效率,满足不同租户的需求。落地窗可优化办公室采光,同时提供可俯瞰整个伦敦的景观视野。核心筒位于建筑南侧,与外立面相对,为室内空间提供遮阳,同时便于设计团队为太阳得热较高的外立面提供隔热措施,降低空调需求,同时显著减少能耗。建筑获得2014BREEAM “杰出”等级认证。







The Scalpel外立面使用四块颇具寓意的石材浮雕板―Woodford石板,分别代表土壤、空气、火和水。这些石材最初用于1957年开放的Lloyd’s 大厦,由著名雕塑家James Woodford雕刻,之后又移至Lime Street 52-54号墙面,现在位于The Scalpel的外立面。

特别提醒:本站所有作品收集于网络,版权均属各自所有者,本站素材仅提供学习参考,请勿商用,如有侵权请联系我们邮箱(200894114#qq.com,把#换成@)删除,要购买全部版权商用请自行联系作者,谢谢!
相关标签搜索:


