这些建筑模块的功能围绕着现今韩国当代最具影响力的画家朴栖甫而展开。他以细腻而有重复感的绘画风格而闻名,他画作中所展现出出来的一致性与严格的坦率令人沉思,他与BCHO建筑事务所进行的有关该建筑的对话成为探索建筑新美学体制的起点。他的画将其中的内容层次化,呈现出了一种微妙的深度。复杂的颜料与画布结合在一起,既阐明了整体概念,又将欣赏者带入一个新的视觉理解层面。我们希望,GIZI_艺术基地的各种错综复杂之处也能反映出这种温和并微妙的复杂性。

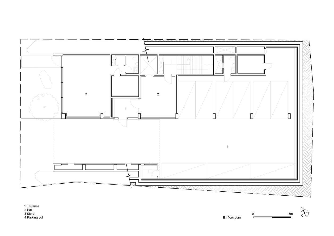
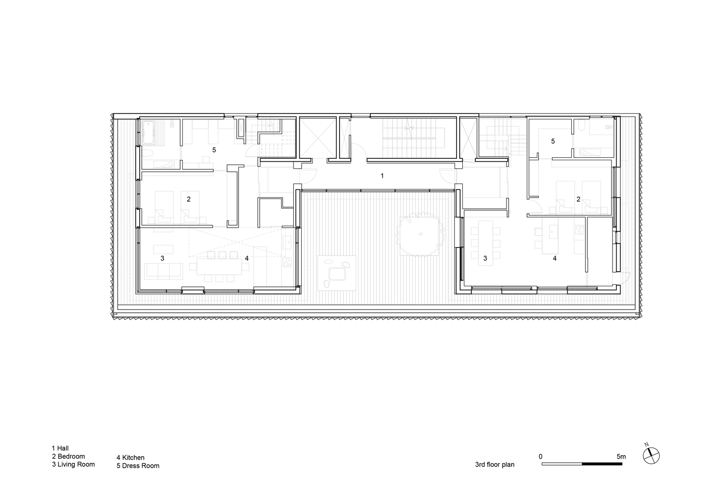
在设计一层的画廊的空间时,至关重要的设计方面是实现空间与结构的灵活性。因此,为了最大程度的减小了每个垂直方向的支撑物的尺寸,设计中采用了通过使用CFT(混凝土填充管)和PT(后拉伸)结构系统。同时,大跨度的悬臂有利于实现一个灵活的向外部花园延伸的开放空间 。花园本身设计十分简单并具有抽象感,仅由苔藓,岩石与砾石组成。这为在相邻的画廊中观赏艺术品的人们提供了一个可以沉思的环境。同时,在这上面,通过沿着中央庭院来划分单位来保护三个家庭的隐私。

相比起将不同的外观应用到每个不同的功能分区上,我们设计了一个单一的系统。这个系统可以连贯地满足各种不同的建筑需求,同时又能体现出深度和简约感。我们希望它能像艺术家绘画中那样的,展现着不同的复杂而又微妙的层次。

折叠的铝板沿着建筑的外围排列,不同直径的穿孔表明了视觉透明度的层次。而这个面板上被切割地最大的地方则被设置在了人(或站或坐)的视线之间,这实现了大约70%的视觉透明度,这使得建筑与周围环境建立了视觉上的联系,同时沿着上边缘和下边缘形成了大约30%的透明度。

面板被弯曲成钝角,并且由于折痕提供了固有的结构刚度,因此无需任何额外的支撑系统。在立面上,折叠后的面板实现了一个动态的界面,对持续变化的光影有着不同的反应。幕墙外观的变化更是为下面厚重的实体建筑增加了一层深度。















特别提醒:本站所有作品收集于网络,版权均属各自所有者,本站素材仅提供学习参考,请勿商用,如有侵权请联系我们邮箱(200894114#qq.com,把#换成@)删除,要购买全部版权商用请自行联系作者,谢谢!
相关标签搜索:


