因为大门面朝街道打开,狭长的车道框住了建筑的轮廓,当你越往里面走,离建筑越近,街道的吵闹声被树叶和沙砾车道的声音替代。三角墙的正立面露出一个角落的切口;一个在建筑边界的规定中达到最大体积使用的做法。该建筑的色彩和质感是很丰富的,包括材料与光影的呼应也是很饱和的;粗糙沙哑手工的赤陶土瓷砖的不规则感呼应和模仿了周围树叶的形态,强调了设计中与自然元素的联系的设置。

在房屋内部,在两边面对院子的立面都由大玻璃门形式组成的透明墙模糊了室内外的空间阻隔,并且提供了有活力的视角和一整天都无限的光照。

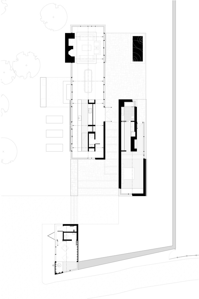
室内的环境由有限的材料组合确定了风格;建筑的结构和细木手工艺体现在建筑的所有的空间体验中。楼梯上的空隙,是由上方的自然光照亮,连接了格局开放的客厅和卧室,并且吸收光线后又投射回屋内空间



二层的空间拥有一个朝南看向公园的视野,并且得意于西晒的阳光,尽可能在阳光移动的轨迹中吸收更多的光线。
















从平面图上看,单层元素占据了场地绘图的边缘。这样导致了该房屋有两个截然不同的室外区域,朝东的入口小院,朝西的餐厅露台又和伸出来的单层厨房的一边相连。这些小院做为连接房屋和周围环境的室外空间的同时,又保证了不被公园影响的隐私。


特别提醒:本站所有作品收集于网络,版权均属各自所有者,本站素材仅提供学习参考,请勿商用,如有侵权请联系我们邮箱(200894114#qq.com,把#换成@)删除,要购买全部版权商用请自行联系作者,谢谢!
相关标签搜索:


