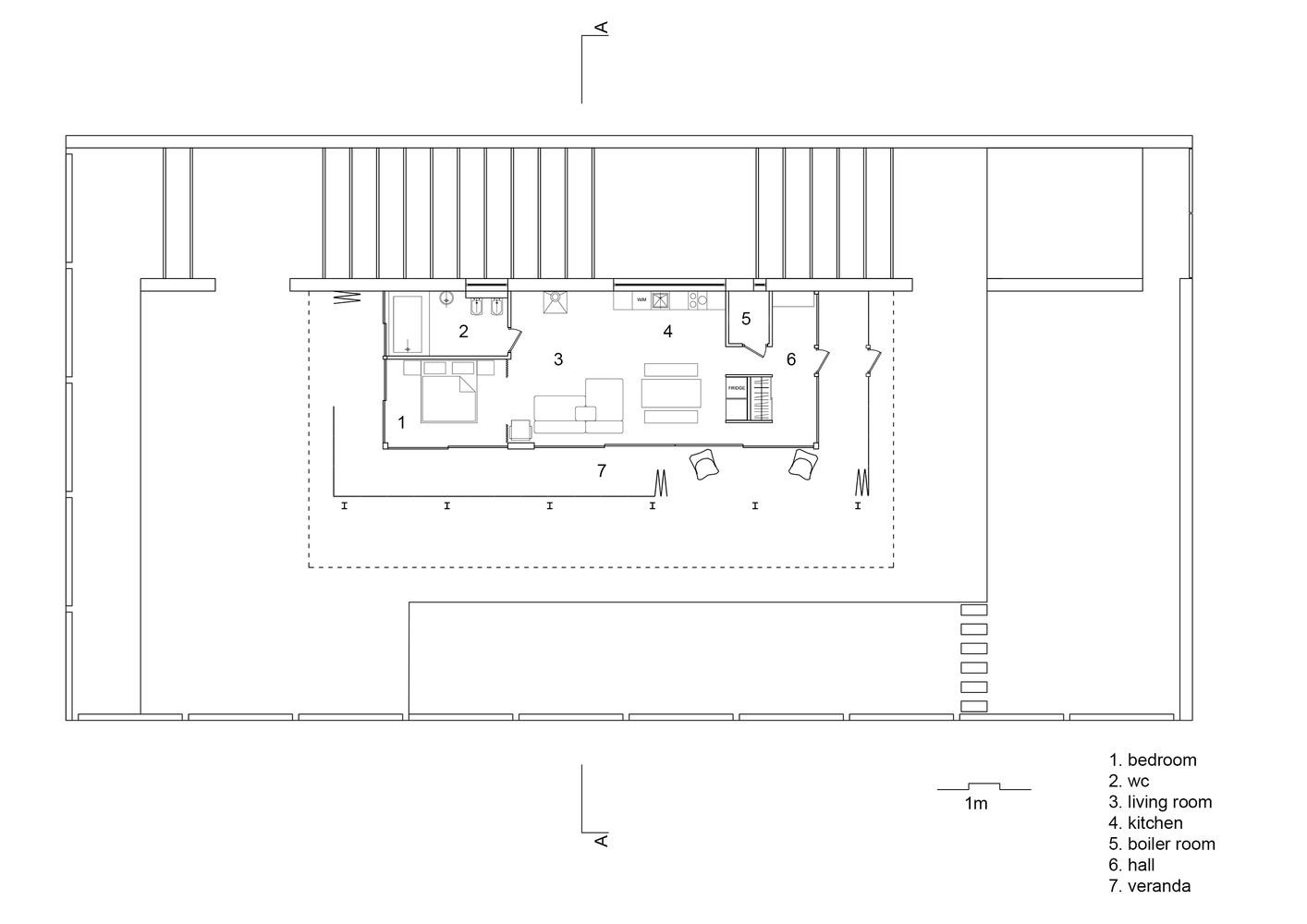
混凝土墙勾勒出场地的尺寸,并在房屋和后方的崖壁之间形成分隔。在这里,木梁挑出形成一个顶篷,创造了一个为居住者遮风避雨的后院。后墙内集成了烧烤设施,可存放燃料和木材。房子的配色以灰色和蓝色为主,唤起住宅的濒海属性。室内设计融合了工业风的坚固性、质朴的风情、自然性和功能主义。这所房子为生活所需提供了完备的空间。公共空间包括厨房、带壁炉的客厅、卧室、浴室和锅炉房。浴室与住宅的其他部分相比色调较温暖,木地板、白色墙壁和内嵌的射灯使浴室氛围明亮又舒适。小巧的瓷制座便器和净身盆,与立柱式水槽刚好搭配,合身的浴缸让沐浴者能够窥视咆哮的海浪。


特别提醒:本站所有作品收集于网络,版权均属各自所有者,本站素材仅提供学习参考,请勿商用,如有侵权请联系我们邮箱(200894114#qq.com,把#换成@)删除,要购买全部版权商用请自行联系作者,谢谢!
相关标签搜索:


