当前位置:网站首页 - 图库素材 - 家居建筑 - 建筑
  • 将蓝色钢制楼梯插入的伦敦房屋图片
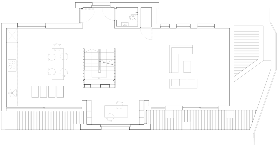
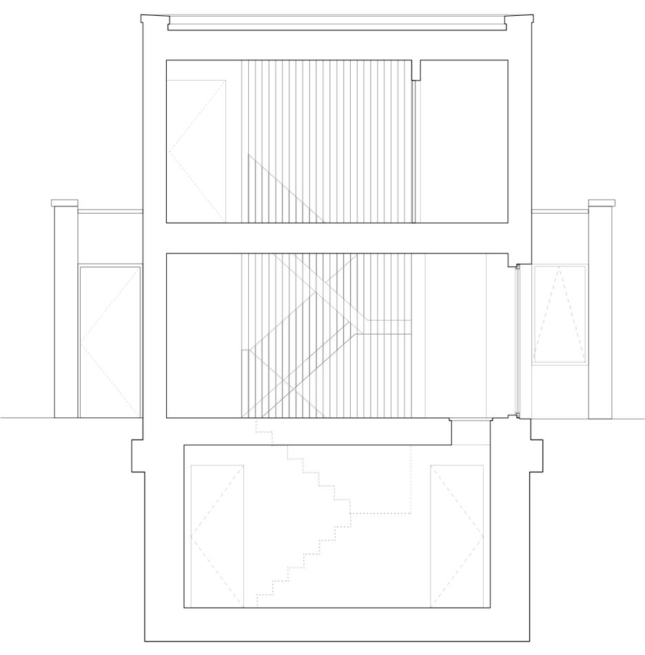
  • 伦敦工作室RA Projects对时装设计师Roksanda Ilincic拥有的房屋进行了重新配置和翻新,并在中心添加了一个蓝色钢制楼梯,旨在“看起来像画廊中的雕塑”,这对夫妇从开发商那里以原价购买了伦敦市中心三层楼的房子,但他们想对地面进行升级并重新配置布局,尤其是195平方米的地下层,该层以前有卧室和套间浴室一侧,和一个封闭在砌体中的中央楼梯。
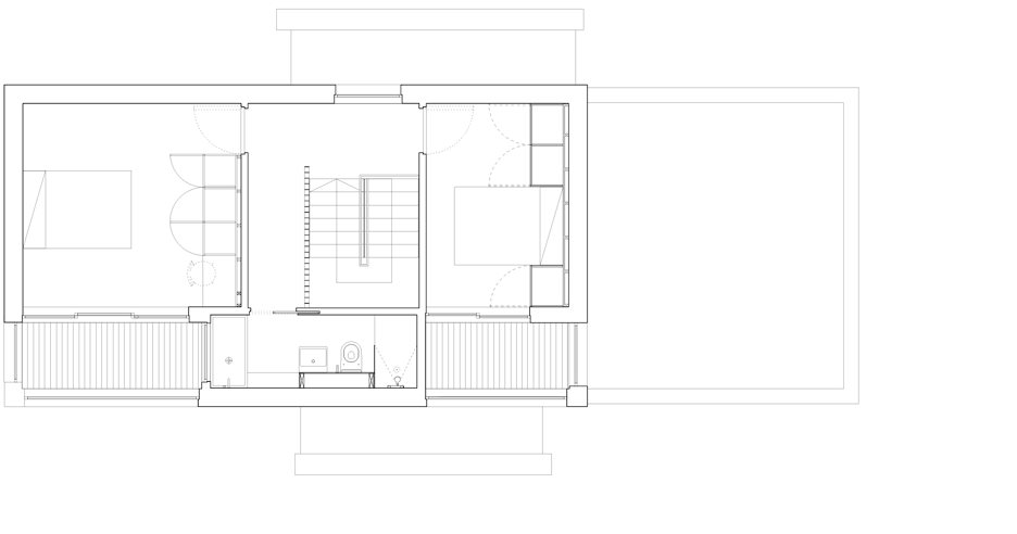
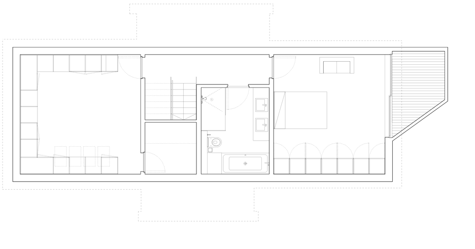
  • 楼梯位于一侧的厨房和用餐区之间,另一侧的生活空间之间,提供了分隔,但具有一定的渗透性

  • 楼梯位于一侧的厨房和用餐区之间,另一侧的生活空间之间,提供了分隔,但具有一定的渗透性
  • 蓝色是从丹麦品牌Kvadrat的织物色调中提取出来的,也反映了Ilincic设计的美感,该设计以大胆使用色彩而闻名

  • 蓝色是从丹麦品牌Kvadrat的织物色调中提取出来的,也反映了Ilincic设计的美感,该设计以大胆使用色彩而闻名
  • 在地下一层,房屋有一个主卧室和一间浴室,以及一个用于整理和存放衣服的单独房间。采光井将日光射入卧室,并兼作露台

  • 在地下一层,房屋有一个主卧室和一间浴室,以及一个用于整理和存放衣服的单独房间。采光井将日光射入卧室,并兼作露台
  • 将蓝色钢制楼梯插入的伦敦房屋---酷图编号4
  • 将蓝色钢制楼梯插入的伦敦房屋---酷图编号5
  • 将蓝色钢制楼梯插入的伦敦房屋---酷图编号6
  • 将蓝色钢制楼梯插入的伦敦房屋---酷图编号7
  • 将蓝色钢制楼梯插入的伦敦房屋---酷图编号8
  • 将蓝色钢制楼梯插入的伦敦房屋---酷图编号9
  • 将蓝色钢制楼梯插入的伦敦房屋---酷图编号10
  • 将蓝色钢制楼梯插入的伦敦房屋---酷图编号11
  • 将蓝色钢制楼梯插入的伦敦房屋---酷图编号12
  • 将蓝色钢制楼梯插入的伦敦房屋---酷图编号13
  • 将蓝色钢制楼梯插入的伦敦房屋---酷图编号14
  • 将蓝色钢制楼梯插入的伦敦房屋---酷图编号15
  • 将蓝色钢制楼梯插入的伦敦房屋---酷图编号16
  • 将蓝色钢制楼梯插入的伦敦房屋---酷图编号17
  • 图片信息简介:将蓝色钢制楼梯插入的伦敦房屋·图片编号为979449,RA Projects是此图片的作者,上传时间为2019-12-07 20:08:32,格式为JPG,颜色模式为RGB,分辨率为72 Dpi。
    特别提醒:本站所有作品收集于网络,版权均属各自所有者,本站素材仅提供学习参考,请勿商用,如有侵权请联系我们邮箱(200894114#qq.com,把#换成@)删除,要购买全部版权商用请自行联系作者,谢谢!
    相关标签搜索:
  •  下一篇   剥好的橘子
  • 相关系列图片/素材作品
  • 以下仅展现近期部分相关系列的图片素材,要看全部相关作品,请逐个查看右上角的相关标签搜索
  • 14 张   Scoopify Gelato-空间建筑设计

       2025-07-16

    14 张   Coffee Lab-咖啡实验室室内设计

       2025-06-20

    38 张   被烧焦的橙色环绕墙壁建筑

       2025-06-04

    20 张   Architecture-建筑家居设计

       2024-10-21

    9 张   japandi客厅室内设计

       2024-10-15

    10 张   Guest Bedroom-客房卧室设计图

       2024-10-13

    21 张   现代国外21款豪华卧室设计理念

       2024-09-07

    28 张   时尚经典现代风格的巴黎公寓

       2024-06-20

    26 张   将大理石融入现代家居设计

       2024-06-17

    1 张   紫色带家具窗帘的客厅

       2022-07-22

    16 张   奥美机构内部

       2022-04-05

    8 张   兰德林公寓 2.0

       2022-03-18

    12 张   乌克兰380平方米Sweetlo室内装修

       2021-11-22

    14 张   BUDA-现代时尚室内设计

       2021-10-21

    10 张   Apartment_90_21公寓室内设计

       2021-09-03

    13 张   沉默的房间

       2021-06-02

    12 张   Cloud & Co浪漫梦幻室内设计

       2021-03-04

    18 张   巴塞罗那的室内设计

       2021-02-08

    21 张   一个以自然为灵感的住宅

       2024-08-11

    8 张   华丽的北欧风格家居室内设计

       2024-07-20

    7 张   带土棕色米色色调的现代住宅

       2024-07-20

    1 张   蓝色贴瓷砖师傅素材下载

       2023-02-27

    32 张   夏季色彩简洁黑条公寓装饰

       2018-04-10

    1 张   洁白的卫生间卫浴素材

       2020-03-29

    1 张   洁白贴满瓷砖的卫生间洗浴台

       2020-03-13

    1 张   挂满画板的灰色画廊艺术馆

       2020-02-18

    1 张   洁白的公共卫生间洗浴台素材

       2020-02-15

    1 张   洁白的男性公共卫生间素材

    VIP

       2020-02-14

    1 张   洁白公共厕所室内洗手台素材

    VIP

       2020-02-14

    1 张   公寓酒店式卫生间素材下载

       2020-02-11

    1 张   北欧灰卫生间浴缸梳妆台素材

       2020-02-11

    1 张   卫生间洗浴盆马桶素材下载

       2020-02-09

    1 张   北欧风浴室卫生间素材下载

    VIP

       2020-02-07

    1 张   手拿房屋建筑设计图的商务图

       2020-01-08

    1 张   黑白几何感建筑立面

       2025-09-25

    1 张   黑白调建筑结构特写

       2025-09-16

    1 张   教堂拱形花窗的光影之美

       2025-09-08

    1 张   伦敦大本钟-暮色下的时间地标

       2025-08-15

    1 张   建筑光影-黄昏下的都市立面

       2025-08-02

    14 张   现代建筑-自然融合的空间美学

       2025-07-25

    1 张   夜幕下的都市璀璨天际线

       2025-07-17

    6 张   UTAMED-生态融合建筑设计全景

       2025-07-16

    1 张   红色螺旋楼梯建筑独特景观

       2025-07-16

    1 张   星空下的天文台夜景

       2025-07-16

    5 张   加拿大岛屿生活天堂度假胜地

       2025-07-14

  • 查看更多家居建筑类型素材图库