
2364 * 1330
2364 * 1576
2364 * 3940
2364 * 3546
2364 * 1576
南立面上的盒子的阶梯式布置响应了邻居的视野和照明要求,保留了建筑物旁边的现有红砖墙,形成了一条细长的小巷,通往一楼住宅区的楼梯。
2364 * 3546
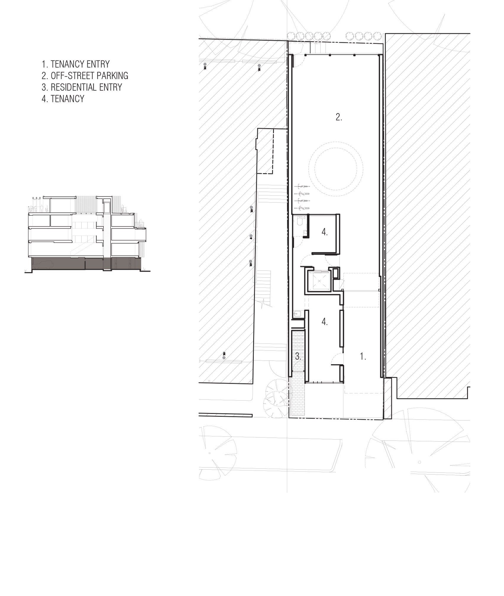
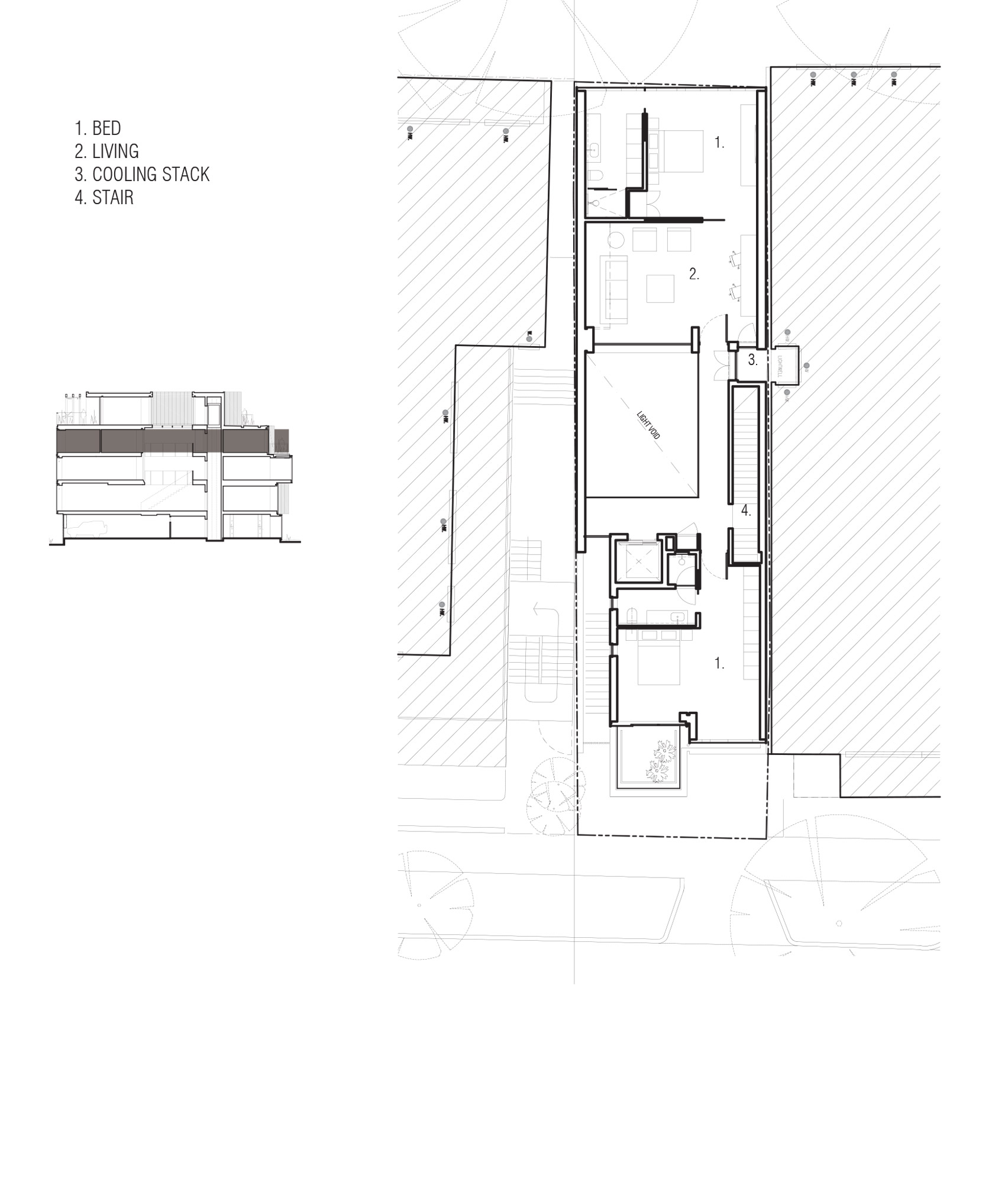
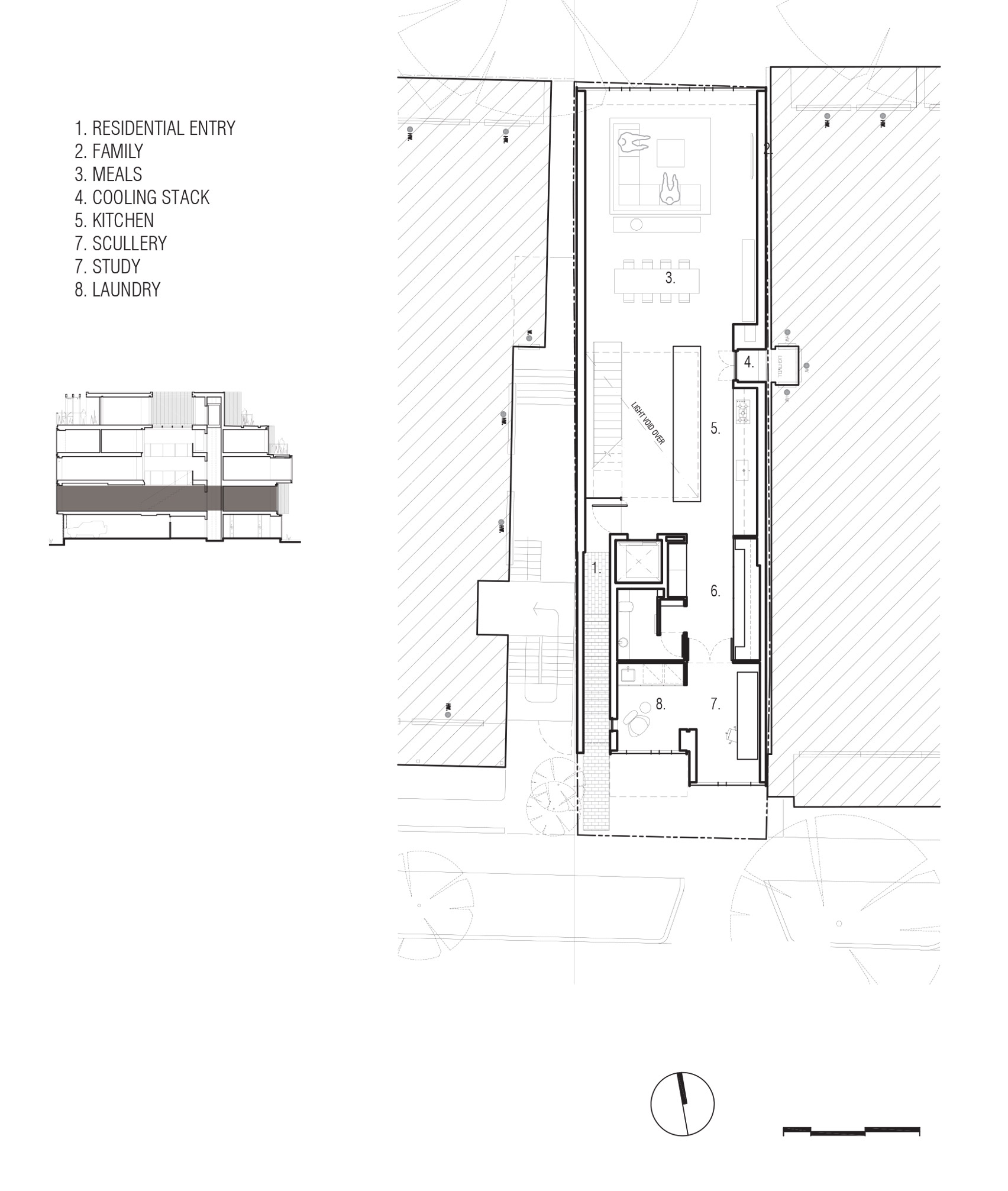
第一层至第三层有三个明确定义的区域。客厅和餐厅,私人卧室空间以及最后的“休闲”空间等公共空间
2364 * 3546
二楼和三楼的屋顶露台提供户外休闲场所,享有城市美景。
2364 * 3546
2364 * 3546
2364 * 3546
2364 * 3546
2364 * 1576
2364 * 3546
1704 * 2013
1704 * 2013
1704 * 2013
1704 * 2013
1704 * 2013
1704 * 2013
特别提醒:本站所有作品收集于网络,版权均属各自所有者,本站素材仅提供学习参考,请勿商用,如有侵权请联系我们邮箱(200894114#qq.com,把#换成@)删除,要购买全部版权商用请自行联系作者,谢谢!
相关标签搜索:


