

两个建筑都有倾斜的屋顶,屋顶采用夸张的屋檐,遮挡了室内的阳光直射,并提供了一条连接起居区的遮蔽走道

踏脚石屋位于湖面上方的钢柱上,可以保护它们免受洪水的侵袭,并可以在它们下面游泳

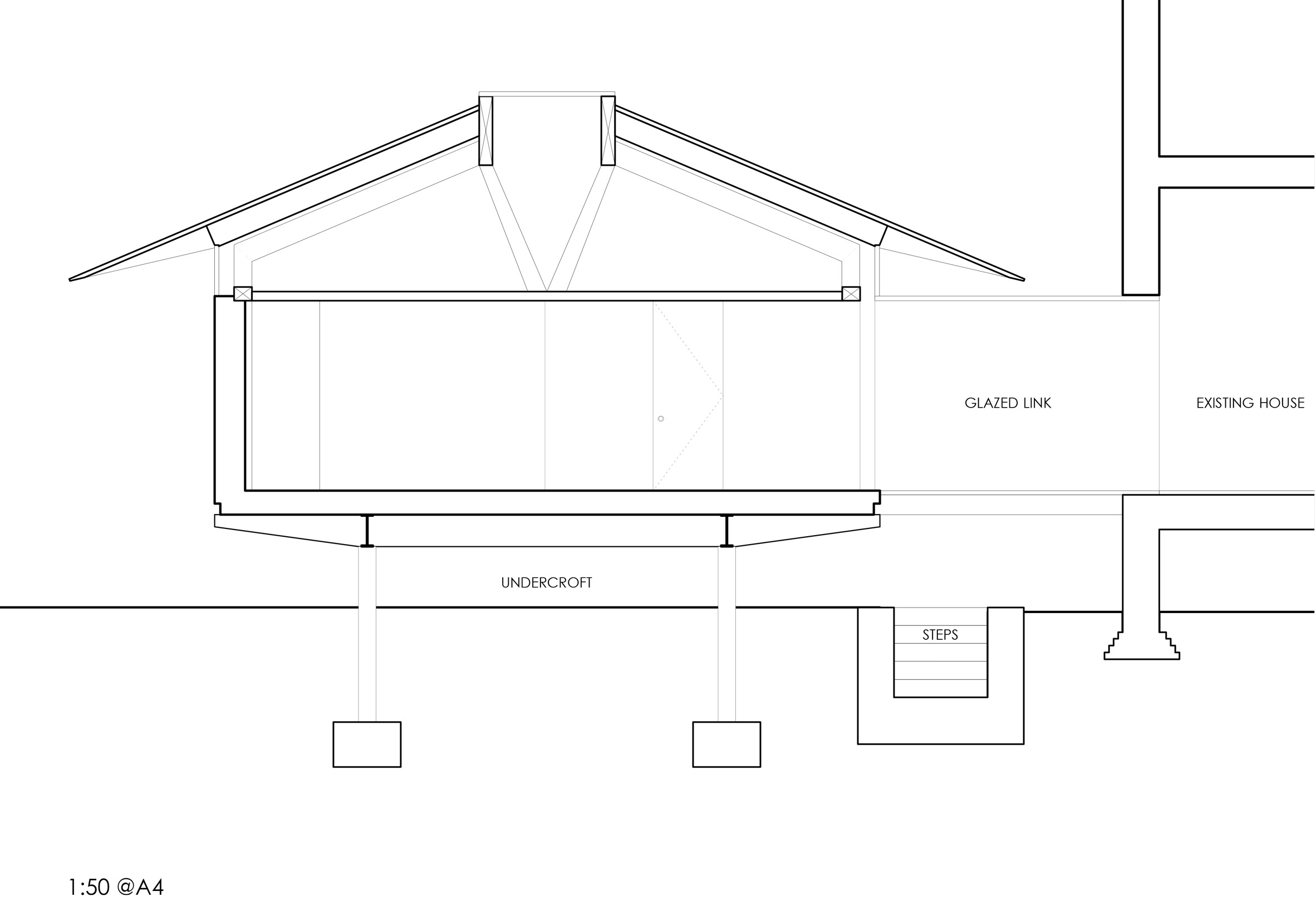
屋顶由Y形柱支撑,这些柱由胶合层压木材制成,因其稳定的特性而被选中,并增加了整个内部使用的花旗松镶板的温暖

支柱的顶部分开,为天窗创造了空间,延伸了两座建筑的全长,并从内部看到了天空



















特别提醒:本站所有作品收集于网络,版权均属各自所有者,本站素材仅提供学习参考,请勿商用,如有侵权请联系我们邮箱(200894114#qq.com,把#换成@)删除,要购买全部版权商用请自行联系作者,谢谢!
相关标签搜索:


