

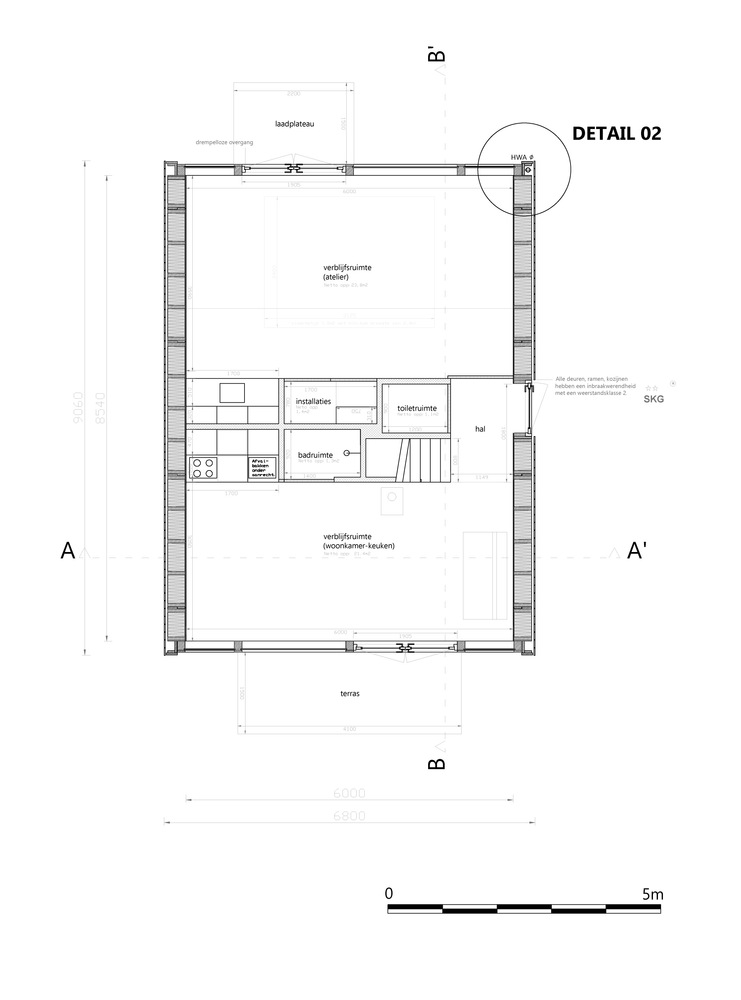
在设计过程中,Lia的愿望被清楚的提炼出来,然后只留下本质的部分。在这里,在俯瞰风景的树木之间,Lia可以专注于天然石材艺术。工作在楼下,而休闲则在二楼。结构的曲线和朝向两侧的视线使空间提供了一种近乎精神性的体验。

Indigo由预制生态构件构成,可以在一天之内现场安装完成。在这些预制构件中,墙体和屋面之间的曲面连接抗弯。除此之外不再需要其他结构墙体,因此完全自由的室内布局得以实现。在Lia的项目中,所有的设备都安排在中央家具核心中,使起居空间和工作空间都可以直接与完全通透的立面相邻。这提供了大量的日光和极佳的穿透住宅的通畅视线














特别提醒:本站所有作品收集于网络,版权均属各自所有者,本站素材仅提供学习参考,请勿商用,如有侵权请联系我们邮箱(200894114#qq.com,把#换成@)删除,要购买全部版权商用请自行联系作者,谢谢!
相关标签搜索:


