

选址在街角是形象最大化展示,建筑的转折形成环抱型的城市空间,将场地划分,形成热闹的前场和静谧的后场空间。景观得到充分的利用,拥有270°的景观视野,打造良好的城市形象,彰显整个体验馆形象。

选址在街角是形象最大化展示,建筑的转折形成环抱型的城市空间,将场地划分,形成热闹的前场和静谧的后场空间。景观得到充分的利用,拥有270°的景观视野,打造良好的城市形象,彰显整个体验馆形象。

方案伊始于漂浮在水面上的一个仿生锈钢板建筑,寓意为拔地而起展翅翱翔的雄鹰,可俯瞰太子湖全景。经过建筑师对场地和环境、功能及户主的需求,利用符号的异化,重新组织梳理。打造一个具有展示性、体验性以及可持续性的建筑。

建筑与自然间应当有着某种经验上的联系,一种是形而上的联系,另一种则是诗意上的连结。外立面采用折线设计,创造出独特的菱形建筑形态。自然光的映射,呈现出特有的肌理与光影,形成建筑与自然的对话关系,塑造出人为几何形体创造出自然与人之间相互融合共存的展览形式

建筑的边界轮廓使用极简线型灯带,在星空之下显得格外闪耀分明。外立面使用的三种不同材料层层递进,更具层次感,使建筑在夜晚更晶莹剔透。

后院景观平台不仅能引导人流,更是室内与室外绿地的转换器。折线型阶梯增加了景观的可塑性,并与建筑形成呼应充满了雕塑感。

以仿生的手法,利用铝方通竖条状序列形成肌理,纹理以翅膀上羽毛为原型,整个建筑物表现出折面雕塑般的动态整体性。水的出现模糊了建筑内和外的界限让建筑跟环境充分融合。

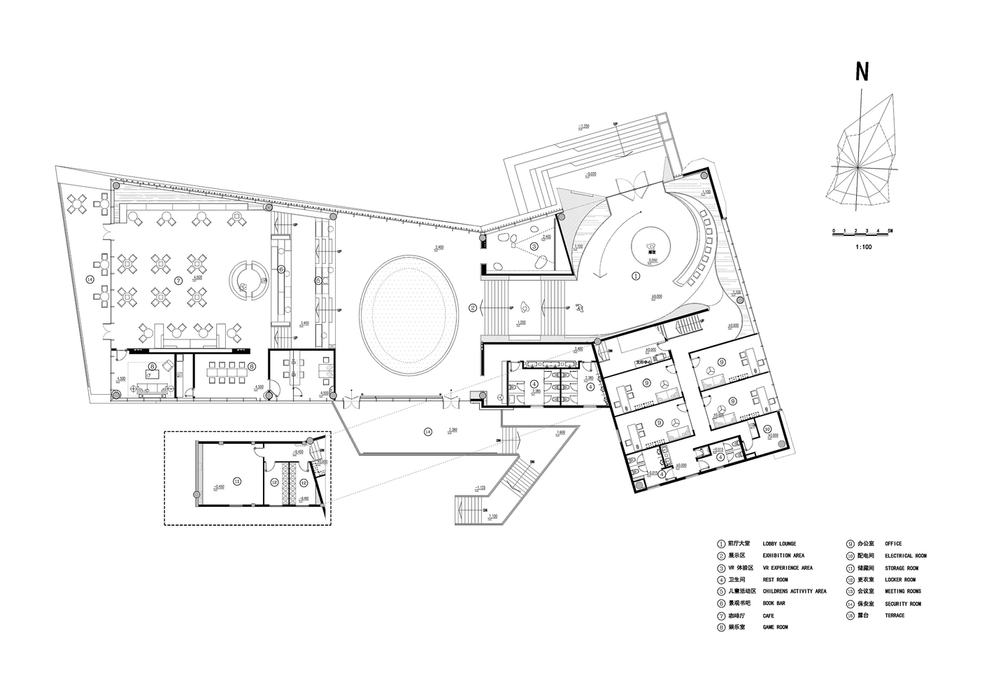
室内功能是将建筑所想表述的外在形式视为几何体量组织成的关系面,设有咖啡厅、儿童活动区、娱乐文化场所、景观书吧、VR体验区等一系列体验功能,使空间充分利用并有可延续性。功能布局的形式能体现空间中的穿连性,不同空间的打开与聚拢,视觉从宽入窄再到宽,静静感受空间的张力,沉浸其中。

进入前厅大堂,以精雕细琢的雕塑展现无处不在的现代时尚感,材质的搭配与灯光色彩的调谐,让设计流光溢彩;顺阶梯而上,自然光线经由大片玻璃洒入室内展览空间,将外景一览无余。

建筑空间的品质从来不是无心插柳,而是精心打造而成。建筑师先构思水中漂浮的空间概念,再通过功能需求形塑空间,并强调建筑的整体性、空间的连续性、环境的有机性以及人在创造环境的能动性。






























特别提醒:本站所有作品收集于网络,版权均属各自所有者,本站素材仅提供学习参考,请勿商用,如有侵权请联系我们邮箱(200894114#qq.com,把#换成@)删除,要购买全部版权商用请自行联系作者,谢谢!
相关标签搜索:


