

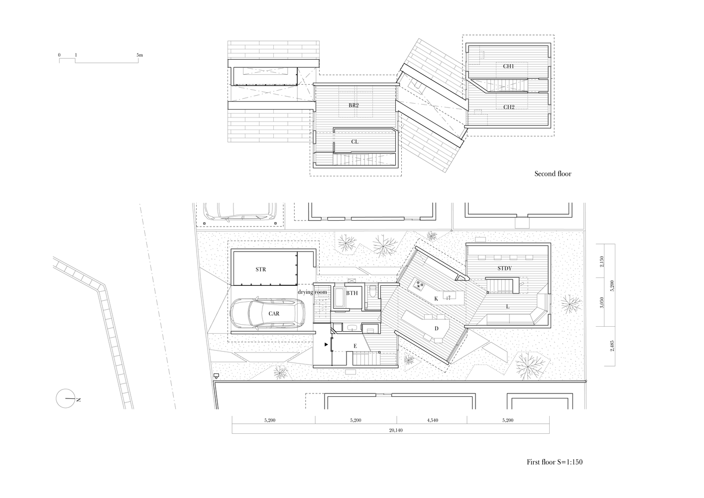
我们在场地中采用了一个很长的山墙屋顶,并将其分为四个方形房屋。我们调整了它们的位置,从最靠近街道的方形房屋开始,依次旋转并调整高度。这样的位置分布让我们可以在建筑物之间创造一个遮蔽的空间,同时建立了多个方向的房屋轴线。房子的中心是一个旋转了30度的一层的厨房和用餐空间,在这里,住户可以看到与这里相邻的两个方形房子中一楼和二楼的每一个房间。旋转的单层体块和双层体块交错组合,屋顶的高度与倾斜度的不同,以及一系列不连续的房间,带来了一种开敞的感觉。

我们在单层房子的面向花园的墙中设计了一个巨大的窗户,虽然房子采用了木墙结构,但这座房子的屋顶的梁可以为整体结构提供支撑。通过把不同的结构部件在窗户周围相连接,使屋顶的托梁与屋顶坡度相协调,我们成功地使山墙结构不产生侧推力。每个房子的位置和高度的变化让我们创造了自然光线充足的活动空间和阅读空间。在这个项目中,每个房子之间、房子和花园,房子和周围的空间都有着紧密的联系



























特别提醒:本站所有作品收集于网络,版权均属各自所有者,本站素材仅提供学习参考,请勿商用,如有侵权请联系我们邮箱(200894114#qq.com,把#换成@)删除,要购买全部版权商用请自行联系作者,谢谢!
相关标签搜索:


