

作为人与猫的共享空间,如何在人与猫共享的空间寻找最佳的平衡点,成为这一项目的挑战。

该项目的一切的尺度、造型设计都与猫有关。根据业主提到的森林风,壹所设计给出了另外一种理解,在空间中以现代抽象化的手法去置换具象化的森林概念,用体块与平台装置将各个空间串联在一起

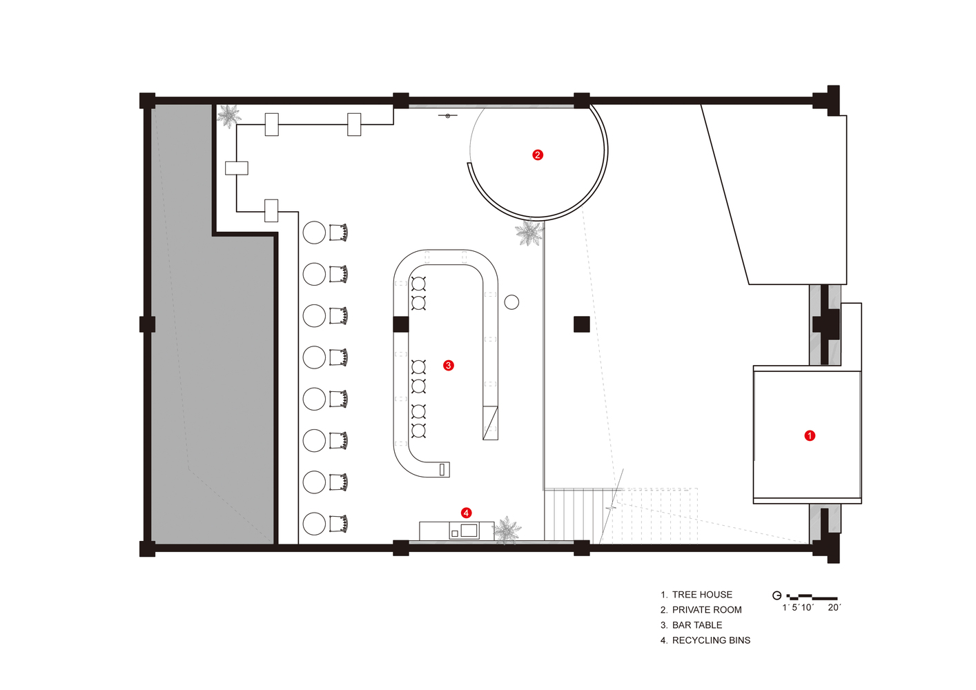
入口处的黑色体块奠定了基础形态,木色松木板搭建的观赏平台作为短暂停留空间,供进店的人们洗手换鞋

由等高线生成的波浪式断面贯穿整个一层空间,既改善了人、猫与空间的关系,又灵活适用于各种猫主题活动的举办。壹所设计以叙事性的方式将抽象化的梯田,河流,水纹,树屋等概念在空间中层层递进。开敞的猫型梯田取代传统的座位排列,通过梯田的地势起伏形成人与猫不同的行为尺度,猫咪穿梭于梯田,带来有趣的互动

基于猫的喜高习性,设计师打造了一个半层的视野平台,在室内外之间嵌入了一个悬挑的空中树屋,独特的斜顶结构同时满足人和猫的行为尺度、视觉感受。人们可以在空中树屋喝咖啡、小憩,更能俯瞰五十只慵懒猫咪在梯田里的一静一动,满足贪婪的吸猫患者的一切诉求。

二层的就餐空间基于原有的夹层钢结构平台改造,设计师以置换的手法将森林中小溪流水转化成河桌,形成一个多功能交流区,满足不同的用餐方式,获得更自由的用餐体验。墙面则通过波浪不锈钢模拟水的波纹,更休闲的就餐姿态和视觉上的互动区别于传统餐饮体验,让人们就餐撸猫两不误。

岁月洗礼,咖啡厅也在不断寻求新市场与新方向,壹所设计革新了传统咖啡厅的设计,最终以几乎无绿植的形态呈现了一个现代感的猫森林,为餐饮行业带来全新的用户体验。

















特别提醒:本站所有作品收集于网络,版权均属各自所有者,本站素材仅提供学习参考,请勿商用,如有侵权请联系我们邮箱(200894114#qq.com,把#换成@)删除,要购买全部版权商用请自行联系作者,谢谢!
相关标签搜索:


