

尽管场地面积有近3200平方米,但是周边环境却给建筑造成了许多限制,北面的建筑越一半都是六层建筑,西边有一百多个房间是朝向场地的。因此,主要的问题是保护隐私以及防止周边环境对这个家庭造成打扰,同时增加家庭成员间的交流。

在这样的场地现状和主要的项目目标下,Integrated Field 提出了将房子建在场地最远处的想法,并运用立方体来建造服务区域。主要的环线围绕着室内庭院从一楼到二楼,这使家庭成员之间能在欣赏自然庭院的同时,也能更方便地聊天互动。

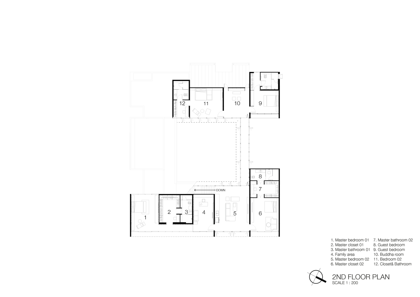
所有的公共功能,如祠堂,祖屋,起居室和餐厅在一层。二层是空气流通,采光充足的卧室。

房子色调属于暖色,主要材料是木材和轻盈的钢。这些结构中的折叠开敞式窗户提供了良好的通风环境。 自然风一年大部分时间从南方吹来,同样地,太阳也会持续地照射。因此,主入口有一个有遮蔽的阳台来享受前院的风景,同时保证整个建筑大多数时候的通风。但是二层则需要树木的帮助作为第一层屏障,隔热玻璃则是第二道,以防止太阳暴晒。


BAAN RORB的设计是一个对环建筑内外的尝试,形成宁静,放松的空间,使家庭成员在内庭中保持良好的关系。















特别提醒:本站所有作品收集于网络,版权均属各自所有者,本站素材仅提供学习参考,请勿商用,如有侵权请联系我们邮箱(200894114#qq.com,把#换成@)删除,要购买全部版权商用请自行联系作者,谢谢!
相关标签搜索:


