

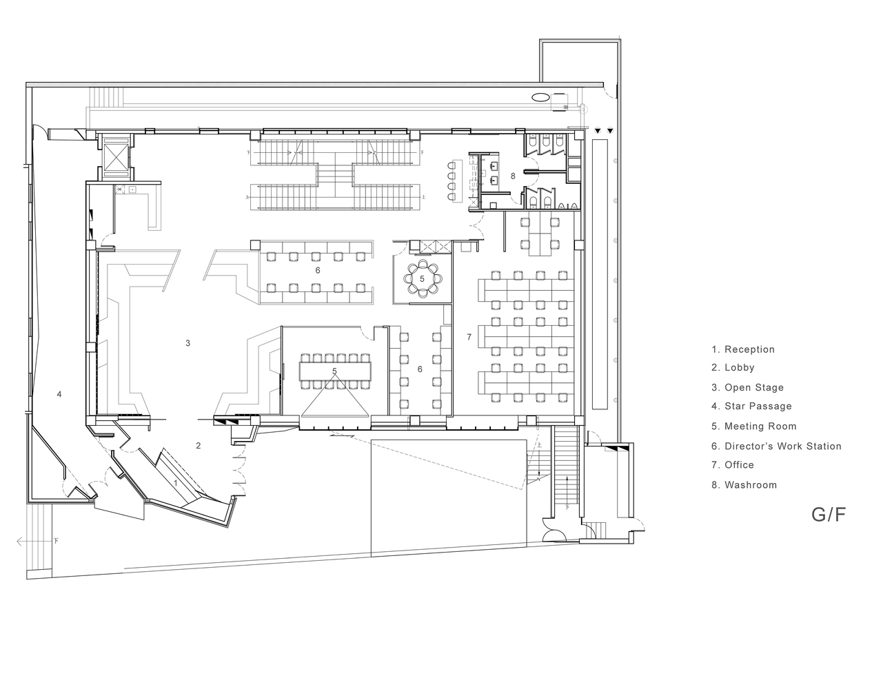
室内空间与建筑元素情境而生,几何视觉透过线面构成,天花射灯如同舞台轨道灯,形成不同的层次丰富视觉。

三角切面及天窗构筑为特殊来宾而打造的走廊,甫进大堂两侧是多层次的座位,以光线展现线条,开放的互动区减轻工作的疲惫,更增加员工间的交流机会,中间是偌大的多用途空间,无论是内部团队或是影视活动都提供灵活性及自由度。







办公位置贯彻几何元素换上温润的木饰及强烈的钢材线条,为促进人际之间的互动与交流,开放的工作位置与透明玻璃?的会议室,使工作俱灵活性与自由度,将空间潜力刺激团队的灵感创造价值内容(Valuable Content Creating)。

办公室的主通道是楼高两层的楼梯,一整面落地玻璃开扬而舒心,将室外景致及光线饱纳无遗,即使工作再繁重也能过滤心情,激化思维。

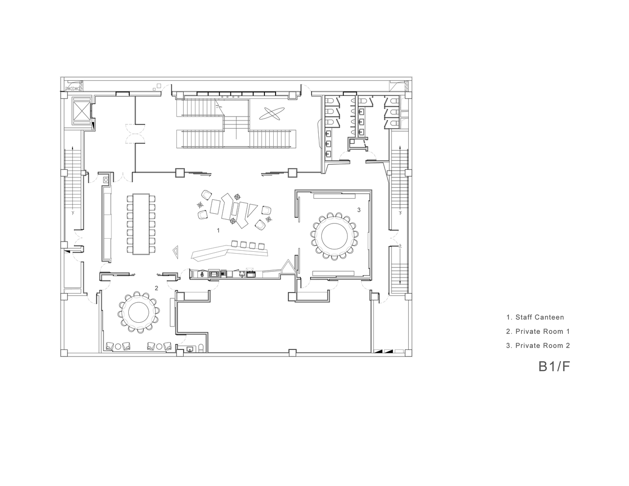
地下层?敞的接待空间则成了趣味的空间体验,黑、白、灰打造空间格调,几何条线配合灯光折射形同立体凋塑,加上酒吧及用餐配备能满足不同需求。



















特别提醒:本站所有作品收集于网络,版权均属各自所有者,本站素材仅提供学习参考,请勿商用,如有侵权请联系我们邮箱(200894114#qq.com,把#换成@)删除,要购买全部版权商用请自行联系作者,谢谢!
相关标签搜索:


