当前位置:网站首页 - 图库素材 - 家居建筑 - 建筑
  • 韩国首尔M.C.大楼图片
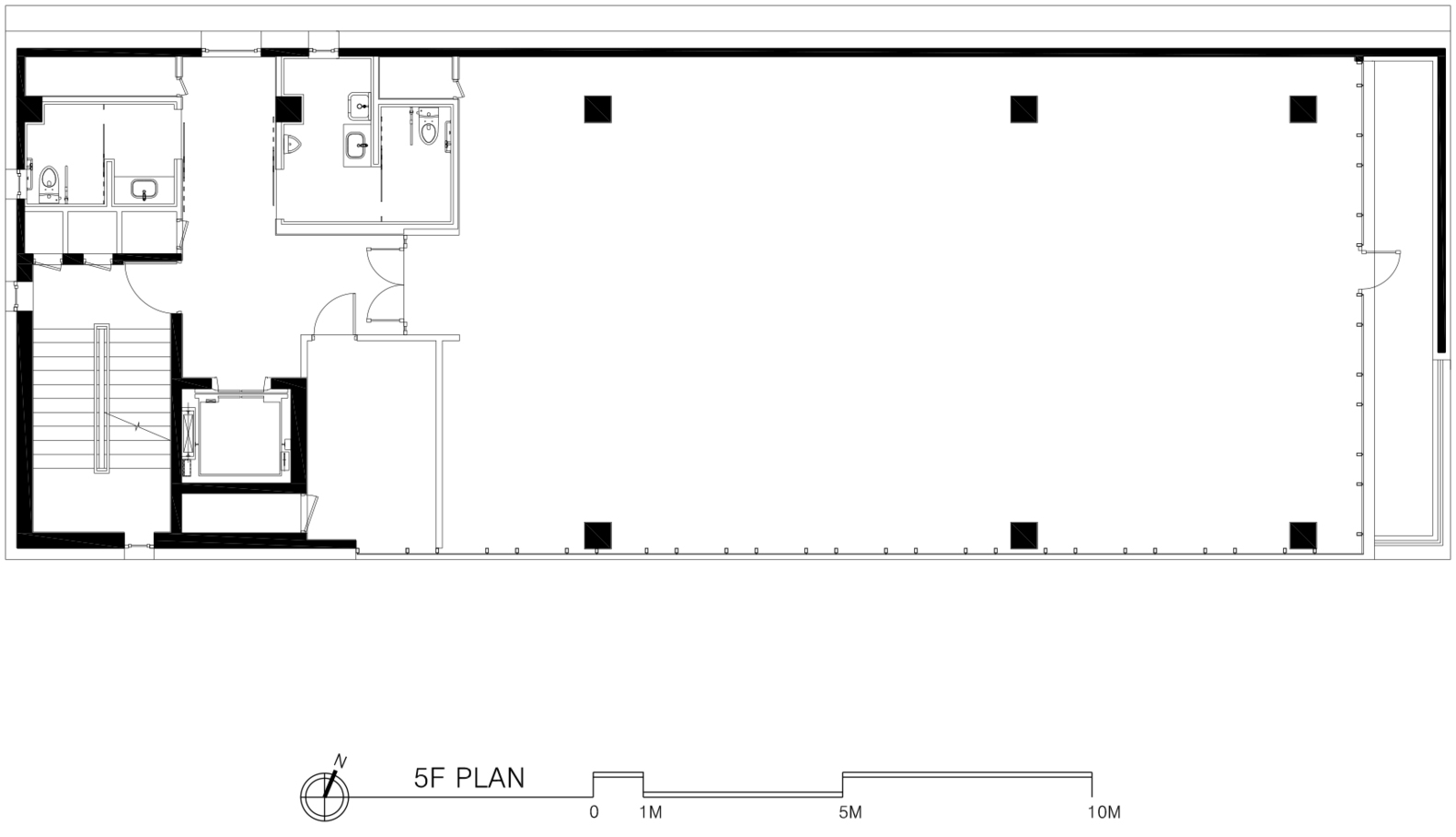
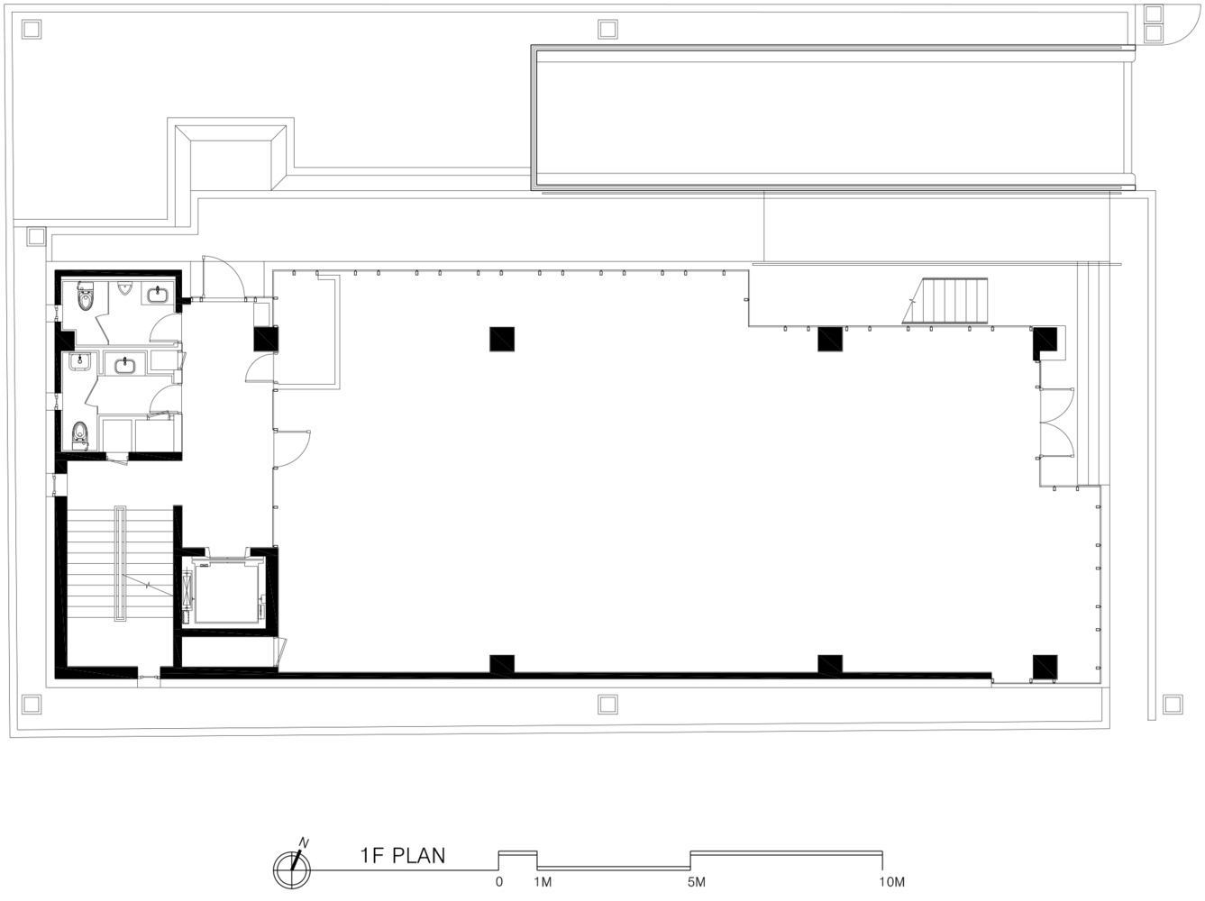
  • 场地东西朝向。场地狭窄的一面连接着道路,所以场地内有更长的步行距离。从商业区和步行者的方向来看,建筑从一楼和二楼进入,楼梯间和电梯位于建筑物内部。建筑物业主的目的是出租空间,然而建筑物并不是可以在没有用户的情况下独立存在的。建筑的使用应该从用户的观点来看,并且可以由用户的想法来改变。取决于用户的想法,它可以是餐馆或办公室。建筑师的意图是响应设计的改变,并期望建筑能以多种而非单一的方式构建。
  • 这座建筑可能看起来像一个打开的盒子。它通过建筑体验反应了打开小盒子的喜悦。 “打开”的含义中也包含了业主的希望。

  • 这座建筑可能看起来像一个打开的盒子。它通过建筑体验反应了打开小盒子的喜悦。 “打开”的含义中也包含了业主的希望。
  • 韩国首尔M.C.大楼---酷图编号2
  • 每个楼层都有一个感受室外空气的阳台,而五楼的挑高天花板为室内带来了照明。即使要改变屋顶的用途,它的构造也易于扩展。建筑还使用了石材作为装饰材料,带来了统一的氛围。整块切割的石材表面与玻璃表面形成对比。

  • 每个楼层都有一个感受室外空气的阳台,而五楼的挑高天花板为室内带来了照明。即使要改变屋顶的用途,它的构造也易于扩展。建筑还使用了石材作为装饰材料,带来了统一的氛围。整块切割的石材表面与玻璃表面形成对比。
  • 韩国首尔M.C.大楼---酷图编号4
  • 韩国首尔M.C.大楼---酷图编号5
  • 韩国首尔M.C.大楼---酷图编号6
  • 韩国首尔M.C.大楼---酷图编号7
  • 韩国首尔M.C.大楼---酷图编号8
  • 韩国首尔M.C.大楼---酷图编号9
  • 韩国首尔M.C.大楼---酷图编号10
  • 韩国首尔M.C.大楼---酷图编号11
  • 韩国首尔M.C.大楼---酷图编号12
  • 韩国首尔M.C.大楼---酷图编号13
  • 韩国首尔M.C.大楼---酷图编号14
  • 韩国首尔M.C.大楼---酷图编号15
  • 韩国首尔M.C.大楼---酷图编号16
  • 韩国首尔M.C.大楼---酷图编号17
  • 韩国首尔M.C.大楼---酷图编号18
  • 图片信息简介:韩国首尔M.C.大楼·图片编号为963181,URCODE Architecture是此图片的作者,上传时间为2018-06-20 15:20:42,格式为JPG,颜色模式为RGB,分辨率为72 Dpi。
    特别提醒:本站所有作品收集于网络,版权均属各自所有者,本站素材仅提供学习参考,请勿商用,如有侵权请联系我们邮箱(200894114#qq.com,把#换成@)删除,要购买全部版权商用请自行联系作者,谢谢!
    相关标签搜索:
  • 相关系列图片/素材作品
  • 以下仅展现近期部分相关系列的图片素材,要看全部相关作品,请逐个查看右上角的相关标签搜索
  • 19 张   韩国首尔M.C.大楼

       2018-06-20

    28 张   北卡罗来纳州的房子

       2025-01-07

    11 张   680.完整的CGI房子

       2024-10-22

    3 张   希腊住宅区渲染图

       2024-10-13

    16 张   受船设计启发的现代住宅

       2024-09-26

    6 张   688. Full-带瀑布的别墅豪宅

       2024-09-12

    16 张   Big Small House-大大小小的房子

       2024-09-12

    7 张   带土棕色米色色调的现代住宅

       2024-07-20

    30 张   WOJR完成俯瞰硅谷的角屋

       2025-09-28

    1 张   四款金色相框组合装饰设计

       2025-08-24

    1 张   手持挂烫机熨烫衣物场景

       2025-08-22

    1 张   用脖子互相拥抱的帝王企鹅情侣

    VIP

       2025-06-20

    13 张   参照自然的曲线座椅

       2025-06-19

    13 张   乐高可折叠皇家扑翼机

       2025-06-14

    1 张   黑白几何感建筑立面

       2025-09-25

    1 张   黑白调建筑结构特写

       2025-09-16

    1 张   教堂拱形花窗的光影之美

       2025-09-08

    1 张   伦敦大本钟-暮色下的时间地标

       2025-08-15

    1 张   建筑光影-黄昏下的都市立面

       2025-08-02

    14 张   现代建筑-自然融合的空间美学

       2025-07-25

    1 张   夜幕下的都市璀璨天际线

       2025-07-17

    14 张   Scoopify Gelato-空间建筑设计

       2025-07-16

    6 张   UTAMED-生态融合建筑设计全景

       2025-07-16

    1 张   红色螺旋楼梯建筑独特景观

       2025-07-16

    1 张   星空下的天文台夜景

       2025-07-16

    5 张   加拿大岛屿生活天堂度假胜地

       2025-07-14

  • 查看更多家居建筑类型素材图库