

经过9年的服役,外观破旧、环境昏暗、设施老化的艺教馆再也无力支撑艺术教育事业的发展,校方决定对艺教馆进行全面修缮,将其改造成集观演、教学、办公、接待、交流、展览于一体的新的艺术演艺中心。

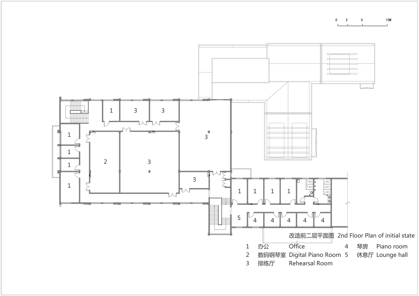
东侧的二层辅楼,主要为琴房和办公室,内部光线昏暗,年久失修。我们把内部空间重新划分,功能上增加了公共休息区、会议接待、录音棚等,同时对琴房、录音棚进行吸音减噪的处理,提升使用品质。琴房及办公室增加外窗面积,改善采光和通风。

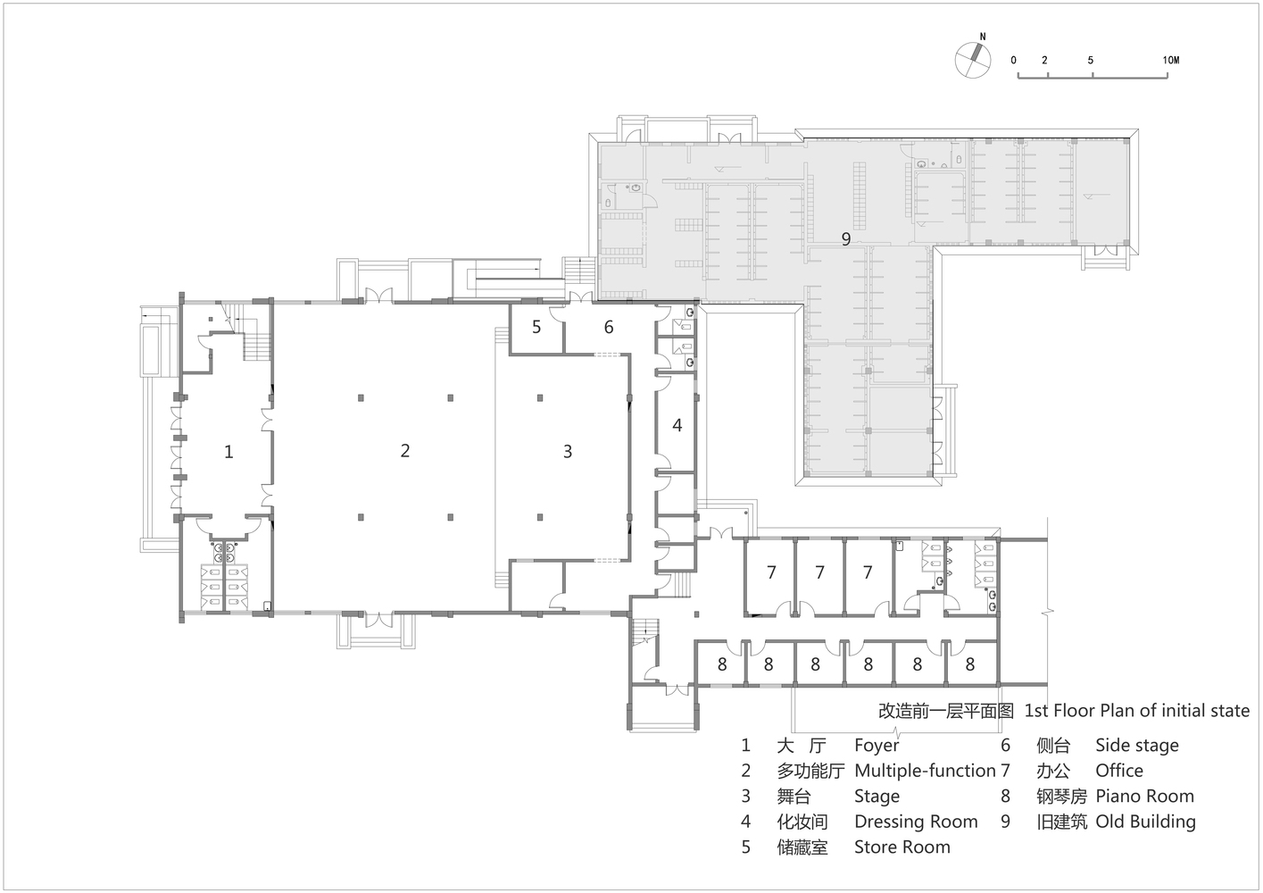
第一次考察现场,远远看去,两层的建筑,朴实简单,并无艺术馆特有的气质,规则的柱网,统一的外窗,以及微微挑出的屋檐,整个建筑带有强烈的年代感,与周边建筑并无太大区别。整个建筑与场地的关系是封闭的,室内室外之间被窗台、花坛和灌木等层层阻隔,阳光、视线都被挡在窗外。进入西侧的主入口门厅,空间异常的局促,门厅南侧紧邻卫生间,占据了最好的景观朝向和天然采光。整个建筑的功能核心区域是位于主楼一层的多功能厅,用于排练和演出。看似占据了整个主楼的一层空间的多功能厅面积不小,但是由于长宽比例的不合理,使得大量的边角空间没有被有效的利用,同时又切断了室内的交通流线,导致主楼和东侧辅楼在一层无法联通。

改造后的多功能厅将成为一个现代实验话剧的“黑匣子”剧场,内部没有明显的舞台与观众席的分割,这一设计冲破了演员和观众的距离感,打开了想象的空间,也能够让更多的学生参与到演出本身中来。内部通体喷黑,没有任何装饰,剧场向东直接连通内庭院,成为剧场唯一的采光面,也与室内的黑形成强烈的反差,使得在舞台区域的表演活动,有了戏剧化的剪影效果。为了让剧场的层高增加,我们局部降低了地坪标高,并在门厅设置台阶,解决高差问题,同时也丰富了空间。



















新的建筑外立面打破了原有建筑的竖向韵律形式,采用体块咬合和黑白红三色搭配的处理方式。一层以通透的大面玻璃为主,二层以黑白色压型穿孔铝板为主,结合红色耐候钢板及深灰色铝板雨棚。整个建筑褪去了厚重的墙面外衣,变的通透轻盈,艺术感极强。高低错落的窗洞,和半透明的穿孔板表皮,使得建筑室内拥有丰富多变的光影效果。夜幕降临的时候,室内的灯光透过半透明的表皮,释放出朦胧柔和的光线,更具艺术气质












改造后的艺术教育馆已经投入使用,并将为2018年的第五届全国大学生艺术展演提供配套的排练场地,东北侧紧邻的学生浴室,将是二期改造的部分,为艺教馆提供更加完善的功能空间。届时,室外连廊会将两个空间相连通,同时屋顶花园也为学生提供更好的户外交流和活动空间。回归日常使用的艺术教育馆,将和复旦的艺术教育一起,开启全新的旅程

通过分析设计,我们在保证多功能厅的正常使用的尺寸要求下,对其进行面积的缩减,和长宽比的优化。在西侧,我们让出一个柱跨的进深,给到门厅,同时局部挑空,引入天光,整个使得门厅空间开敞明亮,空间层次丰富。在北侧划出3.5米的区域,将原本在西南角的卫生间和东侧的化妆间移到北侧,结合值班室、楼梯间、配电间等,形成完整的辅助空间。同样在南侧也留出3.5米的宽度,联系门厅,结合走道,并将一层的外墙全部打开,改成大面的落地玻璃,并且将南侧室外的花坛、灌木取消,连同南侧的空地,铺设由室内到室外延伸的防腐木平台,形成阳光充足、视线通透的室内公共休息区域,和完整的室外活动广场,室内室外连成一体。同时使得主楼与辅楼在一层有了便捷的联系,形成合理的交通流线。

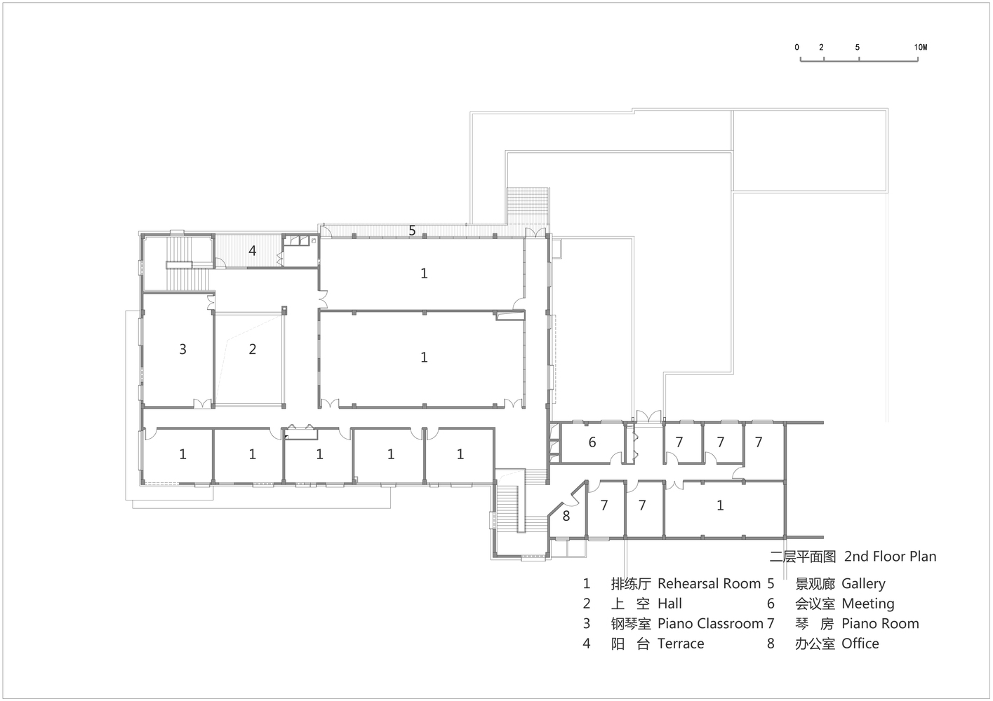
主楼二层现状主要功能为排练厅和活动室,交通流线呈U字型,并有不少没有天然的采光通风的黑房间,基本处于无人使用的废弃状态。我们将原本的南向的外走廊改为内廊,结合门厅的挑空空间,形成相对紧凑合理,又开放通透的内部交通空间。走道的内置,留出了最佳的南向朝向,可以尽可能多地布置排练厅和活动室等功能用房。由于建筑的北侧近邻城市道路,政通路的行道树是两排高耸的水杉,从二层的室内望出去,是一道极美的风景线,因此我们在北侧设置了阳台和出挑的露台,作为观景的空间场所。






特别提醒:本站所有作品收集于网络,版权均属各自所有者,本站素材仅提供学习参考,请勿商用,如有侵权请联系我们邮箱(200894114#qq.com,把#换成@)删除,要购买全部版权商用请自行联系作者,谢谢!
相关标签搜索:


