

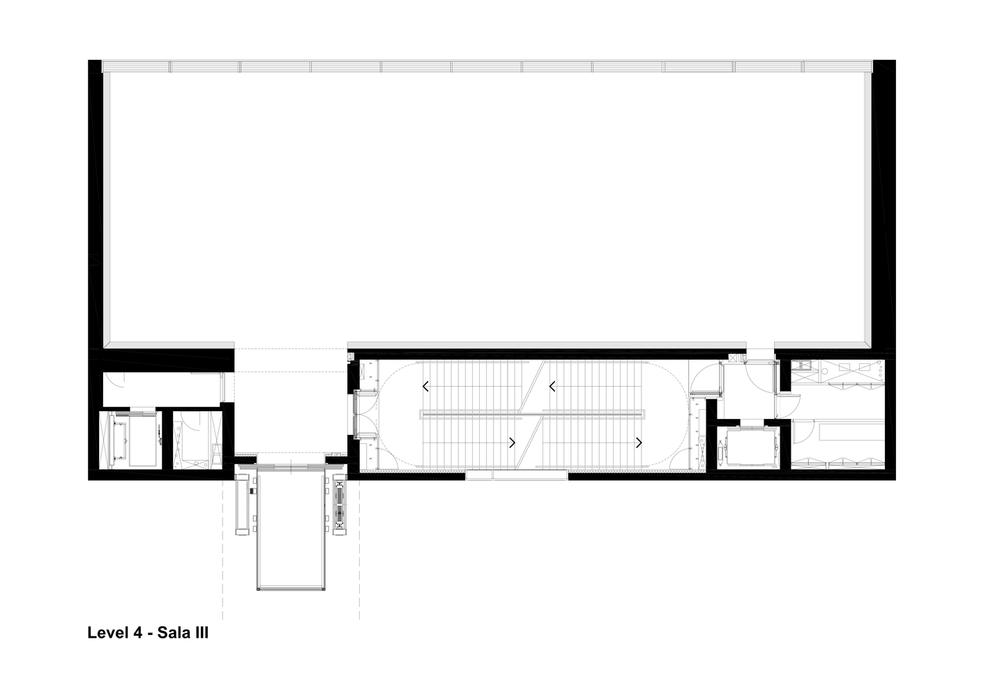
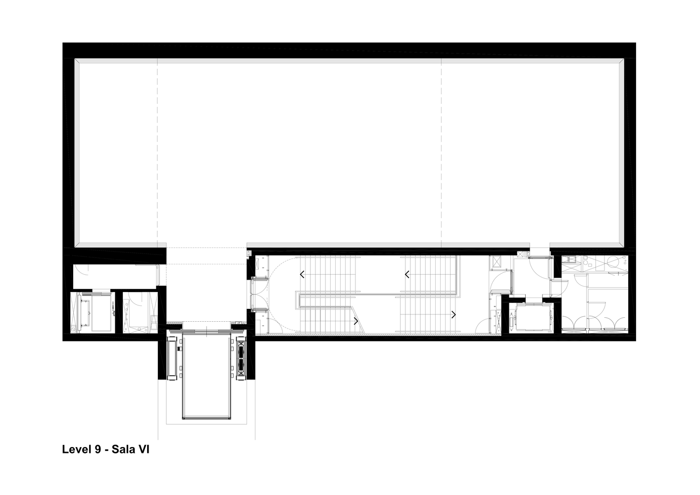
这栋九层楼的每一层楼都有一种对内部环境的最初感知,这要归功于三个空间参数的具体组合:计划尺寸、净空高和方向性。一半的楼层实际上是在一个矩形平面上建立起来的,而另一半的空间则显示出了一个梯形的平面

天花板的净空高由下至上,从第一层的2,7米到顶层的8米不等。 外部立面的特点是混凝土外墙和玻璃幕墙相互交替,不同楼层的北面、东面或西面都是暴露在外的。而顶部的走廊空间则暴露在天顶光下。



自普拉达基金会于2015年在新地点开放以来,收藏就成为了一个可用作文化项目发展基础的工具,通过采取不同的配置,从主旋律到公共展示,从分类展览到艺术家的展览项目,所有这些在托雷已经成为了永久性的展览空间。

屋顶平台一个灵活空间。这里设置了一间酒吧。 特点是以黑白色调为主,并在栏杆上装饰了反光镜,把整个楼层创建出了一个反射效果,并能够直观地消除视觉障碍,让这里可以有360°的全方位视觉空间面对米兰城。





大楼的南侧是一个对角线结构,并与邮电大楼相连,里面是一个全景电梯。 正如雷姆・库哈斯( Rem Koolhaas)所述,“所有这些变化在一个简单的体量内形成了一个多样性变化的基础――因此,空间与特定事件或艺术作品之间的相互作用可以产生无穷尽的各种条件。




“托雷”餐厅位于新建筑的六楼,里面的主要陈设来自菲利普约翰逊(Philip Johnson)在1958年为纽约“四季餐厅”设计的内饰,其中的基础元素来自由卡斯滕・奥莱(Carsten Höller)在2008-2009年建造的“Double Club ”俱乐部餐厅,还有由卢西奥丰塔纳( Lucio Fontana)设计的三个雕塑―― 其中2个是彩色陶瓷作品,另外一个是用玻璃马赛克粘贴的作品,同时还选择了以及选择绘画的威廉・n・科普利(William N. Copley)、杰夫•昆斯(Jeff Koons)、马库加(Goshka Macuga)和约翰卫斯理(John Wesley)等人的绘画作品。 受意大利传统餐厅的启发,在餐厅的墙上还特别展示了由艺术家约翰•巴尔代萨里(John Baldessari)、托马斯•索普(Thomas Demand)、纳塔莉•德约伯格(Nathalie Djurberg & Hans Berg)、埃尔姆格林(Elmgreen & Dragset)、乔普•凡•利希特(Joep Van Lieshout)、戈什卡•麦克加(Goshka Macuga)、马里科•莫里(Mariko Mori)、托拜厄斯(Tobias Rebherger)、安德烈亚斯(Andreas Slominski)、法兰契斯柯・维佐里(Francesco Vezzoli)和约翰•韦斯利(John Wesley)设计的作品。

















特别提醒:本站所有作品收集于网络,版权均属各自所有者,本站素材仅提供学习参考,请勿商用,如有侵权请联系我们邮箱(200894114#qq.com,把#换成@)删除,要购买全部版权商用请自行联系作者,谢谢!
相关标签搜索:


