当前位置:网站首页 - 图库素材 - 家居建筑 - 住宅
  • 14000平方米17层高的五彩积木堆叠屋公寓图片
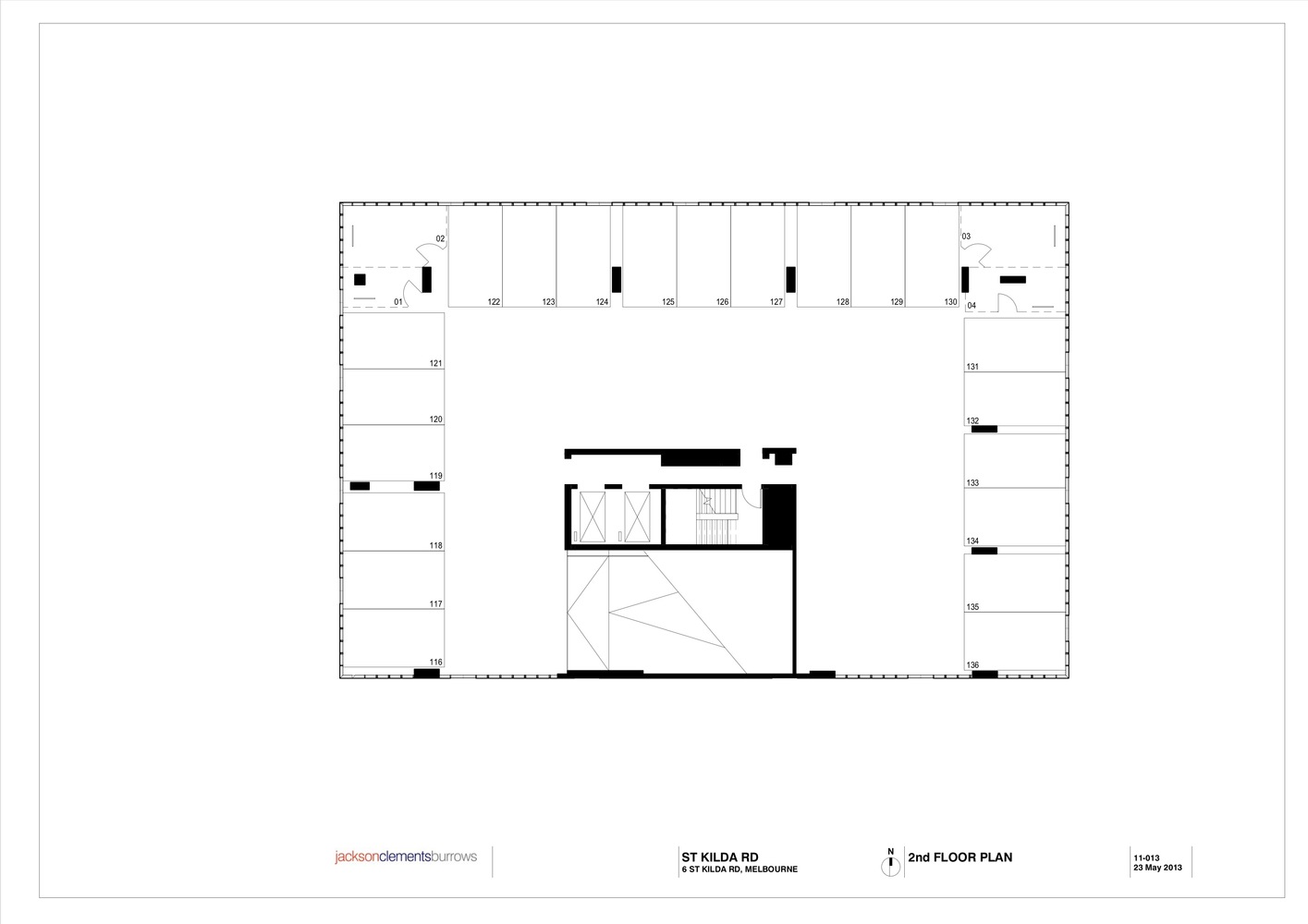
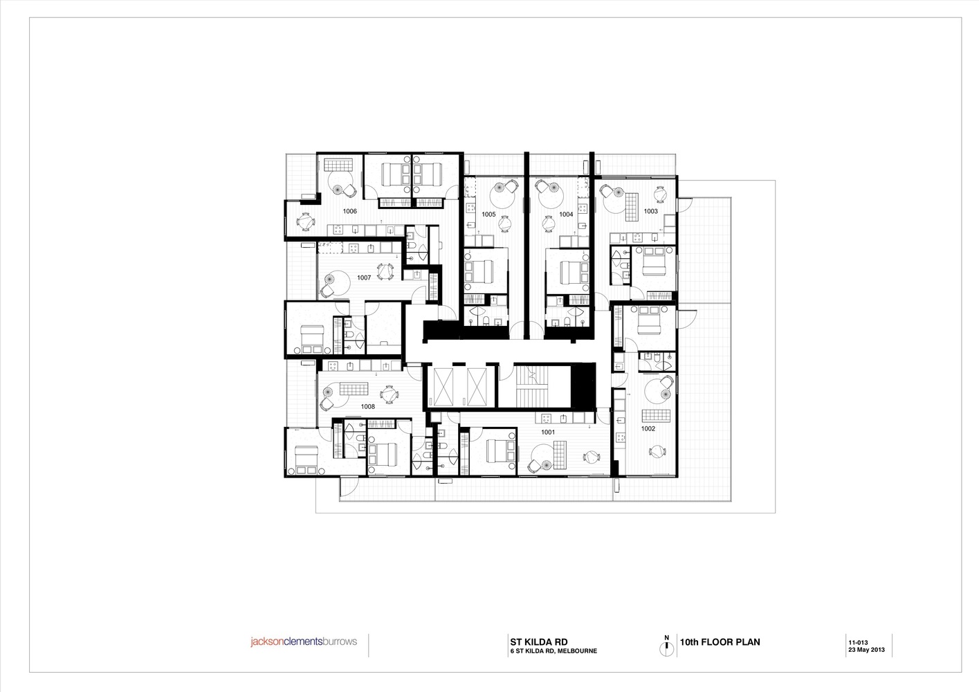
  • 建筑位于澳大利亚,这个17层楼高的公寓大楼坐落于St. Kilda街各色车辆来往的繁忙十字路口上,周围都是高高矮矮的各种建筑和广告牌。项目选址正处于通往当地旅游胜地以及卢纳公园和墨尔本郊区的必经之路。虽然建筑的外形很容易让人回想起童年随意搭建的积木,设计其实是一个认真斟酌过的不规则的方形盒子堆叠。不同高度的盒子在这个高度城市化的环境里搭建了一个抽象的联系。底层的部分被做成了与周围建筑差不多的高度。箱子层叠的设计与南边的山坡相呼应,同时也为未来周围建筑高度提供了设计参考。
  • 设计公司与艺术家Matthew Johnson合作为幕墙设计了40种不同的颜色。设计师以“有生命的外壳”为设计目标,将幕墙设计成半透明的,当居民入住时半透明的空间便会被激活。并且幕墙上每一个金属块都会随着太阳的移动轻微地变幻颜色,为建筑注入活力。到了晚上,幕墙则会通电发光,成为城市夜晚的一道风景线。

  • 设计公司与艺术家Matthew Johnson合作为幕墙设计了40种不同的颜色。设计师以“有生命的外壳”为设计目标,将幕墙设计成半透明的,当居民入住时半透明的空间便会被激活。并且幕墙上每一个金属块都会随着太阳的移动轻微地变幻颜色,为建筑注入活力。到了晚上,幕墙则会通电发光,成为城市夜晚的一道风景线。
  • 14000平方米17层高的五彩积木堆叠屋公寓---酷图编号2
  • 14000平方米17层高的五彩积木堆叠屋公寓---酷图编号3
  • 14000平方米17层高的五彩积木堆叠屋公寓---酷图编号4
  • 14000平方米17层高的五彩积木堆叠屋公寓---酷图编号5
  • 14000平方米17层高的五彩积木堆叠屋公寓---酷图编号6
  • 14000平方米17层高的五彩积木堆叠屋公寓---酷图编号7
  • 14000平方米17层高的五彩积木堆叠屋公寓---酷图编号8
  • 14000平方米17层高的五彩积木堆叠屋公寓---酷图编号9
  • 14000平方米17层高的五彩积木堆叠屋公寓---酷图编号10
  • 14000平方米17层高的五彩积木堆叠屋公寓---酷图编号11
  • 14000平方米17层高的五彩积木堆叠屋公寓---酷图编号12
  • 14000平方米17层高的五彩积木堆叠屋公寓---酷图编号13
  • 14000平方米17层高的五彩积木堆叠屋公寓---酷图编号14
  • 14000平方米17层高的五彩积木堆叠屋公寓---酷图编号15
  • 14000平方米17层高的五彩积木堆叠屋公寓---酷图编号16
  • 图片信息简介:14000平方米17层高的五彩积木堆叠屋公寓·图片编号为959053,AC是此图片的作者,TA来自英国伦敦,上传时间为2017-10-16 23:27:43,格式为JPG,颜色模式为RGB,分辨率为72 Dpi。
    特别提醒:本站所有作品收集于网络,版权均属各自所有者,本站素材仅提供学习参考,请勿商用,如有侵权请联系我们邮箱(200894114#qq.com,把#换成@)删除,要购买全部版权商用请自行联系作者,谢谢!
    相关标签搜索:
  • 相关系列图片/素材作品
  • 以下仅展现近期部分相关系列的图片素材,要看全部相关作品,请逐个查看右上角的相关标签搜索
  • 1 张   美国城市建筑图

       2025-06-12

    1 张   现代写字楼建筑

       2025-06-07

    3 张   阿根廷SO935公寓建筑

       2025-02-26

    1 张   层叠有序交叉的现代阳台

       2024-12-21

    5 张   德国汉堡MSH大学及办公楼

       2024-09-19

    3 张   MT Højgaard-丹麦哥本哈根办公楼

       2024-09-11

    12 张   FLEXHAB预制集装箱

       2025-05-15

    1 张   蓝色货运集装箱船矢量夜港

    VIP

       2023-07-18

    1 张   卡通集装箱货柜吊柜

       2023-03-17

    10 张   具有运输集装箱车身的探险车

       2023-02-17

    10 张   Tergan-街拍时尚女装

       2020-11-23

    13 张   MINIMOD-木质集装箱方形房子

       2020-08-04

    1 张   轮船集装箱货运素材下载

       2020-03-01

    7 张   Soulages Museum-生锈的灵魂博物馆

       2020-01-28

    1 张   载满集装箱的游轮

       2019-08-04

    10 张   洛杉矶港口长滩

       2019-04-30

    1 张   华檐古韵园林建筑图

       2025-07-10

    6 张   豪华且可持续的漂浮房屋

       2025-06-22

    11 张   斯堪的纳维亚桑拿房设计

       2025-06-19

    1 张   江南水乡的现代建筑房屋

       2025-06-18

    38 张   被烧焦的橙色环绕墙壁建筑

       2025-06-04

    13 张   Office N-01-办公室设计

       2025-03-20

    1 张   日式风飞檐古亭子建筑

       2025-02-15

    28 张   北卡罗来纳州的房子

       2025-01-07

    1 张   冬季中的童话三角小屋夜景图

       2024-12-23

    1 张   雪山脚下的白色管理房屋

       2024-10-15

    3 张   希腊住宅区渲染图

       2024-10-13

    3 张   创新中国台北的悬挑塔楼

       2025-06-12

    1 张   黑灰三角建筑

       2025-06-08

    1 张   现代都市天际线写字楼

       2025-03-18

    1 张   夜幕下的都市夜景

       2025-01-09

    1 张   夜幕下的都市

       2024-12-19

    1 张   璀璨的紫色城市高楼大厦

       2024-11-09

    1 张   璀璨的现代海滨城市

       2024-10-29

    1 张   现代办公高楼大厦图

       2024-10-04

    6 张   LEVELS-里维斯商务大厦

       2024-09-20

    1 张   森林中的黑色三角度假屋

       2024-08-25

    1 张   藏在乌云中的写字楼

       2024-08-21

    1 张   仰拍的条纹写字楼大厦

       2024-08-19

    1 张   仰拍的城市摩天大厦

       2024-06-04

    1 张   现代高层大厦顶部

       2024-05-24

    1 张   乌云笼罩下的城市高楼大厦

       2024-05-14

    1 张   高空俯拍的城市密林

       2024-05-07

    30 张   WOJR完成俯瞰硅谷的角屋

       2025-09-28

    1 张   黑白几何感建筑立面

       2025-09-25

    1 张   黑白调建筑结构特写

       2025-09-16

    1 张   教堂拱形花窗的光影之美

       2025-09-08

    1 张   伦敦大本钟-暮色下的时间地标

       2025-08-15

    1 张   建筑光影-黄昏下的都市立面

       2025-08-02

    14 张   现代建筑-自然融合的空间美学

       2025-07-25

    1 张   夜幕下的都市璀璨天际线

       2025-07-17

    14 张   Scoopify Gelato-空间建筑设计

       2025-07-16

    6 张   UTAMED-生态融合建筑设计全景

       2025-07-16

    1 张   红色螺旋楼梯建筑独特景观

       2025-07-16

    1 张   星空下的天文台夜景

       2025-07-16

    5 张   加拿大岛屿生活天堂度假胜地

       2025-07-14

    11 张   680.完整的CGI房子

       2024-10-22

    16 张   受船设计启发的现代住宅

       2024-09-26

    6 张   688. Full-带瀑布的别墅豪宅

       2024-09-12

    16 张   Big Small House-大大小小的房子

       2024-09-12

    21 张   一个以自然为灵感的住宅

       2024-08-11

    7 张   带土棕色米色色调的现代住宅

       2024-07-20

  • 查看更多家居建筑类型素材图库